
🔥 Would you like to save this?
Specifications
- Sq. Ft.: 1,226
- Bedrooms: 1-3
- Bathrooms: 1.5 – 2.5
Floor Plan

In order to come up with the very specific design ideas, we create most designs with the assistance of state-of-the-art AI interior design software.
Main level shows open family room connecting to screened porch and deck, with master suite, two-car garage, and central entry hall.
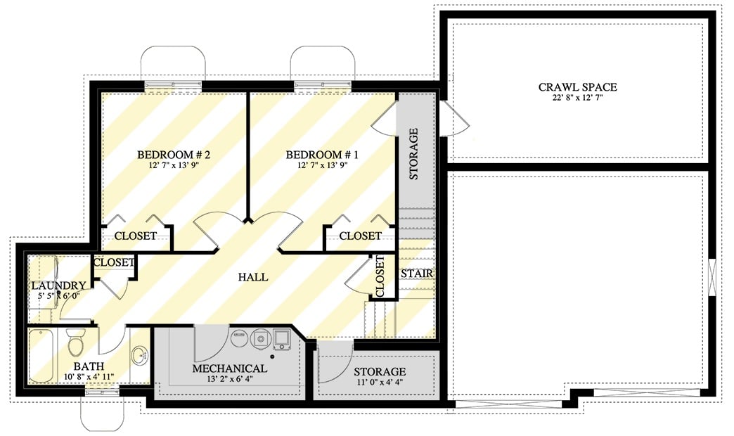
Floor Plan

This lower level layout features two bedrooms with closets flanking a central hall. A full bath and laundry room anchor the left side. Mechanical and storage rooms provide utility space. The plan includes a stair landing with closet access.
Pro Tip: Consider installing a dehumidifier in the mechanical room to protect the lower level from moisture issues common in basements. This proactive step helps preserve finishes and prevents mold growth in below-grade spaces.
Mountain Retreat with Vibrant Gardens and Natural Stone Accents
Brown horizontal siding pairs with cream-colored stone veneer across the foundation and garage base. White-trimmed windows punctuate the exterior beneath gabled rooflines. A covered deck extends from the left side, supported by timber posts. Colorful flower beds line the concrete walkway, featuring pink, purple, and orange blooms. Mountains and evergreen forests create a scenic backdrop under blue skies.
Upstairs Landing with Warm Wood Railing and Multiple White Doors

Gray walls frame this upper-level hallway where medium-toned hardwood flooring runs throughout. A turned wooden baluster rail provides stair protection. White six-panel doors with black hardware lead to different rooms. Two windows flank the central door, each fitted with white plantation shutters. White baseboards and trim create contrast against the neutral wall color.
Formal Dining Room with Arched Doorway and Plantation Shutters

White plantation shutters line the windows beside an oval wood table set for six. Recessed lighting illuminates beige walls and dark hardwood flooring throughout the space.
Family Room with Black Leather Sofa and Modern Gas Fireplace

Black leather seating anchors the space beside plantation shutters that filter natural light. A carved wood coffee table sits on rich brown laminate flooring. The gas fireplace features a sleek black stove design with chimney pipe. Recessed lighting punctuates the ceiling above neutral taupe walls and crisp white trim.
Kitchen with Natural Oak Cabinetry and Dark Granite Countertops

Natural oak cabinets pair with polished dark granite countertops throughout the space. Stainless steel appliances include a French-door refrigerator and built-in microwave. Recessed lighting illuminates the large island with prep sink.
History Corner: Dark granite countertops gained popularity in American kitchens during the 1990s and early 2000s, often chosen to contrast with lighter cabinetry. The material remains practical for busy cooking spaces due to its heat resistance and durability.
Primary Bedroom with Dark Wood Furniture and Plantation Shutters

Beige carpet anchors a bed dressed in chocolate brown linens. Dark wood dresser and headboard match perfectly with cabinetry.
Pin It

Craftsman-style ranch features stone and cedar shake siding with covered entry and double garage. Floor plan reveals open layout connecting family room, dining area, and kitchen alongside master suite with walk-in closet.
🔥 Would you like to save this?
This Home Plan is Much Bigger than It Looks… You’ll Be Surprised How Much Square Footage it Has (View the Floor Plan & Interior Imagery)
Sq. Ft.: 3,160 | Bedrooms: 3 | Bathrooms: 3
Step Into this Striking 3-Bedroom 1,511 Sq. Ft. New American Ranch Home with Bold Contrasts (Must-See Floor Plan)
Sq. Ft.: 1,511 | Bedrooms: 3 | Bathrooms: 1
Experience This 2,489 Sq. Ft. 3 Bedroom Home with Striking Timber Details – Floor Plan Included
Sq. Ft.: 2,489 | Bedrooms: 3 | Bathrooms: 2.5
Ranch-Style 3-Bedroom Home with Covered Front Porch and Double Garage (Floor Plan)
Sq. Ft.: 1,877 | Bedrooms: 3 | Bathrooms: 2
Traditional 3-Bedroom Ranch with Open Living Space and Optional Basement (Floor Plan)
Sq. Ft.: 1,617 | Bedrooms: 3 | Bathrooms: 2

