
🔥 Would you like to save this?
Specifications
- Sq. Ft.: 2,742
- Bedrooms: 4
- Bathrooms: 3.5
Floor Plan

In order to come up with the very specific design ideas, we create most designs with the assistance of state-of-the-art AI interior design software. Also, assume links that take you off the site are affiliate links such as links to Amazon. this means we may earn a commission if you buy something.
Open great room connects to kitchen and breakfast nook, with master suite separate from four additional bedrooms.
Floor Plan

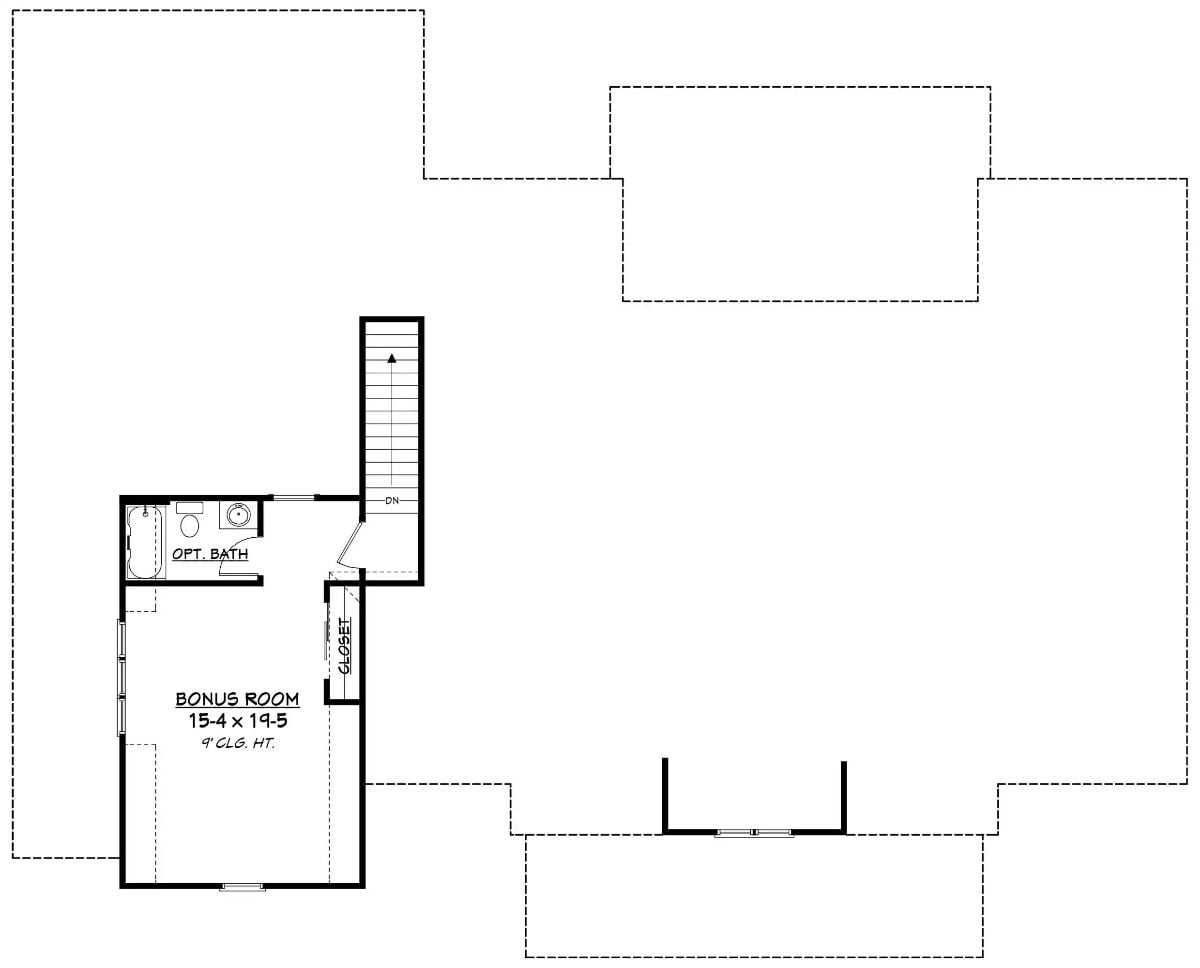
Upper level holds a bonus room with a closet, optional bath, and staircase access, creating a flexible space suited for a bedroom, office, or playroom.
In The Details: The bonus room measures 15 feet 4 inches by 19 feet 5 inches with a 9-foot ceiling height, giving it real versatility as a finished living space. An optional bath rough-in makes future conversion to a full bedroom suite straightforward. The dashed lines across the upper level indicate unfinished attic storage directly accessible from the same floor.
Farmhouse Living Room Centers Around a Glowing Fireplace and Tall Christmas Tree
Warm wood-plank flooring anchors white walls and a cream sectional sofa. Built-in shelves flank a wall-mounted TV above the lit fireplace. Christmas stockings hang from the mantel beside a decorated tree wearing a top hat.
Christmas stockings hang from the mantel beside a decorated tree wearing a top hat.
Black Barstools and White Cabinetry Make a Bold Kitchen Contrast

Four black Windsor-style barstools line a white quartz island beneath two globe pendant lights with brass chain hardware. Shaker cabinets run floor to ceiling, a wood range hood adds warmth, and stainless steel appliances anchor the back wall.
Style Math: Black hardware appears on every cabinet and drawer pull in this kitchen, tying the barstools into the overall palette rather than treating them as separate accent pieces. Mixing one dark finish against white cabinetry is a low-cost way to add visual structure without committing to a full two-tone cabinet design.
Moving into the dining area, natural light takes over as the defining element of the space.
Sunlit Dining Nook Pairs Bench Seating with Views Across Open Fields

Hardwood floors reflect afternoon sun streaming through tall windows. A dark wood trestle table seats six, with a bench on one side and ladder-back chairs opposite. A wrought-iron chandelier hangs centered above.
Shiplap Wall and Floating Shelves Define a Farmhouse Home Office

Rustic wood desk, black mesh chair, cowhide rug, and white built-in cabinetry anchor the workspace.
By The Numbers: Floating shelves cut from solid wood planks carry far more visual weight than standard bracket shelving, making them a popular choice in farmhouse interiors. Shiplap paneling behind the desk wall runs horizontally, a detail that adds texture without requiring paint or wallpaper. The steel-frame glass door separating this office from the hallway is a nod to industrial farmhouse design, a style that pairs raw metal with natural wood and white walls.
Vaulted Ceilings and Gray Bedroom Furniture Anchor a Farmhouse Master Suite

Exposed wood beam, cathedral ceiling, and gray bed frame set the tone. Gold bedding, plantation shutters, and matching nightstands complete the composed, neutral space.
Trend Alert: Vaulted ceilings with exposed wood beams have become a defining feature in new farmhouse construction, appearing in master bedrooms far more often than in previous decades. The beam draws the eye upward without requiring extra square footage, making it one of the most cost-effective architectural upgrades builders offer as a standard option.
Matte Black Fixtures and Shiplap Pull a Long Bathroom Into Focus

Shiplap lines the vanity wall, painted white and paired with black cabinet pulls and matte black faucets. Rectangular mirrors hang above a double sink countertop in white quartz. Dried pampas grass sits in a dark ceramic vase. A freestanding soaking tub anchors the far end of the room.
Worth Knowing: Freestanding tubs placed at the end of a narrow bathroom draw the eye down the length of the room, making the space feel longer and more intentional. Plantation shutters provide privacy without blocking natural light, a combination that works especially well in bathrooms with limited window options.
Covered Patio Brings Wicker Seating and Wood Ceiling Together Outdoors

Tongue-and-groove wood planks line the ceiling above a wicker sectional and matching chairs with cream cushions. A black ceiling fan keeps air moving across the concrete slab. Black-framed windows and a large glass door connect the patio directly to the interior. A reclaimed wood coffee table anchors the seating group.
Pin It

White board-and-batten siding and a covered front porch define the exterior of this farmhouse-style home. The floor plan below reveals four bedrooms, a vaulted master suite, butler’s pantry, rear porch, and a great room with 12-foot ceilings anchoring the central living area.
