
Would you like to save this?
Specifications
- Sq. Ft.: 2,633
- Bedrooms: 4-6
- Bathrooms: 2.5-3.5
- Stories: 2
- Garage: 1-3
Main Level Floor Plan

Second Level Floor Plan

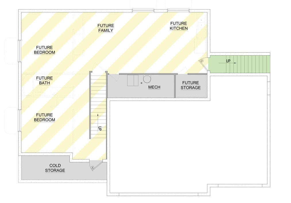
Lower Level Floor Plan

Front View

Rear-Right View

Rear-Left View

Entry

Family Room

Family Room

Kitchen

Kitchen

Kitchen

Upstairs Hall

🔥 Create Your Own Magical Home and Room Makeover
Upload a photo and generate before & after designs instantly.
ZERO designs skills needed. 61,700 happy users!
👉 Try the AI design tool here
Primary Bedroom

Primary Bedroom

Primary Bathroom

Primary Bathroom

Primary Closet

Mudroom

Details
This modern farmhouse home presents a bold, clean exterior with a mix of contrasting materials, strong rooflines, and a wide garage frontage that gives it a confident, modern presence. Simple detailing and balanced proportions keep the look refined while maintaining a practical, everyday feel.
The main level is designed around an open kitchen, dining area, and family room that flow easily together for daily living and entertaining. The kitchen includes a pantry and connects directly to the dining space, while the family room anchors the layout and opens to the patio for easy indoor-outdoor use.
A pocket office, powder room, and mudroom are positioned near the garage to support organization and daily routines without disrupting the main living areas.
The upper level is dedicated to private living, with a primary bedroom that includes a walk-in closet, a dedicated bathroom, and a nearby laundry room. Additional bedrooms are arranged around a central hall and share a full bathroom, creating a comfortable and efficient layout.
Below, a lower level offers future flexibility with space planned for additional living areas, bedrooms, storage, and mechanical needs, allowing the home to adapt over time.
Pin It!

Architectural Designs Plan 849054PGE
Haven't Seen Yet
Curated from our most popular plans. Click any to explore.

