
🔥 Would you like to save this?
Specifications
- Sq. Ft.: 3,250
- Bedrooms: 4
- Bathrooms: 3.5
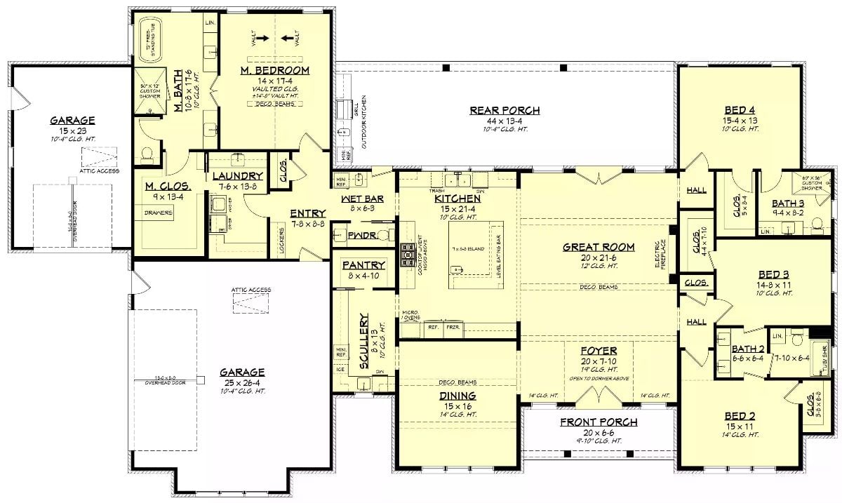
Floor Plan

In order to come up with the very specific design ideas, we create most designs with the assistance of state-of-the-art AI interior design software.
The single-story layout places the master suite and laundry on the left wing, with a scullery, pantry, and wet bar supporting a large kitchen. The great room anchors the center, flanked by a dining area and foyer. Three bedrooms on the right share two bathrooms, including a Jack and Jill setup between beds 2 and 3.
White Brick Exterior Glows Against Peak Fall Color

Painted white brick wraps the facade under a dark slate roof with standing-seam metal accents. Black-framed windows illuminate from within, casting warm amber light across the front. Boxwood hedges frame a circular paver drive. Mature oaks and maples surround the property in deep red, orange, and gold foliage.
Exposed Beams and Arched Shelving Define a Warm, Layered Living Space
Dark board-and-batten fireplace surround commands every eye in the room.
White slipcovered sofas, light hardwood floors, and wood ceiling beams balance against deep charcoal wall paneling.
Dark Paneled Fireplace Wall Commands Attention in This Farmhouse Living Room

Floor-to-ceiling grid paneling in deep espresso brown anchors the fireplace wall, housing a linear gas insert with blue-tipped flames. Bobbin-leg accent chairs in cream linen face a light wood coffee table. Hardwood floors, a single exposed ceiling beam, and French doors to the backyard complete the composition.
Linear Fireplace Insert Design
Gas fireplace inserts with wide, horizontal openings have largely replaced traditional box-style fireplaces in new construction. Mirrored interior panels reflect the flame bed, making the fire appear larger and more dynamic without increasing the physical footprint. Paired with a dark surround, the contrast draws the eye directly to the flame rather than the mantel.
Oval Pedestal Table Anchors a Sun-Drenched Dining Room Built for Gatherings

Fluted wood pedestal supports an oval table surrounded by white shell chairs with splayed oak legs. An alabaster linear pendant hangs overhead. Sheer curtains filter light through two-story windows overlooking green lawns. A console holds a lamp, a small tree, and a sculptural disc. Soft rug and pale hardwood floors complete the neutral palette.
Pro Tip: Alabaster pendant fixtures diffuse light rather than direct it, casting a warm glow without harsh shadows — a practical advantage in dining spaces where flattering light matters during evening meals. Pairing the fixture’s natural stone tones with a fluted wood table base creates visual consistency without matching materials exactly.
Gray Cabinetry and Brass Hardware Set the Tone in This Kitchen

Warm-toned barstools in cognac leather anchor the island. Gray shaker cabinets carry gold hardware throughout. Globe pendants hang on brass rods above a quartz countertop. Light hardwood floors and marble backsplash balance the room’s cooler tones.
History Corner: Shaker-style cabinetry traces its roots to 19th-century Shaker communities, where furniture and millwork followed a strict philosophy of function over ornament. That restraint is why the style pairs so naturally with both traditional and modern kitchens today. Its flat recessed panels and clean lines have made it the most reproduced cabinet door profile in American residential construction for over a century.
Vaulted Ceilings and a Cage Chandelier Set the Mood in This Master Suite

Gray linen bedding, wood nightstands, a tufted bench, and a cage chandelier anchor this light-filled suite.
In The Details: Cage-style chandeliers became popular in farmhouse interiors as a nod to industrial and rustic influences, valued for exposing the bulb as part of the design rather than concealing it. Vaulted ceilings with wood shiplap panels add acoustic warmth to a room while visually drawing the eye upward. Pairing a tufted bench at the foot of the bed adds function without pulling attention away from the headboard wall.
Dark Tile, Brass Fixtures, and a Soaking Tub Make This Bathroom Work Hard

Vertical dark brown tile climbs the shower wall behind frameless glass. Brushed brass hardware runs throughout. A freestanding soaking tub sits beside a bright window overlooking brick. A wood stool holds folded towels just outside the shower entry.
- Frameless glass panels keep sightlines open in smaller bathroom footprints
- Vertical tile patterns draw the eye upward, making walls read taller
- Freestanding tubs require no wall mounting, giving installers flexibility in placement
Pin It

Exterior photo shows a modern farmhouse with white brick and dark rooflines. Below, the floor plan details four bedrooms, three-car garage, scullery, great room, and a rear porch spanning 44 feet.
By The Numbers: At 44 by 13 feet, the rear porch runs nearly the full width of the home’s living zone, making it one of the largest covered outdoor spaces found in single-story farmhouse plans at this scale. The floor plan also includes a dedicated scullery beside the kitchen, a feature historically used to handle messy prep work away from the main cooking area. Jack and Jill bathroom configurations, shared between two bedrooms through a common bath, first gained traction in American home design during the postwar suburban building boom of the 1950s.
🔥 Would you like to save this?
4-Bedroom Two-Story Modern Farmhouse with Side-Load Barn-Style Garage and a Wraparound Porch (Floor Plan)
Sq. Ft.: 2,970 | Bedrooms: 4 | Bathrooms: 3.5
Get Inspired by This 3,127 Sq. Ft. 4 Bedroom Home — Check Out the Floor Plan
Sq. Ft.: 3,127 | Bedrooms: 4 | Bathrooms: 3.5
Step Inside This 2,514 Sq. Ft. 4 Bedroom House with Jack & Jill Bath – Floor Plan Included!
Sq. Ft.: 2,514 | Bedrooms: 4 | Bathrooms: 3
Welcome to This 2,004 Sq. Ft. Country Style Home with 4 Bedrooms and Open Living Space – Floor Plan Included
Sq. Ft.: 2,004 | Bedrooms: 3-4 | Bathrooms: 2.5
Step Inside This 2,905 Sq. Ft. 4 Bedroom Farmhouse with a Must See Floor Plan
Sq. Ft.: 2,905 | Bedrooms: 4 | Bathrooms: 2.5

