
🔥 Would you like to save this?
Specifications
- Sq. Ft.: 2,742
- Bedrooms: 4
- Bathrooms: 3.5
Floor Plan

In order to come up with the very specific design ideas, we create most designs with the assistance of state-of-the-art AI interior design software. Also, assume links that take you off the site are affiliate links such as links to Amazon. this means we may earn a commission if you buy something.
The single-story layout places the master suite privately at the left wing, while three additional bedrooms cluster at the right. A central great room connects the kitchen, breakfast nook, and rear porch with open, practical flow.
Floor Plan

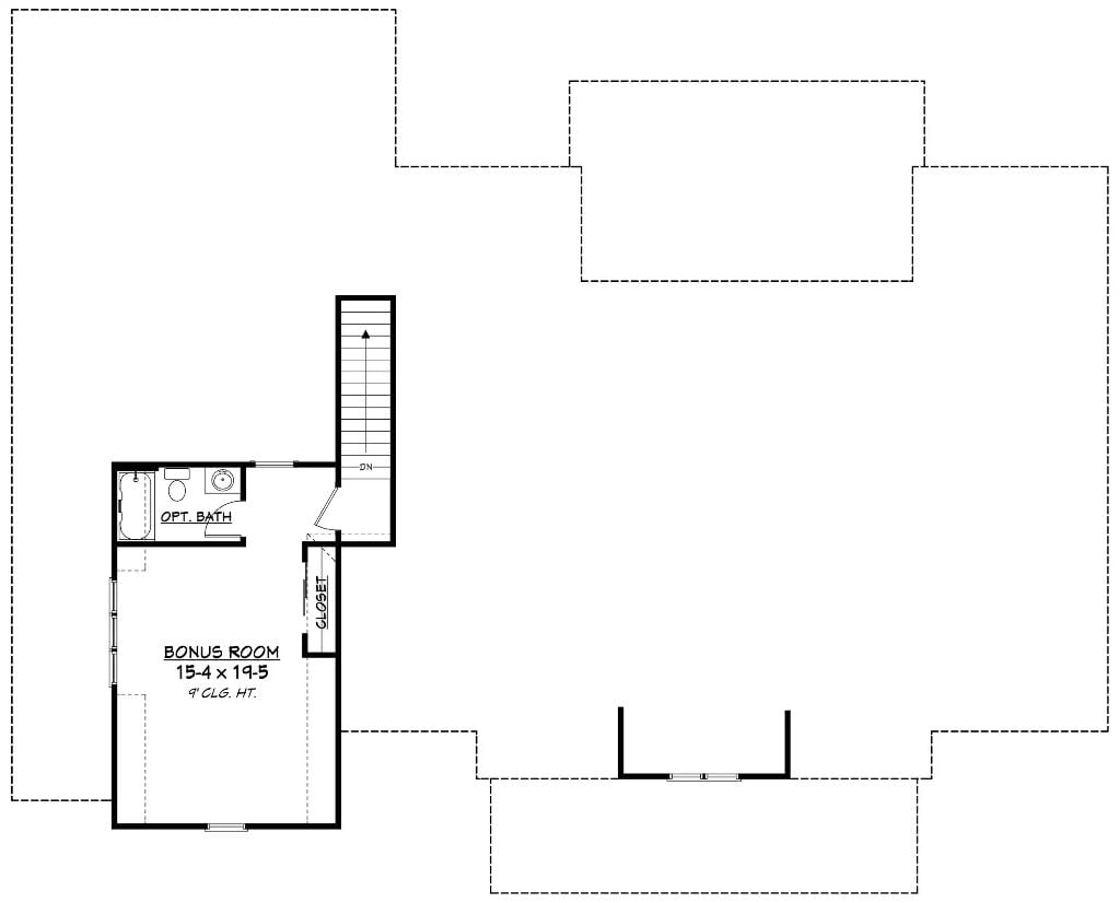
Bonus room measures 15-4 x 19-5 with a 9-foot ceiling. An optional bath and closet sit adjacent to the stairwell. Dashed lines indicate attic or roof coverage over unfinished areas. The layout suits a home office, media room, or guest suite conversion.
Warm Wood Tones and Coffered Ceilings Define This Farmhouse Dining Space
Hardwood floors, a trestle dining table, upholstered end chairs, and two pendant lights anchor this open entry and dining area.
Brick Fireplace and Floating Shelves Anchor This Farmhouse Living Room

Red brick fireplace, floating wood shelves, and a large wall-mounted TV pair with a sectional sofa and windmill ceiling fan overhead.
The Windmill Ceiling Fan as a Design Statement
Windmill-style ceiling fans carry strong farmhouse character without relying on shiplap or barn doors to make the point. This multi-blade fixture pulls visual weight upward, balancing the brick mass below. Its raw metal finish ties directly to the globe pendant visible near the entry, giving the ceiling plane a sense of intention.
White Cabinetry and Granite Countertops Ground This Farmhouse Kitchen Island

Four swivel barstools, light granite island, mosaic tile backsplash, stainless steel double ovens, and wood pendant.
Common Mistake: Matching your island base color to your cabinetry is one of the most common mistakes in farmhouse kitchens. Contrasting the island with a wood tone, as done here, gives the space visual weight and breaks up an otherwise flat palette. It also helps define the island as a gathering point rather than just an extension of the perimeter.
Tufted Headboard and Shiplap Wall Set the Tone in This Farmhouse Master Bedroom

Distressed white furniture pairs with a tufted linen headboard. Shiplap accent wall, wood floors, and a storage bench complete the space.
Material Matters: Distressed paint finishes on bedroom furniture are typically achieved through a layering technique where a base coat is sanded back after a top coat dries. Chalk-based paints are preferred for this look because they adhere without primer and sand down smoothly. The result mimics decades of natural wear without stripping or staining.
Marble Floors and Round Mirrors Bring Balance to This Farmhouse Master Bath

Walk-in showers with herringbone tile walls are having a major moment in farmhouse bathroom design.
Glass panels frame a walk-in shower clad in white herringbone tile. White shaker cabinets run along the vanity wall, topped with speckled granite. Two round black-framed mirrors hang above separate sinks. Marble-look floor tiles keep the palette light. Industrial-style sconces add contrast against the soft gray walls.
Sliding Barn Door and Hex Tile Floor Give This Laundry Room Farmhouse Character

White shaker cabinets with black pulls, a top-load washer and dryer, and a sliding barn door on brushed nickel hardware define this compact, well-organized laundry space.
Worth Knowing: Barn doors in laundry rooms save floor space compared to swing doors, which require roughly 6 to 9 square feet of clearance to operate fully. Hexagonal floor tile, even in small formats, creates natural visual texture without requiring grout lines that are difficult to clean around appliances.
Covered Patio with Wicker Seating and Wall-Mounted TV for Outdoor Living

Wicker chairs, wood plank ceiling, ceiling fan, and wall-mounted TV define this covered patio.
Pin It

Exterior photo of a modern farmhouse paired with a single-story floor plan showing four bedrooms and covered porches.
