
🔥 Would you like to save this?
Specifications
- Sq. Ft.: 3,267
- Bedrooms: 3
- Bathrooms: 2.5
Floor Plan

In order to come up with the very specific design ideas, we create most designs with the assistance of state-of-the-art AI interior design software. Also, assume links that take you off the site are affiliate links such as links to Amazon. this means we may earn a commission if you buy something.
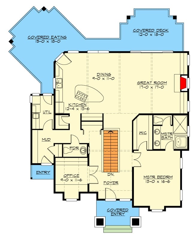
The main floor centers on an open great room, dining area, and kitchen. A master suite sits to the right. The foyer connects an office, mud room, and powder room, with covered eating and deck areas extending outdoors.
Floor Plan

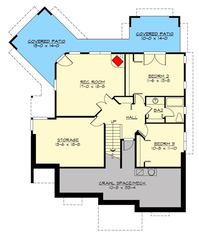
The basement level shows a rec room, two bedrooms, a shared bath, storage, a crawl space, and two covered patios.
Covered Rooftop Deck with Adirondack Seating and String Lights
Weathered wood Adirondack chairs with blue striped cushions anchor the open deck. A long teak dining table seats eight under a cedar-planked covered overhang strung with cafe lights. Cable railing frames neighborhood views beyond, while a covered grill sits ready near the French door entry.
Vaulted Kitchen-Dining Space with Exposed Beams and Farmhouse Table

Warm oak floors, black wishbone chairs, white cabinetry, dark countertops, stainless hood, and orange tulips anchor this open-plan kitchen and dining area.
Try This: Mixing wood tones works best when you anchor them with one consistent finish. Here, honey-toned floors and the farmhouse table read as a pair because the black chairs act as a visual break. Try repeating one metal finish, like the black chair frames, in at least two other spots to pull the room together.
Vaulted Great Room with Built-Ins, Fireplace, and Deck Access

Exposed beams frame a vaulted ceiling above gray upholstered seating and a Persian rug. White built-ins flank a marble fireplace surround. French doors open to an outdoor dining deck with mountain views beyond.
Budget Tip: Built-in shelving around a fireplace costs significantly less when done during initial construction rather than added as a remodel. If your budget is tight, open shelving with painted MDF performs nearly as well visually as custom cabinetry at a fraction of the price.
Mudroom Bench with Navy Pillows, Hook Rail, and Checkered Tile Floor

Black-and-white checkered tile, patterned bench cushion, U.S. Navy pillows, and framed art line this functional entry space.
Ask Yourself: Dedicated mudroom benches with storage below earn back their square footage fast in high-traffic homes. If you’re deciding between open hooks and closed cabinetry above the bench, hooks win for daily grab-and-go ease. Personalized pillows or decor in this space can reflect the household’s identity without requiring permanent design commitments.
Vaulted Bedroom with Plantation Shutters, Wood Bed Frame, and Fish Art

Vaulted ceilings in a bedroom feel earned only when the furniture scale holds its own beneath them.
Cherry-stained Mission-style bed frame anchors white bedding and soft gray pillows. Matching nightstands carry globe lamps with brass bases. Plantation shutters filter light on three window groupings. A framed fish print adds personality without competing with the neutral walls.
Soaking Tub and Open Shower Share Space with Pebble Stone Floor

White subway tile runs halfway up the walls, giving way to greige paint above. A drop-in soaking tub sits tiled-in on two sides with chrome fixtures. The open shower uses pebble stone flooring for grip and texture. Rolled towels rest on a bracket shelf mounted directly to the wall.
- Pebble stone shower floors cost more to install than standard tile, but add significant slip resistance
- Half-wall tile height keeps grout lines manageable while still protecting the most water-exposed surfaces
- Bracket shelves outperform recessed niches in bathrooms with exterior walls, where insulation depth limits cut-ins
Navy Sectional and Trunk Coffee Table Ground a Bright Garden-Facing Sitting Room

Blue fabric sectional anchors the space, paired with a wood trunk doubling as a coffee table. Gallery frames and a porthole mirror line the wainscoted wall. French doors open directly to a green backyard lawn.
Did You Know: Sectional sofas placed in an L-shape naturally define a seating zone without requiring a rug to do that work. In rooms with direct exterior access like this one, pulling the sectional away from the door wall keeps traffic flow clear and protects upholstery from repeated door drafts.
Pin It

Exterior photo shows a Craftsman home with a teal front door, covered entry porch, and flagstone path. Below, the main floor plan reveals a master bedroom suite, great room, office, kitchen with dining, mudroom, and two covered outdoor areas totaling over 500 square feet of sheltered deck and eating space.
Why It Works: Craftsman homes consistently rank among the most searched architectural styles in North America, driven largely by their covered porches and mixed exterior materials. Having two separate covered outdoor spaces on one floor gives this plan flexibility that single-deck layouts rarely offer.
🔥 Would you like to save this?
3-Bedroom Mountain Contemporary Home with Wraparound Porch and Walkout Basement (Floor Plan)
Sq. Ft.: 2,081 | Bedrooms: 3 | Bathrooms: 2.5
I Love “H”-Shaped House Plans Which is Exactly What this 1,911 Sq. Ft. Home’s Floor Plan Is (FYI, this is the “Wilton” Floor Plan)
Sq. Ft.: 1,911 | Bedrooms: 3 | Bathrooms: 2
Tour This 2,091 Sq. Ft. 3 Bedroom Home with an Entertaining Basement and Bonus Room – Must See Floor Plan Included
Sq. Ft.: 2,091 | Bedrooms: 3 | Bathrooms: 2.5
Welcome to a 1,459 Sq. Ft. 3 Bedroom Home: Cozy and Beautiful (Floor Plan Included)
Sq. Ft.: 1,459 | Bedrooms: 3 | Bathrooms: 2
3-Bedroom Two-Story Craftsman Home with Open Concept Living and Detached Double Garage (Floor Plan)
Sq. Ft.: 1,825 | Bedrooms: 3 | Bathrooms: 3

