
Would you like to save this?
Specifications
- Sq. Ft.: 1,554
- Bedrooms: 3
- Bathrooms: 2
- Stories: 2
- Garage: 2
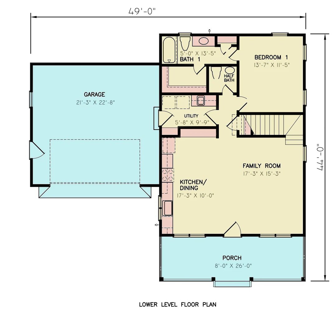
Main Level Floor Plan

Second Level Floor Plan

🔥 Create Your Own Magical Home and Room Makeover
Upload a photo and generate before & after designs instantly.
ZERO designs skills needed. 61,700 happy users!
👉 Try the AI design tool here
Front-Left View

Front-Right View

Rear View

Rear-Right View

Would you like to save this?
Front View

Family Room

Family Room

Open-Concept Living

Dining Area

Dining Area and Kitchen

Dining Area and Kitchen

Laundry Room

🔥 Create Your Own Magical Home and Room Makeover
Upload a photo and generate before & after designs instantly.
ZERO designs skills needed. 61,700 happy users!
👉 Try the AI design tool here
Primary Bedroom

Primary Bathroom

Details
This craftsman-style home presents a classic, balanced exterior with a strong front gable, shingle detailing, and a covered porch that clearly defines the entry. Dark trim contrasts with lighter siding to give the façade depth, while the attached garage is integrated cleanly to one side, keeping the focus on the front porch and main living spaces.
The main level is organized around an open family room that connects directly to the kitchen and dining area. The kitchen and dining space flow naturally into the family room, while a nearby utility area provides a practical transition to the garage. A main-level bedroom is positioned for privacy and is served by a full bath, along with an additional half bath for guests.
Upstairs, two bedrooms are arranged on either side of a shared full bath, creating a dedicated sleeping level. An unfinished recreation room adds flexibility for future use, whether as additional living space, a workspace, or storage.
Pin It!

Garrell Associates Plan GA25069
