
🔥 Would you like to save this?
Specifications
- Sq. Ft.: 1,184
- Bedrooms: 1
- Bathrooms: 2
Floor Plan

In order to come up with the very specific design ideas, we create most designs with the assistance of state-of-the-art AI interior design software. Also, assume links that take you off the site are affiliate links such as links to Amazon. this means we may earn a commission if you buy something.
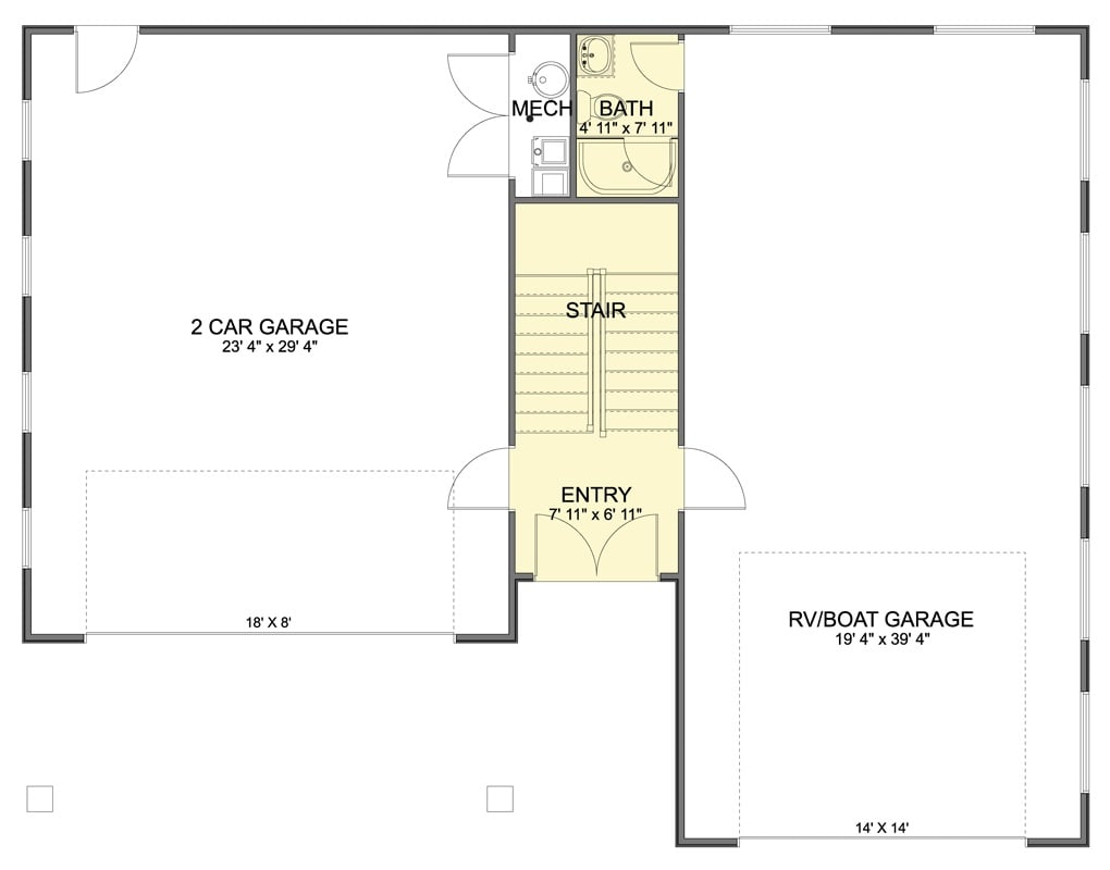
The ground floor centers on a stair and entry corridor flanked by a two-car garage and an RV/boat garage. A mechanical room and full bath sit at the top of the stairs near the upper living level.
Floor Plan

The main level includes one bedroom with a walk-in closet, a full bath, a kitchen, and a living room with a vaulted ceiling. A staircase suggests upper space. An oversized RV/boat garage and deck complete the layout.
Gray Lap Siding and Black Trim Give This Barndominium a Sharp Exterior
Gray horizontal lap siding wraps two stories, paired with black window trim and a black entry door. Xeriscaped gravel surrounds boulders, ornamental grasses, and low shrubs beneath snow-capped mountains.
Framed Family Portrait Anchors the Upper Landing with Warmth

Dark wood railing, slate tile floors, and recessed lighting frame a bold family portrait near the staircase.
Quick Fix: Hanging a large portrait at a stair landing gives arriving guests an immediate focal point. Choose a frame that echoes existing woodwork tones for cohesion. Scale matters here — undersized art disappears on tall walls.
Black Leather Sofas and Recessed Lighting Define an Open-Concept Living Space

Two black leather sofas frame an oval wood coffee table on slate tile flooring. A wall-mounted TV faces large black-trimmed windows overlooking a green yard.
Ask Yourself: Black window and door trim ties together disparate zones in an open floor plan. Does your living space have one consistent accent element running through it?
Black Granite Countertops and Shaker Cabinets Keep This Kitchen Crisp

Painted shaker cabinets in light gray run floor to ceiling, pairing with black granite countertops throughout. Stainless appliances line the right wall. Recessed lighting and black window frames echo the countertop finish, tying the palette together. Dark tile flooring grounds the whole space.
Why Countertop-to-Window Coordination Works
Black granite countertops visually connect to the black window frames here, creating a deliberate through-line that keeps the eye moving around the room. That kind of material repetition reduces visual clutter without requiring additional décor. If you choose a bold countertop color, look for at least one other surface in the room to mirror it.
Stacked Washer and Dryer Next to the Bed Reveal a Practical Barndominium Trade-Off

Sleeping feet away from your laundry appliances is a real compromise some barndominium layouts demand.
Walnut nightstands with round pulls flank a queen bed dressed in sage green. Brass table lamps cast warm light against the walls. Black window frames face a yard full of mature trees. A stacked washer-dryer unit sits visible through an open doorway, tucked efficiently into a shared space just off the bedroom.
Pin It

Exterior rendering shows a modern barndominium with glass garage doors and a wide balcony. The floor plan reveals one bedroom, a vaulted living room, a full bath, and an RV/boat garage.
Did You Know: Barndominiums with dedicated RV or boat garages are growing in popularity among buyers who want vehicle storage built into the home’s original footprint rather than added as a separate outbuilding. A 19-by-39-foot bay offers enough clearance for most Class A motorhomes. Planning that space during initial design avoids costly foundation changes later.
🔥 Would you like to save this?
Embrace the Harmony of Rustic Living in This One-Bedroom 1,552 Sq. Ft. Barn-Style Home (Check Out the Complete Floor Plan Here)
Sq. Ft.: 1,552 | Bedrooms: 1 | Bathrooms: 1
Modern 1-Bedroom Barndominium with Loft and Sports Court (Floor Plan)
Sq. Ft.: 2,778 } Bedrooms: 1 | Bathrooms: 1
Barndominium Style 1-Bedroom Home with Oversized Garage and Wraparound Porch (Floor Plan)
Sq. Ft.: 2,708 | Bedrooms: 1 | Bathrooms: 1.5
Darrien Cove 1-Bedroom Barndominium with Open Living Space and Wraparound Porch (Floor Plan)
Sq. Ft.: 2,708 | Bedrooms: 1 | Bathrooms: 1.5
This is the Ultimate Car Lovers Home Plan Featuring an Epic Garage and Shop Big Enough for a Fleet of Cars (Plus a Cool Apartment with an Office)
Sq. Ft.: 2,057 | Bedrooms: 1 | Bathrooms: 2.5
