
Would you like to save this?
Specifications
- Sq. Ft.: 3,680
- Bedrooms: 3
- Bathrooms: 3.5
- Stories: 2
- Garage: 3
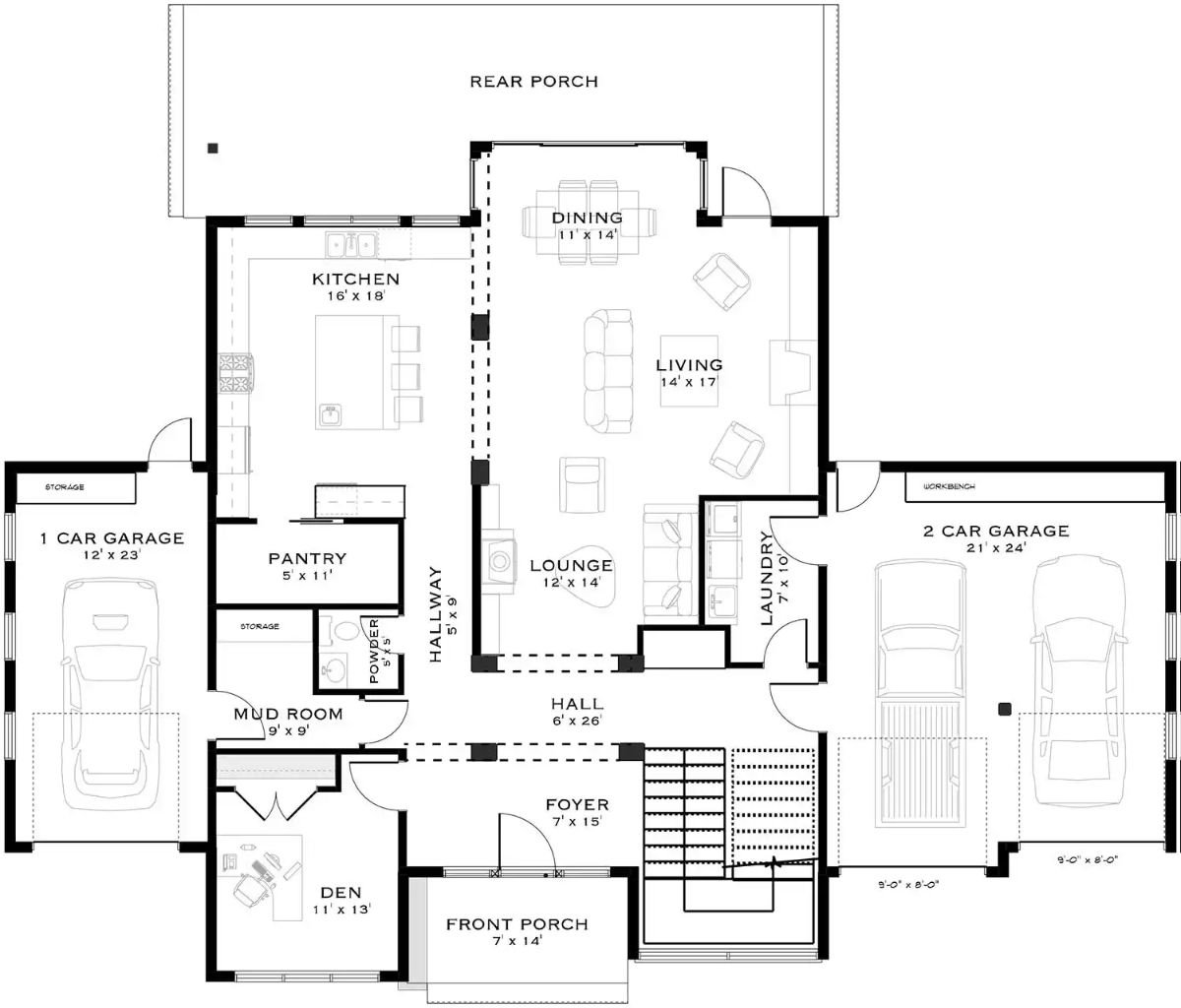
Main Level Floor Plan

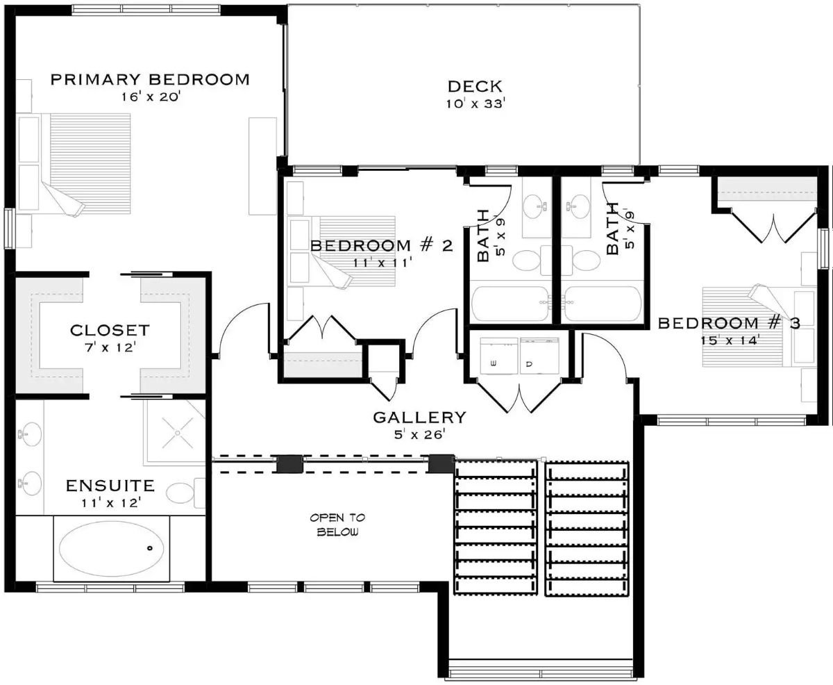
Second Level Floor Plan

Rear View

Front-Left View

Front-Right View

Open-Concept Living

Open-Concept Living

Staircase

Balcony

Details
This contemporary home presents a striking exterior with strong horizontal rooflines, expansive glass, and a balanced mix of modern materials that give it a bold, architectural presence. Clean lines and dramatic window groupings create a sense of openness while maintaining a refined, structured look.
The main level is organized around a series of connected living spaces that balance openness with definition. The kitchen, dining area, and living room flow together while maintaining clear zones for each function, making the layout comfortable for both daily living and entertaining.
A lounge area and den add flexibility for relaxed gathering or quiet use, while a mudroom, pantry, and powder room are positioned to support everyday routines without interrupting the main spaces. Access to the rear porch extends the living areas outward and reinforces the home’s indoor-outdoor connection.
The upper level is dedicated to private living, anchored by a primary bedroom with a walk-in closet and an ensuite bathroom. Two additional bedrooms are positioned nearby with access to full bathrooms, and a centrally located laundry area adds convenience. An open gallery overlooking the level below enhances the sense of space while keeping circulation simple and efficient.
Pin It!

The House Designers Plan THD-12224
Haven't Seen Yet
Curated from our most popular plans. Click any to explore.

