
🔥 Would you like to save this?
Specifications
- Sq. Ft.: 1,368
- Bedrooms: 2
- Bathrooms: 2
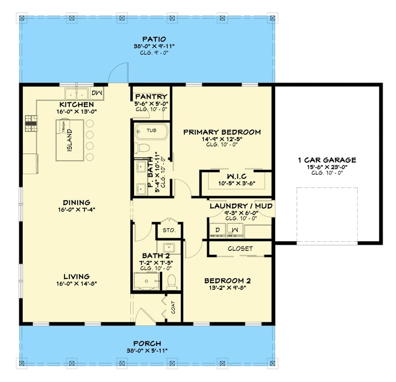
Floor Plan: The Primary Suite Occupies Its Own Corner Behind the Garage

In order to come up with the very specific design ideas, we create most designs with the assistance of state-of-the-art AI interior design software. Also, assume links that take you off the site are affiliate links such as links to Amazon. this means we may earn a commission if you buy something.
The primary bedroom claims the right front quadrant for privacy and quiet. Bedroom 2 anchors the opposite end near the living room. Kitchen and dining areas form an open zone that connects to the patio. The laundry room links directly to both bedrooms.
White Stucco and Brick Banding Create a Horizontal Line That Anchors the House

Stacked brick wraps around the base while white stucco forms the upper half. Wooden posts support a broad roof overhang that shades the porch. Glass doors and windows punctuate the facade, letting warm interior light spill onto the lawn at dusk.
Editor’s Note: This design borrows from mid-century ranch proportions but swaps wood siding for stucco and brick. The low-slung roofline and deep eaves keep the profile close to the ground, which works well on flat rural sites where verticality would look out of place.
High Ceilings and Multiple Windows Make This Living Room Feel Twice Its Size
Sunlight pours through six windows and two clerestory openings above. Wood floors stretch across the space. A gray sofa anchors mid-century chairs around an oval coffee table. Abstract art hangs near a black speaker panel.
Dark Wood Island Base with X-Bracing Grounds the Kitchen Without Cabinets

X-bracing on the island base adds structure and visual interest to a kitchen that might otherwise feel sparse. Warm beige walls and light wood flooring soften the dark countertops. Two faucets serve separate zones for prep and cleanup.
Open Living Layout Drops Walls Between Kitchen and Lounge So No One Cooks Alone

Kitchen and living room share one continuous floor without barriers. Gray upholstery pairs with warm wood frames and a round oak coffee table. White cabinetry flanks a black range hood.
Botanical Triptych Over the Bed Frames the View Without Competing With It

Three framed palm and monstera prints hang above the bed in black frames, echoing the sliding barn door hardware. Cream walls warm the space while charcoal bedding and wood floors keep it grounded. Recessed lights flank a wood-blade ceiling fan.
Pin It

White stucco walls meet brick banding and a covered porch in this modern barndominium exterior. Below, the floor plan reveals a two-bedroom layout with open living and dining zones, a walk-in pantry off the kitchen, and a primary suite tucked behind the garage for privacy. A rear patio extends living space outdoors.
🔥 Would you like to save this?
Single-Story 2-Bedroom Bergen Scandinavian Home (Floor Plan)
Sq. Ft.: 1,200 | Bedrooms: 2 | Bathrooms: 1
Experience 1,555 Sq. Ft. of Spacious Living: 2 Bedroom Home with Must See Floor Plan and Covered Terrace
Sq. Ft.: 1,555 | Bedrooms: 2 | Bathrooms: 2
Mountain-Style 2-Bedroom Lake House with Loft and Bonus Room (Floor Plan)
Sq. Ft.: 2,367 | Bedrooms: 2 | Bathrooms: 3
A Delightful 2-Bedroom Bungalow Layout Coming in at 1,441 Sq. Ft. (FYI Floor Plan Only – No Interior Imagery)
Sq. Ft.: 1,441 | Bedrooms: 2 | Bathrooms: 2.5

