
Would you like to save this?
Specifications
- Sq. Ft.: 2,042
- Bedrooms: 4
- Bathrooms: 2
- Stories: 1
- Garage: 3
Main Level Floor Plan

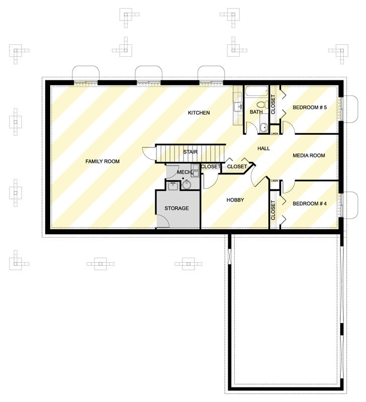
Lower Level Floor Plan

🔥 Create Your Own Magical Home and Room Makeover
Upload a photo and generate before & after designs instantly.
ZERO designs skills needed. 61,700 happy users!
👉 Try the AI design tool here
Right View

Rear View

Front-Left View

Rear-Left View

Would you like to save this?
Great Room

Great Room

Great Room

Kitchen and Dining Room

Kitchen

Kitchen

Dining Room

Primary Bedroom

🔥 Create Your Own Magical Home and Room Makeover
Upload a photo and generate before & after designs instantly.
ZERO designs skills needed. 61,700 happy users!
👉 Try the AI design tool here
Primary Bedroom

Primary Bathroom

Primary Bathroom

Family Room

Dining Room

Would you like to save this?
Rec Room

Rec Room

Front Elevation

Right Elevation

Left Elevation

Rear Elevation

Details
This craftsman ranch home features a clean, elongated exterior with horizontal siding, simple gabled rooflines, and a covered front porch that reinforces its low-profile design. Crisp trim and balanced window placement give the façade a straightforward, timeless appearance.
The main level is organized around a vaulted great room that connects directly to the kitchen and dining area, creating an open layout suited for daily living. The kitchen includes a pantry and flows easily into the mudroom and garage entry, keeping movement through the home efficient.
The owner’s suite is positioned on one side of the home for privacy and includes a walk-in closet and private bath, while three additional bedrooms are grouped along the opposite wing with access to a full bath. A dedicated office sits near the center of the layout, offering flexible use without interrupting the main living spaces.
The lower level expands the home’s functionality with a large family room, a secondary kitchen area, and a media room. Two additional bedrooms and a full bath provide space for guests, while storage and mechanical rooms keep utilities organized and out of sight.
Pin It!

Architectural Designs Plan 61705UT
