
🔥 Would you like to save this?
Specifications
- Sq. Ft.: 1,732
- Bedrooms: 3
- Bathrooms: 3
Floor Plan

In order to come up with the very specific design ideas, we create most designs with the assistance of state-of-the-art AI interior design software. Also, assume links that take you off the site are affiliate links such as links to Amazon. this means we may earn a commission if you buy something.
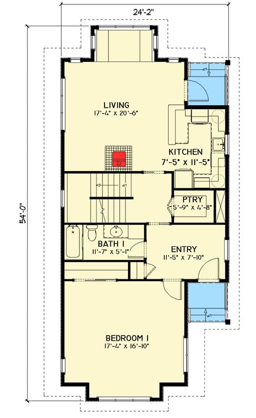
The first floor places a large living room and bedroom on opposite ends, with a kitchen, pantry, entry, and bath filling the middle. Stairs suggest a second level. Two covered porches flank the right side.
Floor Plan

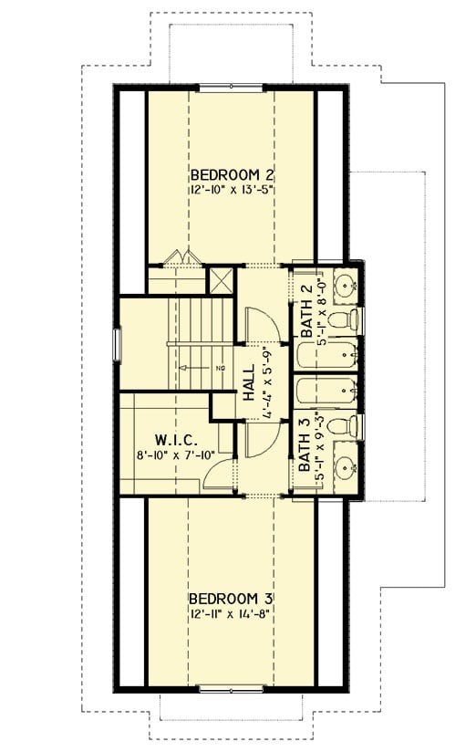
Upper-level layout includes two bedrooms flanking a central hall. Bedroom 2 measures 12’10” x 13’5″ and Bedroom 3 runs 12’11” x 14’8″. Two full bathrooms sit side by side near the staircase. A walk-in closet serves the nearby bedroom with generous dimensions of 8’10” x 7’10”.
Floor Plan
Bonus Room 1 and Bonus Room 2 anchor each end of the lower level, connected by a staircase. Three utility spaces, storage, and a mechanical room line the right side.
Wood Stove, Stone Column, and Open-Plan Living Done Right

Warm hardwood floors run beneath gray upholstered seating arranged around a wood-burning stove set against a river-stone column. An open book rests on the coffee table. Dark-cabinet kitchen with stainless fridge anchors the back wall.
By The Numbers: Freestanding wood stoves typically heat spaces between 1,000 and 2,000 square feet, making them practical for open-plan cabins like this one. Stone surround columns serve both as chimney enclosures and as heat-retaining thermal mass. Recessed ceiling lights work alongside the stove to layer light across the room at different intensities.
Stone-Clad Kitchen Bar, Wood Stove, and Hardwood Floors in One Space

River rock cladding wraps the kitchen island base. Wicker armchairs, a wood coffee table, and hardwood floors anchor the living area beside a black freestanding stove.
Trend Alert: Open-plan cabin interiors are shifting toward mixed natural materials, pairing river rock and wood together in the same room rather than keeping them separate by zone. Designers increasingly use stone as a vertical surface on kitchen islands rather than limiting it to fireplace surrounds. The effect grounds the kitchen visually without requiring a full stone wall.
Granite Counters, Stainless Appliances, and Hardwood Floors Open to the Living Area

Dark walnut cabinets pair with granite countertops in a gray-and-white pattern. Stainless steel appliances include a gas cooktop, wall oven, and built-in microwave. Under-cabinet lighting brightens the subway tile backsplash. Hardwood floors extend into the living area, where a black freestanding stove anchors the space near a stone column.
Budget Tip: Granite remnants, leftover cuts from larger slabs, are often sold at steep discounts by countertop fabricators. For a kitchen island or secondary surface, remnants can cut material costs by 50 percent or more. Calling local fabricators directly is the fastest way to find available pieces.
Pin It

Exterior photo shows a cedar-sided two-story cabin with a covered porch and landscape plantings. Below, the first-floor plan reveals a living room, kitchen, pantry, entry, bathroom, and one bedroom across a 24-by-54-foot footprint.
🔥 Would you like to save this?
3-Bedroom Family Cabin Design – Both Inside and Out (1,952 Sq. Ft. Floor Plan)
Sq. Ft.: 1,952 | Bedrooms: 3 | Bathrooms: 2.5
3-Bedroom Country Cabin with Front Porch and Covered Patio (Floor Plan)
Sq. Ft.: 1,801 | Bedrooms: 3 | Bathrooms: 2.5
Explore the Cozy 1,973 Sq. Ft. 3-Bedroom Single-Story Foxford Cabin (Don’t Miss This Floor Plan)
Sq. Ft.: 1,973 | Bedrooms: 3 | Bathrooms: 3
3-Bedroom Rustic Cabin with Open Living Space and Loft Over the Kitchen (Floor Plan)
Sq. Ft.: 1,488 | Bedrooms: 3 | Bathrooms: 2
Tour This 1,811 Sq. Ft. 3 Bedroom Ranch-Style Home with Stunning Indoor-Outdoor Flow – Check Out the Floor Plan
Sq. Ft.: 1,811 | Bedrooms: 3 | Bathrooms: 2

