
Would you like to save this?
Specifications
Sq. Ft.: 1,849
Bedrooms: 3
Bathrooms: 2.5
Stories: 1
Garage: 2
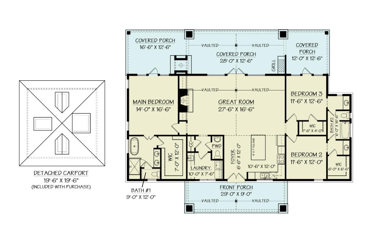
First Level Floor Plan

Basement Plan

Front View

Front View

Great Room

Great Room

Dining Area and Kitchen

Dining Area

Dining Area

Kitchen

Kitchen

Primary Bedroom

Primary Bathroom

🔥 Create Your Own Magical Home and Room Makeover
Upload a photo and generate before & after designs instantly.
ZERO designs skills needed. 61,700 happy users!
👉 Try the AI design tool here
Laundry Room

Details
Step into the captivating world of Haystack, a stunning 1,849 square foot modern farmhouse that effortlessly blends style with the charm of country living. As you enter through the foyer, a chic L-shaped kitchen beckons to the right, featuring a spacious island and ample counter space.
Progressing forward, the Great Room awaits with its vaulted ceilings, allowing natural light to cascade through the floor-to-ceiling windows, creating an inviting ambiance. On the right side of the home, two bedrooms share a full bathroom adorned with separate double vanity sinks.
To the left, the owner’s suite beckons with a generous walk-in closet and an ensuite bathroom. This private haven extends its allure outdoors with access to the covered porch spanning the entire rear of the home—a perfect retreat for outdoor living.
Completing the picture, a detached garage stands ready to accommodate two vehicles, adding both convenience and practicality to this idyllic farmhouse.
Pin It!

The House Designers Plan 7623
Haven't Seen Yet
Curated from our most popular plans. Click any to explore.

