
Would you like to save this?
Specifications
Sq. Ft.: 1,544
Bedrooms: 1
Bathrooms: 1
Stories: 2
Garage: 3
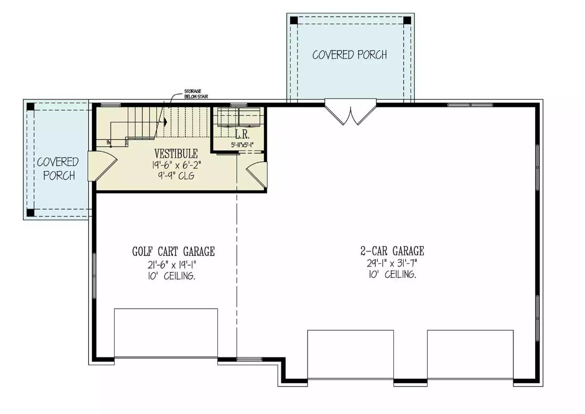
First Floor Plan

Second Floor Plan

Front View

Rear-Left View

Rear-Right View

Rear View

Living Room

Living Room and Kitchen

Dining Room

Dining Room and Kitchen

Kitchen

Nook

Primary Bedroom

🔥 Create Your Own Magical Home and Room Makeover
Upload a photo and generate before & after designs instantly.
ZERO designs skills needed. 61,700 happy users!
👉 Try the AI design tool here
Primary Bathroom

Details
Discover Coldwater, a sophisticated detached garage plan spanning 1,544 sq. ft. This innovative design features a spacious 3-car garage alongside a thoughtfully integrated living space.
The open floor plan effortlessly connects the kitchen, dining, and living areas, enhancing both functionality and flow. The primary suite provides a private retreat, featuring ample walk-in closet space and direct access to the primary bathroom.
Step outside to enjoy the charm of a covered porch and an expansive open deck, perfect for entertaining or simply taking in the natural beauty surrounding your home. Coldwater invites you to experience living anew.
Pin It!

The House Designers Plan 9383
Haven't Seen Yet
Curated from our most popular plans. Click any to explore.

