
🔥 Would you like to save this?
Specifications
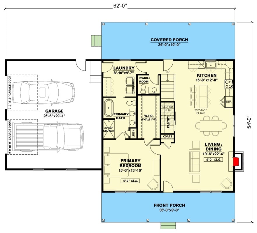
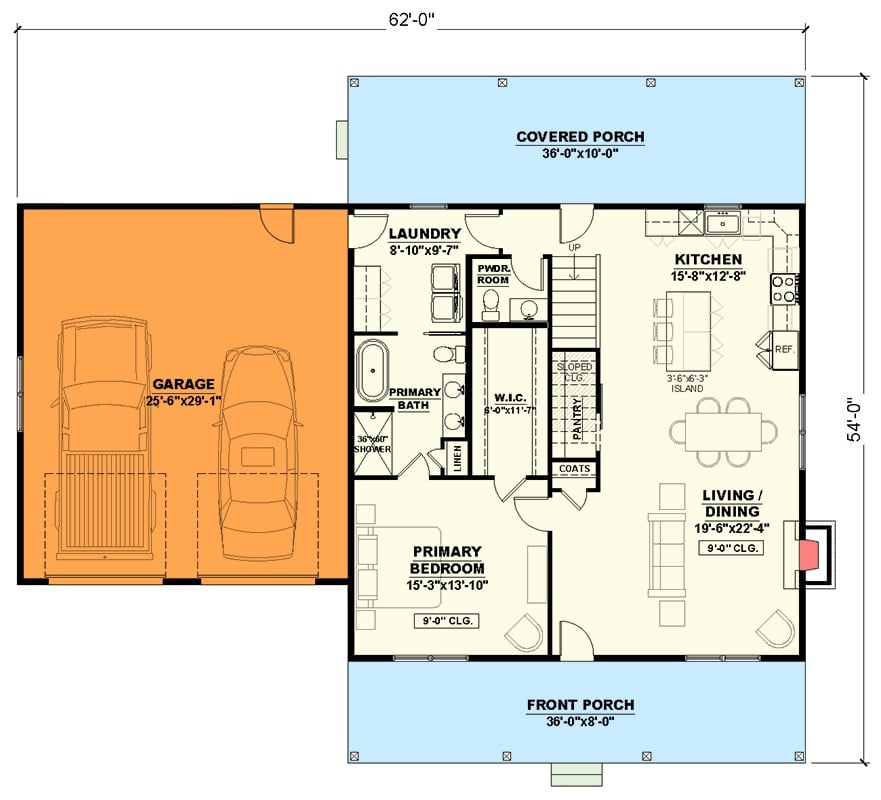
- Sq. Ft.: 2,200
- Bedrooms: 3
- Bathrooms: 2.5
Floor Plan

In order to come up with the very specific design ideas, we create most designs with the assistance of state-of-the-art AI interior design software. Also, assume links that take you off the site are affiliate links such as links to Amazon. this means we may earn a commission if you buy something.
The main floor centers on an open living and dining area connected to a kitchen with an island and pantry. The primary bedroom suite includes a walk-in closet and a full bath. A laundry room, powder room, and coat closet add function near the entry. A two-bay garage sits to the left. Covered porches front and rear extend the living space outdoors.
Floor Plan

Stairs connect to a central loft flanked by two bedrooms, a shared bath, and an optional bonus room with attic storage.
Floor Plan
Main floor features primary suite, open living and kitchen, laundry, powder room, and two-car garage.
In The Details: A walk-in closet sits between the primary bedroom and bath, creating a private dressing corridor. Pantry storage connects directly to the kitchen, keeping daily traffic contained. Sloped ceiling space under the stairs is captured as usable storage rather than wasted square footage.
Carriage-Style Garage Doors Anchor a Modern Farmhouse Exterior

Wood barn-style garage doors with X-detailing, brick base, white board-and-batten siding, and wall sconces create a polished yet rustic facade.
Material Matters: Board-and-batten siding remains one of the most durable exterior cladding choices for farmhouse builds, shedding water efficiently due to its vertical orientation. Brick wainscoting at the base adds a contrasting material layer that protects against ground moisture and impact. Carriage-style garage doors are typically constructed from composite or solid wood and require periodic sealing to maintain their finish against weather exposure.
Brick Chimney and Covered Porches Define the Side Elevation

Warm light spills from three windows across white horizontal lap siding. A tall brick chimney anchors the left side of the gable wall. Covered porch extensions on both sides rest on wood columns. Hydrangeas, salvia, and layered shrubs fill the foundation beds below.
Try This: Exterior brick chimneys built flush against siding require a proper cricket or saddle flashing at the roofline to prevent water from pooling behind the stack. Ask your contractor to specify lead-coated copper flashing for long-term durability. It outlasts standard aluminum by decades in wet climates.
Gold Fixtures and Blue Accents Bring Contrast to a Light-Filled Living Space

Painted brick surrounds a gas fireplace below a wall-mounted TV. Blue velvet chairs and poufs pull color from the neutral palette of blush dining chairs and a cream sofa. Brass pendant lights over the dining table echo the gold chandelier nearby. Light hardwood flooring and white crown molding tie both spaces together.
Trend Alert: Mixing metals intentionally, pairing brass chandeliers with black curtain rods, has replaced the old rule of matching all hardware in a room. Designers now treat metal finishes like colors, using contrast to add visual interest rather than uniformity. Two to three metals in one space is considered the current standard.
Brass Chandelier and White Brick Fireplace Set the Tone for Open-Concept Living

Candlestick chandelier, subway brick surround, and cream sofa anchor a living space that flows directly into an adjacent dining area.
Candlestick chandelier, subway brick surround, and cream sofa anchor a living space that flows directly into an adjacent dining area.
Geometric Pendants and a Wood Island Base Ground a White Kitchen Design

Black chain pendants, green leather stools, marble countertops, and a fiddle-leaf fig anchor this kitchen.
Style Math: Pairing a natural wood island base with all-white perimeter cabinetry is a simple way to break up visual monotony without introducing a second paint color. Designers often call this “two-tone” cabinetry, and it works because wood reads as a neutral. Gold hardware pulls both finishes together into a single cohesive palette.
Pin It

Outside, white board-and-batten siding meets a covered front porch with columns. Below, the floor plan reveals a 62-foot-wide layout with a primary bedroom suite, open kitchen and living area, laundry, powder room, pantry, and a two-car garage sitting off to one side.
