
🔥 Would you like to save this?
Specifications
- Sq. Ft.: 2,023
- Bedrooms: 3
- Bathrooms: 2.5
Floor Plan

In order to come up with the very specific design ideas, we create most designs with the assistance of state-of-the-art AI interior design software. Also, assume links that take you off the site are affiliate links such as links to Amazon. this means we may earn a commission if you buy something.
Main floor shows owner’s suite, two bedrooms, family room, kitchen, dining, mud room, and covered porches front and back with stair access to optional basement.
Floor Plan

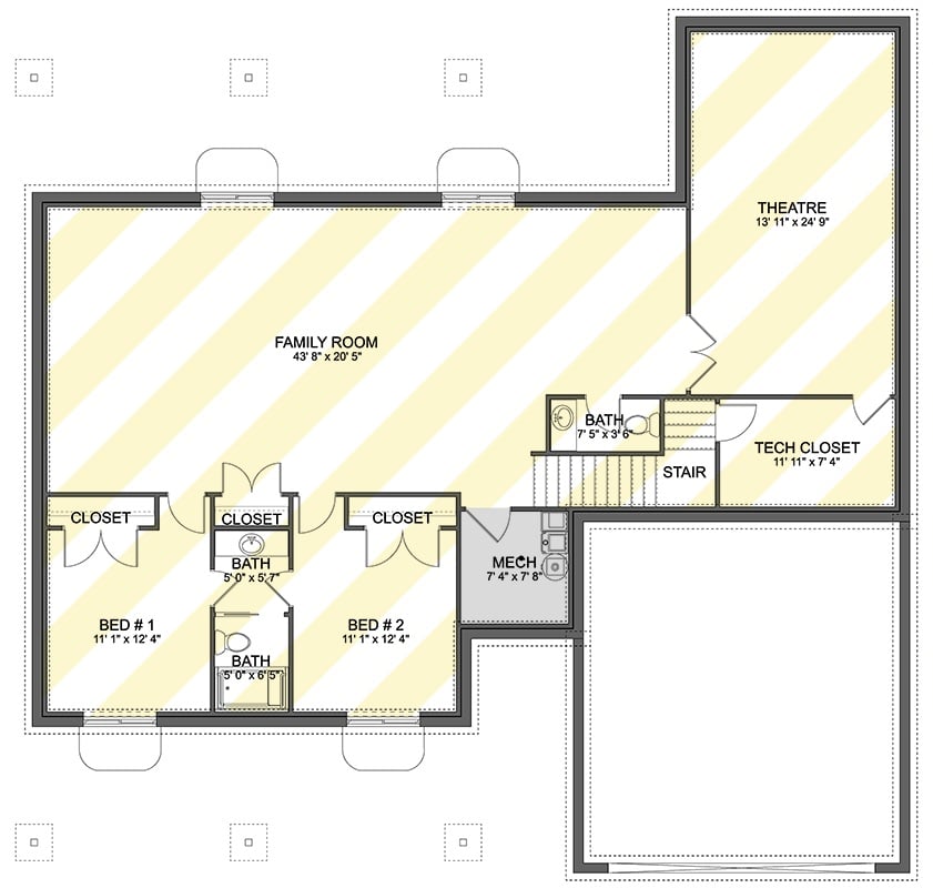
Basement layout includes a family room, two bedrooms with Jack and Jill bath, theatre, and mechanical spaces.
Designer’s Secret: Placing the Jack and Jill bath between two same-size bedrooms gives each child a private vanity zone while sharing one wet area. The theatre room sits tucked at the far end, keeping noise away from sleeping spaces. A dedicated tech closet keeps wiring and equipment organized and out of sight.
Vaulted Ceilings and Leather Sofas Define This Casual Living Space
Gray walls pair with hardwood floors and recessed lighting throughout. Two leather sofas flank a wood coffee table, while large windows with blinds frame a green backyard garden view.
- Vaulted ceilings add volume without requiring structural additions
- Recessed lighting along the ridge line keeps the ceiling clean and uncluttered
- Large side windows reduce daytime reliance on artificial light
Dark Granite Counters Anchor an Open Kitchen and Dining Space

White shaker cabinets meet black granite on the island and perimeter counters. Four metal barstools line the island. Stainless appliances, light hardwood floors, and plantation shutters complete the space.
Try This: Dark granite shows water spots less than polished black surfaces. Running the same countertop material across both the island and perimeter creates visual continuity without adding extra cost to the design budget.
Stainless Appliances and Black Granite Keep This Kitchen Grounded

Light hardwood floors contrast dark granite counters. Four metal barstools line the island. Recessed lighting and subway tile backsplash complete the space.
History Corner: Craftsman kitchens of the early 1900s relied on built-in cabinetry and natural materials as a direct response to the ornate excess of Victorian design. Shaker-style cabinet doors, like those shown here, trace directly back to that utilitarian tradition. The style has remained in production longer than almost any other American cabinetry profile.
Vaulted Master Bedroom Pairs Dark Wood Furniture with Soft Neutral Tones

Warm espresso wood anchors the bed frame, nightstands, and long dresser. Recessed lighting follows the cathedral ceiling ridge. Cream bedding and beige carpet keep the palette soft. A framed family portrait above the headboard adds personal character to an otherwise composed room.
Did You Know: Cathedral ceilings in master bedrooms became increasingly common in Craftsman-influenced homes built after 1990, borrowing the vaulted volume of older bungalow designs but applying it to larger footprints. The angled roofline above this room creates usable wall height while reducing the boxy feel that flat ceilings can produce in wide spaces.
Double Vanity with Black Granite Sets a Polished Tone in the Master Bath

Black granite paired with white cabinetry is one of the sharpest contrasts in bathroom design.
Brushed nickel hardware ties the dual undermount sinks, faucets, and cabinet pulls together. Large-format floor tile runs toward a glass-enclosed shower. Plantation shutters filter natural light across the orchid arrangement on the counter.
Skee-Ball, Billiards, and Ping-Pong Pack This Finished Basement Game Room

Hardwood flooring runs the full length of the room, tying together a pool table, ping-pong table, and skee-ball machine. Landscape paintings line the gray walls between doorways. A grand piano sits tucked in the far corner, adding an unexpected contrast to the arcade setup.
Editor’s Note: Skee-ball machines require roughly 10 to 12 feet of clear lane length, making a finished basement one of the few residential spaces that can realistically accommodate one. Positioning it along a long wall, as done here, preserves open floor space for other games without crowding any single activity.
Leather Recliners and Classic Movie Posters Make This Home Theater Work

Framed Star Wars and Dark Knight posters flank a projection screen in this dedicated theater room. Two rows of leather recliners sit on a stepped platform. Recessed ceiling lights keep ambient glow low without washing out the screen during playback.
Pin It

Outside, a gray-sided ranch with a metal roof sits behind rock-bordered landscaping and a straight concrete path. The floor plan below shows three bedrooms, two covered porches, a vaulted family room, mud room, pantry, and a staircase suggesting optional basement access below.
