
Would you like to save this?
Specifications
- Sq. Ft.: 1,820
- Bedrooms: 3-5
- Bathrooms: 2.5-3.5
- Stories: 2
- Garage: 2
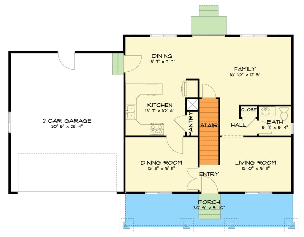
Main Level Floor Plan

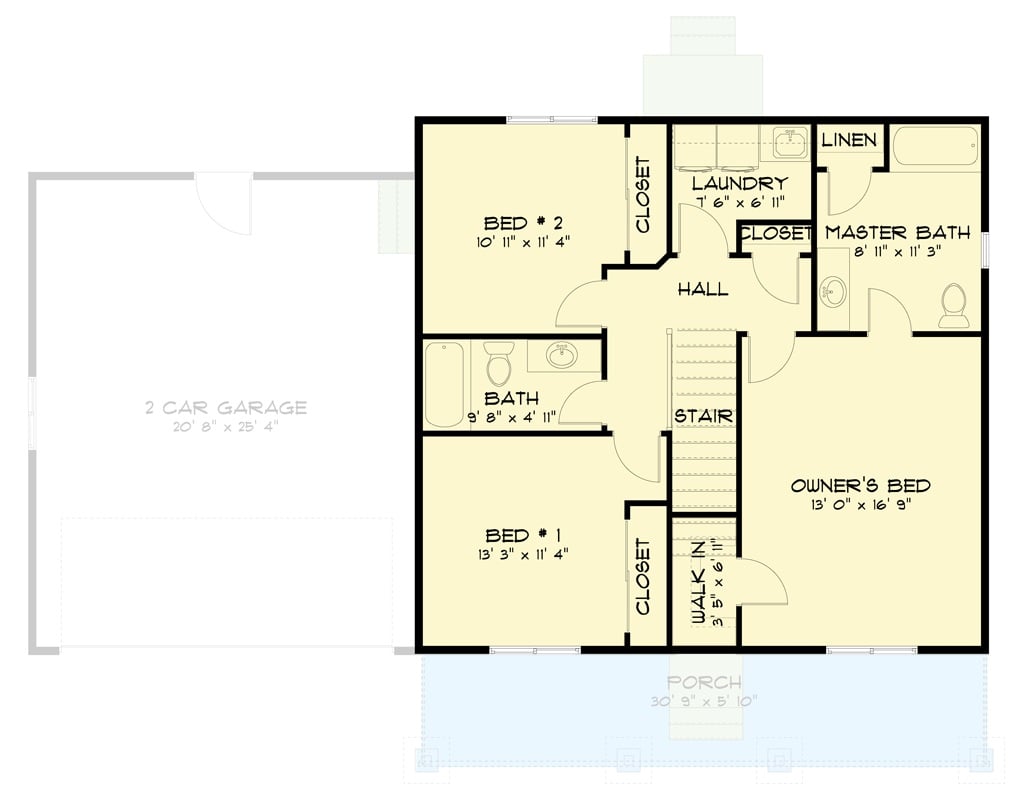
Second Level Floor Plan

๐ฅ Create Your Own Magical Home and Room Makeover
Upload a photo and generate before & after designs instantly.
ZERO designs skills needed. 61,700 happy users!
๐ Try the AI design tool here
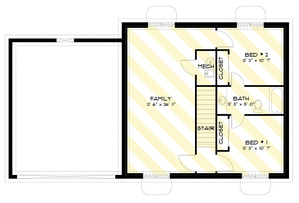
Lower Level Floor Plan

Optional Grand Primary Bathroom

Front-Right View

Front-Left View

Would you like to save this?
Rear View

Front-Left View

Living Room

Living Room

Living Room

Living Room

Dining Room

Dining Room

๐ฅ Create Your Own Magical Home and Room Makeover
Upload a photo and generate before & after designs instantly.
ZERO designs skills needed. 61,700 happy users!
๐ Try the AI design tool here
Family Room

Family Room

Kitchen

Kitchen

Kitchen

Would you like to save this?
Primary Bedroom

Sitting Room

Primary Bedroom

Primary Bedroom

Front Elevation

Right Elevation

Left Elevation

Rear Elevation
Details
This traditional two-story home offers a clean, welcoming exterior with simple siding, balanced window placement, and a covered front porch that adds everyday charm. The attached two-car garage keeps the layout practical while maintaining a traditional curb appeal.
Inside, the main level is organized with both open gathering areas and defined spaces for daily routines. The kitchen sits near the center of the home and connects easily to the family room and dining area, making it easy to stay connected while cooking or hosting.
A separate living room near the front adds extra flexibility for entertaining, a quiet sitting area, or everyday overflow space. A half bath and convenient storage areas round out the main floor, keeping the layout functional without feeling crowded.
Upstairs, the ownerโs bedroom is positioned for privacy and includes dedicated closet space and a full bath. Two additional bedrooms are located on the same level, giving the home a balanced setup for family or guests. An optional upgrade adds a larger primary bath layout, creating a more spacious and private suite feel while keeping the overall floor plan efficient.
The lower level adds even more usable space, anchored by a large family room that works well for a media setup, game space, or relaxed hangout area. Two more bedrooms are located on this level, along with a full bathroom, offering privacy for guests or older kids.
Pin It!

Architectural Designs Plan 61700UT
