
Would you like to save this?
Specifications
- Sq. Ft.: 1,272
- Bedrooms: 3
- Bathrooms: 2
- Stories: 2
The Floor Plan

Front-Right View

Front-Left View

Night View

Kitchen Style?
Living Room

Kitchen and Dining Area

Kitchen and Dining Area

Home Stratosphere Guide
Your Personality Already Knows
How Your Home Should Feel
113 pages of room-by-room design guidance built around your actual brain, your actual habits, and the way you actually live.
You might be an ISFJ or INFP designer…
You design through feeling — your spaces are personal, comforting, and full of meaning. The guide covers your exact color palettes, room layouts, and the one mistake your type always makes.
The full guide maps all 16 types to specific rooms, palettes & furniture picks ↓
You might be an ISTJ or INTJ designer…
You crave order, function, and visual calm. The guide shows you how to create spaces that feel both serene and intentional — without ending up sterile.
The full guide maps all 16 types to specific rooms, palettes & furniture picks ↓
You might be an ENFP or ESTP designer…
You design by instinct and energy. Your home should feel alive. The guide shows you how to channel that into rooms that feel curated, not chaotic.
The full guide maps all 16 types to specific rooms, palettes & furniture picks ↓
You might be an ENTJ or ESTJ designer…
You value quality, structure, and things done right. The guide gives you the framework to build rooms that feel polished without overthinking every detail.
The full guide maps all 16 types to specific rooms, palettes & furniture picks ↓
Primary Bedroom

Primary Bathroom

Details
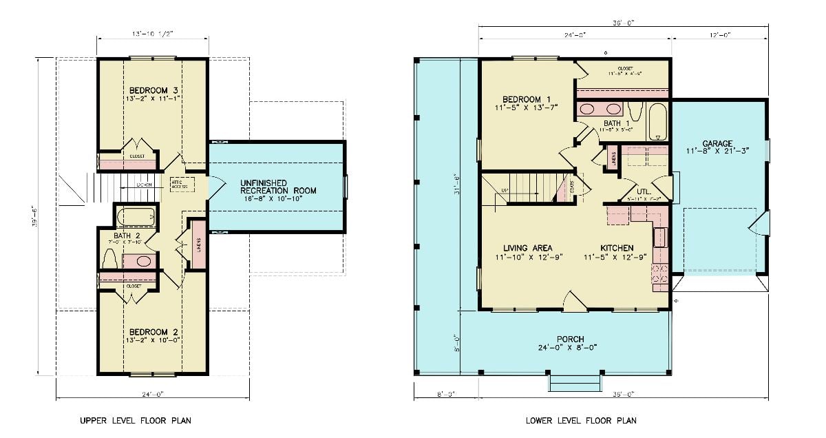
This bungalow-style home presents a warm, classic exterior with a welcoming front porch and a balanced roofline that gives it a timeless, approachable presence. An attached garage is positioned to the side, keeping the focus on the front entry and porch while integrating seamlessly into the overall design.
Inside, the living area sits at the front of the home and flows directly into the kitchen, creating a simple, efficient layout. The kitchen is positioned near the garage and utility area for easy access and daily function. A main-level bedroom is tucked away for privacy and is served by a full bath, making it perfect for primary living or guests.
Upstairs, two additional bedrooms are separated by a shared full bath, creating a private sleeping level. An unfinished recreation space provides flexibility for future use, whether as a playroom, home office, or additional living area.
Pin It!

Garrell Associates Plan GA25071










