
Would you like to save this?
Specifications
- Sq. Ft.: 1,956
- Bedrooms: 3-5
- Bathrooms: 3-4
- Stories: 2
- Garage: 2
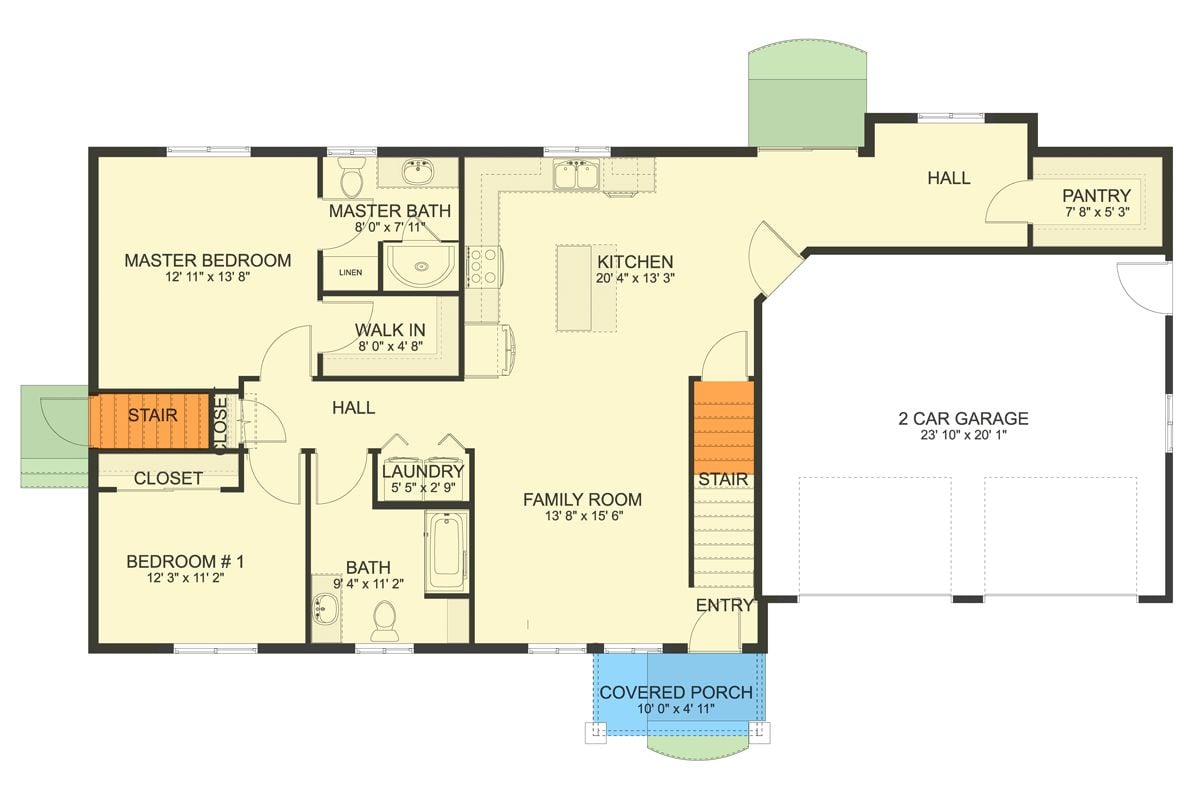
Main Level Floor Plan

Second Level Floor Plan

๐ฅ Create Your Own Magical Home and Room Makeover
Upload a photo and generate before & after designs instantly.
ZERO designs skills needed. 61,700 happy users!
๐ Try the AI design tool here
Lower Level Floor Plan

Front-Right View

Rear-Right View

Rear-Left View

Would you like to save this?
Front-Left View

Entry

Family Room

Family Room

Family Room

Kitchen

Kitchen

Kitchen

๐ฅ Create Your Own Magical Home and Room Makeover
Upload a photo and generate before & after designs instantly.
ZERO designs skills needed. 61,700 happy users!
๐ Try the AI design tool here
Hallway

Primary Bedroom

Primary Bedroom

Primary Bathroom

Front Elevation

Would you like to save this?
Right Elevation

Left Elevation

Rear Elevation

Details
This country-style home presents a clean, classic exterior with simple gabled rooflines, horizontal siding, and a centered covered entry that gives the faรงade a balanced, approachable look. An attached two-car garage is integrated smoothly into the design, keeping the profile practical and cohesive.
The main level is arranged around a central family room that connects directly to the kitchen, creating an easy, functional flow for daily living. The kitchen offers generous counter space, a pantry, and direct access to the garage through the entry hall.
The primary bedroom is located on the main level and includes a private bath and walk-in closet, while one additional bedroom and a full bath sit nearby, making the layout flexible for guests or everyday use.
The lower level adds additional living space with a family room, two bedrooms, a full bath, laundry, and mechanical and storage areas. An upper loft level provides a versatile bonus space alongside another bedroom and bath, offering options for quiet retreat, hobbies, or overnight guests while keeping the main living areas uncluttered.
Pin It!

Architectural Designs Plan 61719UT
