
Would you like to save this?
Specifications
- Sq. Ft.: 2,251
- Bedrooms: 3
- Bathrooms: 2.5
- Stories: 1
- Garage: 3
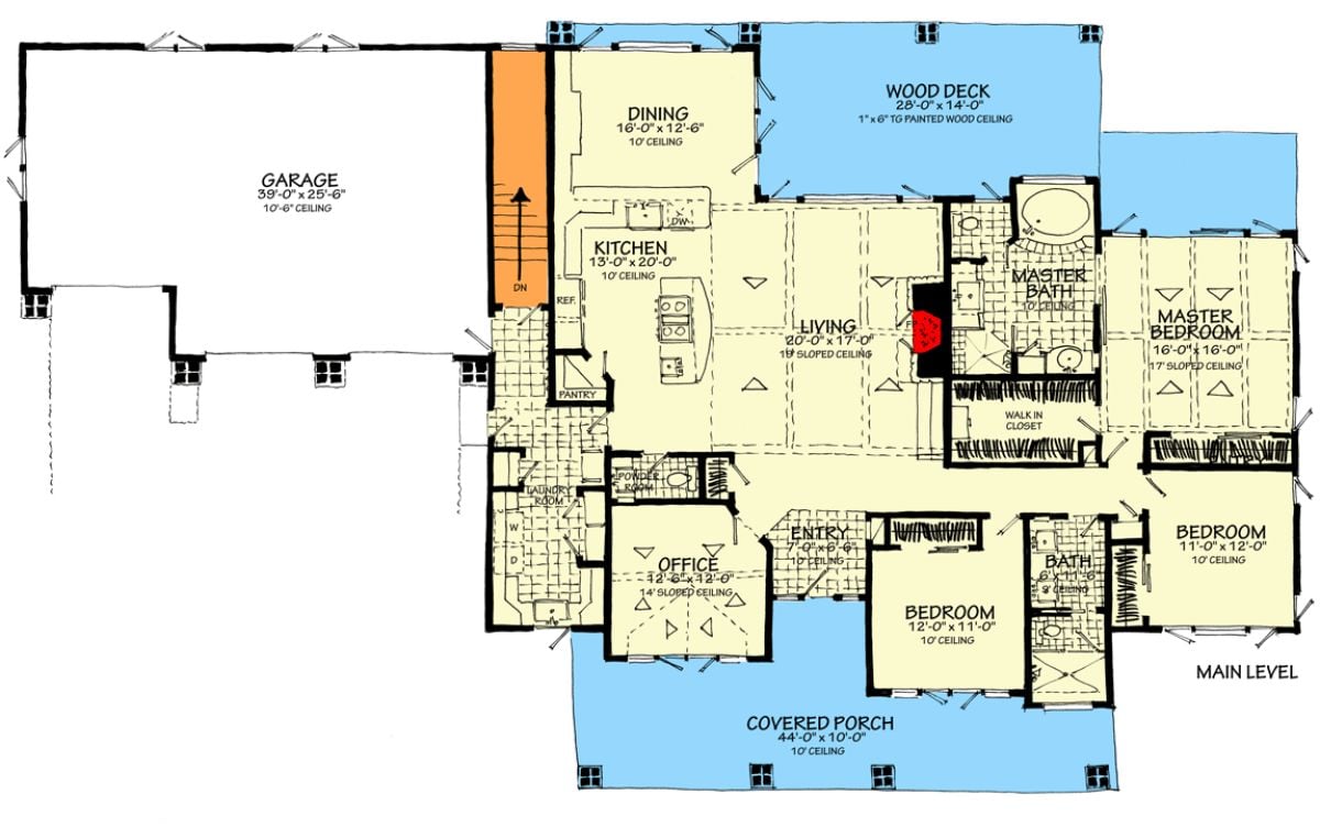
Main Level Floor Plan

Optional 3-Car Front-Facing Garage

๐ฅ Create Your Own Magical Home and Room Makeover
Upload a photo and generate before & after designs instantly.
ZERO designs skills needed. 61,700 happy users!
๐ Try the AI design tool here
Optional 3-Car Front-Facing Garage โ No Basement

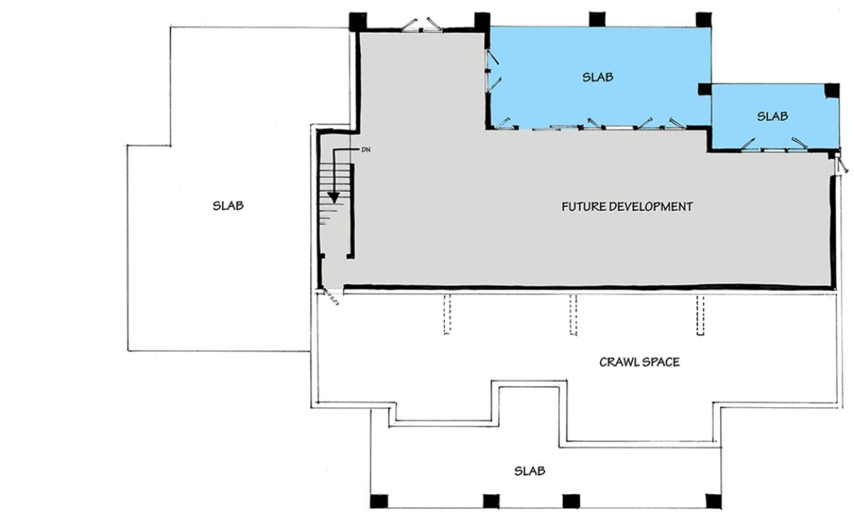
Unfinished Basement

Rear View

Living Room

Would you like to save this?
Kitchen

Front Elevation

Right Elevation

Left Elevation

Rear Elevation

Optional Front-Facing Garage

Details
This country home showcases classic horizontal siding with brick accents and a distinctive metal roof. An expansive, covered front porch and multiple gabled rooflines create timeless curb appeal with plenty of outdoor living space.
The open floor plan centers around a spacious living room with sloped ceilings that flows seamlessly into the dining area and kitchen. The kitchen features a walk-in pantry and connects to both the dining room and a large wood deck for indoor-outdoor entertaining.
The primary suite occupies its own private wing with a luxurious bathroom featuring dual vanities and a generous walk-in closet. Two additional bedrooms share a full bathroom on the main level, while a versatile office near the entry provides a dedicated workspace. A powder room, laundry area, and mud room with garage access complete the practical elements of this floor.
The two-car garage offers convenient parking and storage. This single-level design maximizes efficiency while providing distinct zones for family living, work, and relaxation, making it perfect for those seeking comfortable country living with modern conveniences.
Pin It!

Architectural Designs Plan 12962KN
