
🔥 Would you like to save this?
Specifications
- Sq. Ft.: 2,714
- Bedrooms: 3
- Bathrooms: 6
Floor Plan

In order to come up with the very specific design ideas, we create most designs with the assistance of state-of-the-art AI interior design software. Also, assume links that take you off the site are affiliate links such as links to Amazon. this means we may earn a commission if you buy something.
This mirror-image duplex places two 3-bedroom units side by side within a 34×54 footprint. Each unit opens from a front porch into Bed #3, flows through a dining area into the kitchen, and reaches a rear living room with sliding glass doors. Shared stair core sits at the center.
Floor Plan

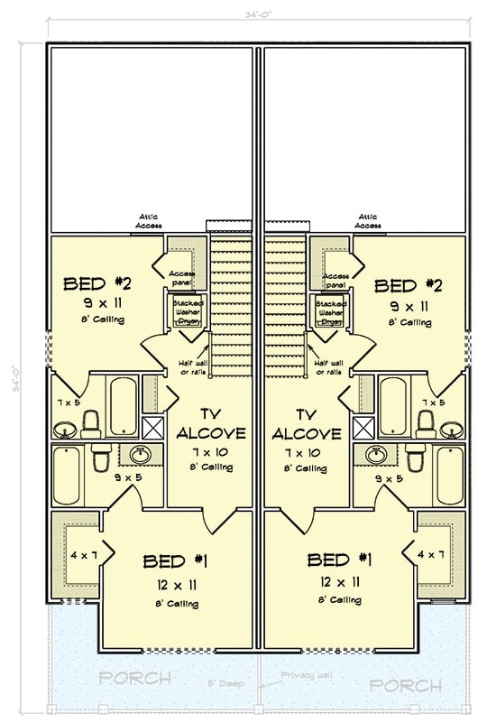
Each mirrored unit includes two bedrooms, a TV alcove, two bathrooms, stacked laundry, and shared stair access, all opening to a front porch.
Worth Knowing: Both units share a central stairwell with half walls or rails separating the spaces. Each side gets its own attic access and stacked washer-dryer alcove, keeping storage practical without eating into living areas. At 34 feet wide, the footprint suits narrow lots well.
Sunlit Living Room Pairs Van Gogh Wall Art with Views Over Open Lawn
Sage green walls frame three white-trim windows overlooking a grassy yard. Light wood floors, a mauve sofa, and two cream armchairs surround a wave-patterned rug beneath a flush ceiling fixture.
Light wood floors, a mauve sofa, and two cream armchairs surround a wave-patterned rug beneath a flush ceiling fixture.
Granite Island Kitchen Opens Into a Casual Living Space

White shaker cabinets pair with white-and-black granite countertops. Stainless appliances anchor the cooking zone. Bar-height seating lines the island, which holds an undermount sink facing the adjoining sitting area.
Why It Works: Positioning the sink on the island rather than the perimeter wall lets whoever is cooking maintain sightlines into the living space. It also keeps the window wall free, which draws more natural light across both zones.
Warm Wood Table Anchors a Dining Room Bathed in Afternoon Light

Soft green walls frame a rectangular wood dining table surrounded by white slat-back chairs. Natural light pours through a large side window, casting shadow patterns across the light hardwood floor. A fruit still-life painting adds color to the far wall. A glazed back door opens toward a grassy yard.
Reading the Paint Color Choice
Muted green in a dining room does more than add color. It reads as neutral enough to work with wood tones and white trim without competing with either. Paint manufacturers classify this range as “greyed sage,” and it tends to hold its tone under both natural daylight and warm artificial lighting, making it reliable across morning and evening use.
Green Bedding and Wood Tones Bring Garden-Fresh Calm to a Country Bedroom

Patterned yellow-green bedding covers a platform bed with a walnut frame and an upholstered headboard. Hardwood floors, sage walls, and a large window with tree views complete the space.
Did You Know: Upholstered headboards with wood trim frames became popular in country-style homes during the mid-20th century as a way to add softness without sacrificing structure. Pairing them with warm walnut finishes keeps the room feeling grounded rather than overly decorative.
Granite Vanity Top and Round Mirror Define a Powder Room Worth Noticing

Speckled black-and-white granite covers the vanity top and backsplash. Painted cabinet doors in light gray carry brushed nickel hardware throughout. A single undermount sink sits centered below a round frameless mirror mounted against pale green-gray walls.
Color Story: Gray-green paint pulls double duty here, reading almost neutral in bright light but picking up cooler undertones when the room dims. Pairing it with white-speckled granite keeps the palette cohesive without relying on any single dominant color. The result holds together because every surface stays within the same cool, muted range.
Open Loft Landing Puts a Wall-Mounted TV Above the Stair Rail

Light oak floors run beneath two upholstered chairs and a wood side table. Sage-green walls meet the staircase opening, where a wood rail separates the loft from the drop below.
Pin It

Outside, a two-story farmhouse exterior shows a covered front porch, green shutters, and white lap siding. Below, the floor plan reveals mirror-image units side by side, each holding a 16×15 living room, kitchen with island, dining area, and a bedroom that doubles as an optional study, all on the ground floor.
🔥 Would you like to save this?
Introducing “The Remington Home” – A Handsome Country 3-Bedroom Design (Includes 2D Floor Plan Drawings)
Sq. Ft.: 1,915 | Bedrooms: 3 | Bathrooms: 2
Discover This 1,416 Sq. Ft., 3 Bedroom Home—Check Out the Bright, Open Floor Plan
Sq. Ft.: 1,416 | Bedrooms: 3 | Bathrooms: 2
Two-Story 3-Bedroom Country Home with Bonus Room and Wraparound Porch (Floor Plan)
Sq. Ft.: 2,752 | Bedrooms: 3 | Bathrooms: 2.5
Welcome to This Single-Story Hill Country Home, Designed for a Wide Lot (Over 3,000 Sq. Ft.)
Sq. Ft.: 3,078 | Bedrooms: 3 | Bathrooms: 3.5
Clearfield Grove 3-Bedroom Country Home for a Sloped Lot with Loft and Wet Bar (Floor Plan)
Sq. Ft.: 2,684 | Bedrooms: 3 | Bathrooms: 2.5

