
🔥 Would you like to save this?
Specifications
- Sq. Ft.: 3,692
- Bedrooms: 3
- Bathrooms: 2.5
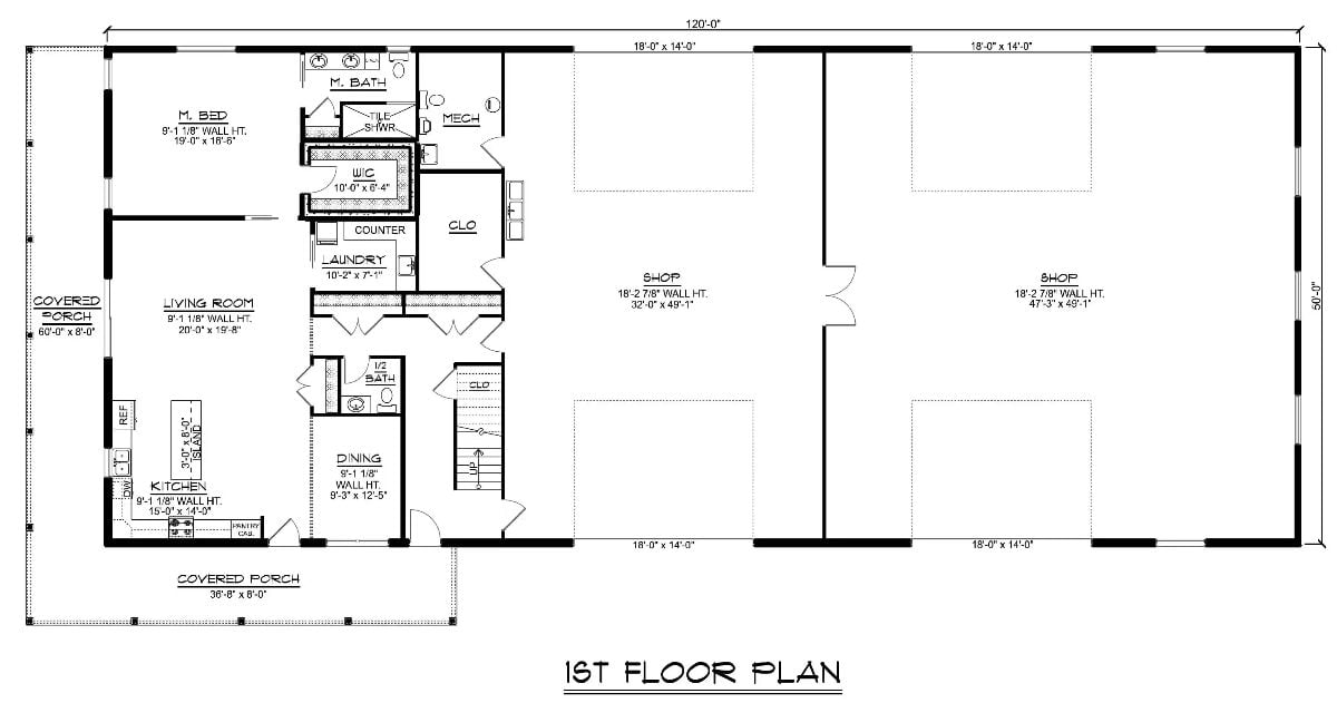
Floor Plan

In order to come up with the very specific design ideas, we create most designs with the assistance of state-of-the-art AI interior design software. Also, assume links that take you off the site are affiliate links such as links to Amazon. this means we may earn a commission if you buy something.
The first floor combines residential and commercial space. Left side features master bedroom, living room, kitchen, and dining area with two full baths. Right side showcases two identical shop spaces with tall ceilings. Covered porch wraps the front entry.
Floor Plan

Second floor features two bedrooms flanking a central bathroom, with a mechanical room to the left. A rec room occupies most of the level, adjacent to a kitchen with an 8-foot wall height. Stairs descend centrally between kitchen and rec areas.
Fun Fact: Barndominiums often place living spaces on upper floors to maximize the open workshop or garage area below. This layout dedicates the second story to private quarters and entertaining, keeping the ground level free for vehicles and hobbies.
White Board-and-Batten Barndominium with Wraparound Metal Porch
White vertical siding covers this two-story barndominium exterior featuring three decorative cupolas along the roofline. A wraparound porch with bronze metal awning shelters large windows and opens to manicured lawn and mature trees beyond.
Open Living Space with Dark Beams and Vertical Shiplap Walls

Exposed dark ceiling beams contrast against cream-painted vertical shiplap paneling throughout this combined living and dining area. A black ceiling fan anchors the seating zone, while large windows frame outdoor views. Natural wood flooring flows beneath a beige sectional sofa and casual dining setup with bar stools flanking a wood-topped island.
Modern Kitchen with Taupe Shaker Cabinets and Globe Pendant Lights

Taupe shaker cabinets frame this kitchen, complemented by a white quartz island with seating for three. Globe pendants with brass accents hang above the workspace. Stainless steel appliances include a French-door refrigerator and range hood. Linear tile backsplash extends to the ceiling. Wood-look flooring grounds the neutral palette throughout.
Dining Room with Mid-Century Chairs and Brass Globe Chandelier

Natural wood chairs surround a black table beneath a brass chandelier with globe bulbs. Gray accent wall anchors a round mirror above a ribbed sideboard.
Primary Bedroom with Circular Chandelier and Wraparound Windows

Crisp white walls frame a upholstered bed flanked by matching table lamps on dark nightstands. Floor-to-ceiling curtains soften large windows on three sides. A wooden bench at the foot adds warmth against neutral bedding. Brass chandelier anchors the space overhead.
Luxury Primary Bath with Walk-In Shower and Subway Tile Surround

Glass-enclosed shower features beige subway tiles, built-in niches, and overhead globe lighting with wood vanity bench.
Did You Know: Walk-in showers without curbs create a barrier-free bathing experience that improves accessibility and makes the entire bathroom feel larger. The continuous floor plane allows water to drain through a linear channel while maintaining an open sightline from entry to the back wall.
Pin It

This combined view showcases both the exterior rendering and first floor plan of the barndominium. Above, board-and-batten siding in cream and brown pairs with a metal roof and three cupolas. Below, the layout reveals living areas on the left with two shop bays on the right.
🔥 Would you like to save this?
Step into Contemporary Bliss: A 2,731 Sq. Ft. 3-Bedroom Farmhouse with Unmatched Indoor-Outdoor Harmony (Must-See Floor Plan)
Sq. Ft.: 2,731 Bedrooms: 3 Bathrooms: 2.5
3-Bedroom Innovative Quonset Hut Barndominium with Loft Space and Open-Concept Living (Floor Plan)
Sq. Ft.: 2,490 | Bedrooms: 3 | Bathrooms: 2
Barndominium-Style 3-Bedroom Home with Wraparound Porch and Balcony (Floor Plan)
Sq. Ft.: 4,769 | Bedrooms: 3 | Bathrooms: 2.5+
Discover the Timeless Charm of This 3-Bedroom Craftsman-Style Family Home (2,227 Sq. Ft. Floor Plan Included)
Sq. Ft.: 2.227 Bedrooms: 3 Bathrooms: 2.5

