
🔥 Would you like to save this?
Specifications
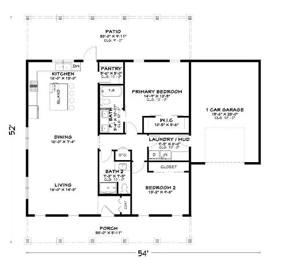
- Sq. Ft.: 1,368
- Bedrooms: 2
- Bathrooms: 2
Floor Plan

In order to come up with the very specific design ideas, we create most designs with the assistance of state-of-the-art AI interior design software.
This ranch layout features an open living and dining area that connects directly to the kitchen. The primary bedroom includes an ensuite bath and walk-in closet. A second bedroom shares access to a hall bathroom. The home includes a pantry, laundry room, covered patio, and attached single-car garage.
Light Gray Board-and-Batten Exterior with Brick Base and Covered Porches

White vertical siding covers the upper walls while charcoal brick forms a sturdy foundation. Wide covered porches flank both sides. Palm trees frame the modern farmhouse under cloudy skies.
Open-Plan Living Room and Kitchen with Garden Views Through Bay Windows
Charcoal sofas with cane panel details anchor the living area. A round oak coffee table sits on dark gray carpet. White kitchen cabinets line the back wall beneath a black range hood.
Mid-Century Modern Living Area with Tall Windows and Natural Light

Dark gray upholstered sofa and armchairs anchor a conversation area on a woven rug. Light oak flooring complements the wooden furniture frames. Multiple white-trimmed windows frame views of green lawns and trees. Abstract geometric artwork hangs above the seating zone.
Did You Know: Ranch homes with vaulted ceilings often incorporate clerestory windows near the roofline to maximize natural light without sacrificing wall space for furniture placement. The tall vertical volume helps regulate temperature by allowing warm air to rise away from living areas during summer months.
Kitchen Island with Dark Cross-Panel Base and Gray Concrete Countertops

Concrete countertops span the kitchen island with its dark wood base featuring decorative X-pattern panels. Five wooden bar stools line up for casual dining. Natural light streams through double windows above white shaker cabinets, warming beige walls and oak flooring throughout the space.
Primary Bedroom with Botanical Prints and Platform Bed on Pale Oak Floors

A gray platform bed anchors the space beneath architectural artwork and botanical prints. Sheer curtains filter natural light across pale oak flooring. Layered bedding in neutral tones complements the streamlined black nightstands and minimal table lamps.
Pin It

Modern two-story home exterior shows cream stucco walls with covered porch and column lighting at dusk. Floor plan below reveals open living and dining areas, two bedrooms, kitchen with pantry, and attached single-car garage.
🔥 Would you like to save this?
Step Inside this Thoughtfully Designed 2-Bedroom Modern Scandinavian Abode (Take a Look at This 1,408 Sq. Ft. Floor Plan)
Sq. Ft.: 1,408 | Bedrooms: 1-2 | Bathrooms: 1
Discover the Perfect 1,064 Sq. Ft. 2 Bedroom Single Story Home with Open Living and a Floor Plan You’ll Love
Sq. Ft.: 1,064 | Bedrooms: 2 | Bathrooms: 2
Check Out This 2,166 Sq. Ft. 2 Bedroom Duplex with Open Living and a Courtyard (Floor Plan Included)
Sq. Ft.: 2,166 | Units: 2
Discover the Incredible 2,346 Sq. Ft. 2 Bedroom Home with Wrap Around Porch – Floor Plan Included
Sq. Ft.: 2,346 | Bedrooms: 2 | Bathrooms: 2.5
Mountain 2-Bedroom Ranch for a Wide Lot with 3-Car Garage (Floor Plan)
Sq. Ft.: 1,837 | Bedrooms: 2 | Bathrooms: 2.5
