
🔥 Would you like to save this?
Specifications
- Sq. Ft.: 1,892
- Bedrooms: 4
- Bathrooms: 4
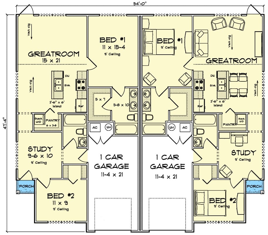
Floor Plan

In order to come up with the very specific design ideas, we create most designs with the assistance of state-of-the-art AI interior design software. Also, assume links that take you off the site are affiliate links such as links to Amazon. this means we may earn a commission if you buy something.
This duplex plan shows mirror-image units, each with two bedrooms, great room, study, and single-car garage. Central wall divides the structure into equal halves.
White Farmhouse Exterior with Board-and-Batten Siding and French Doors

Vertical board-and-batten siding wraps the exterior in crisp white. Large French doors with divided lights open onto a patio with wooden rocking chairs. Black shutters frame each window, creating contrast against the pale facade. A gabled roofline caps the structure, while mature trees rise behind the home, framing the scene under a blue sky.
Open-Concept Suite with Garden Views and Integrated Living Spaces
Gray walls frame white furniture and wood tones. A granite countertop edges the space. French doors reveal green lawns outside.
Open-Concept Kitchen and Dining Area with White Cabinetry and Wood Seating

White shaker cabinets pair with granite countertops and stainless steel appliances. Light wood flooring extends throughout. Four wooden chairs surround a small dining table bathed in natural light from adjacent windows.
Did You Know: Open-concept kitchens gained popularity in the 1990s as families sought more casual, interactive living spaces. Removing walls between cooking and dining areas allows hosts to prepare meals while staying connected to guests. The layout also maximizes natural light penetration, reducing daytime electricity costs by up to 15 percent in some homes.
Minimalist Bedroom with White Mullioned Windows and Wood Furniture

Soft gray walls create a calm backdrop for wood furniture in warm tones. A bed with geometric black and white bedding anchors the space. Twin nightstands flank the headboard. A matching dresser sits beneath double-hung windows divided by mullions. The view opens to a manicured lawn and trees. Light wood-look flooring runs throughout the room.
Home Office with Walnut Storage and View to Hallway

Walnut desk and glass-front cabinet pair with a modern gray office chair. Light wood flooring extends through the open doorway into the adjacent hallway space.
Pin It

The upper rendering showcases a modern farmhouse duplex with board-and-batten siding, twin garages, and symmetrical entry porches beneath a dark shingle roof. Below, the mirrored floor plan reveals each unit’s open-concept greatroom, two bedrooms, study, full bathroom, and pantry with washer-dryer hookups adjacent to single-car garages.
🔥 Would you like to save this?
Step Inside This 3,501 Sq. Ft. 4 Bedroom Home Made for Coastal Living (Floor Plan Included)
Sq. Ft.: 3,501 | Bedrooms: 4 | Bathrooms: 4
Discover 2,520 Sq. Ft. of Open Living in This 4 Bedroom House with a Wraparound Porch – Floor Plan Inside
Sq. Ft.: 2,520 | Bedrooms: 4 | Bathrooms: 2.5
Step Inside This Charming 1,806 Sq. Ft. Ranch Home with 4 Bedrooms and Versatile Living Spaces (Check Out the Complete Floor Plan Here)
Sq. Ft.: 1,806 | Bedrooms: 1-4 | Bathrooms: 1.5-2.5
Discover the Alluring Blend of Tradition and Modernity in This 4-Bedroom New American Home (See the Floor Plan)
Sq. Ft.: 2,739 | Bedrooms: 4 | Bathrooms: 3.5
Welcome to 2,413 Sq. Ft. of Style: A 4 Bedroom Home with a Floor Plan You Can’t Miss
Sq. Ft.: 2,413 | Bedrooms: 4 | Bathrooms: 3.5

