
🔥 Would you like to save this?
Specifications
- Sq. Ft.: 2,442
- Bedrooms: 4
- Bathrooms: 2.5
Floor Plan

In order to come up with the very specific design ideas, we create most designs with the assistance of state-of-the-art AI interior design software. Also, assume links that take you off the site are affiliate links such as links to Amazon. this means we may earn a commission if you buy something.
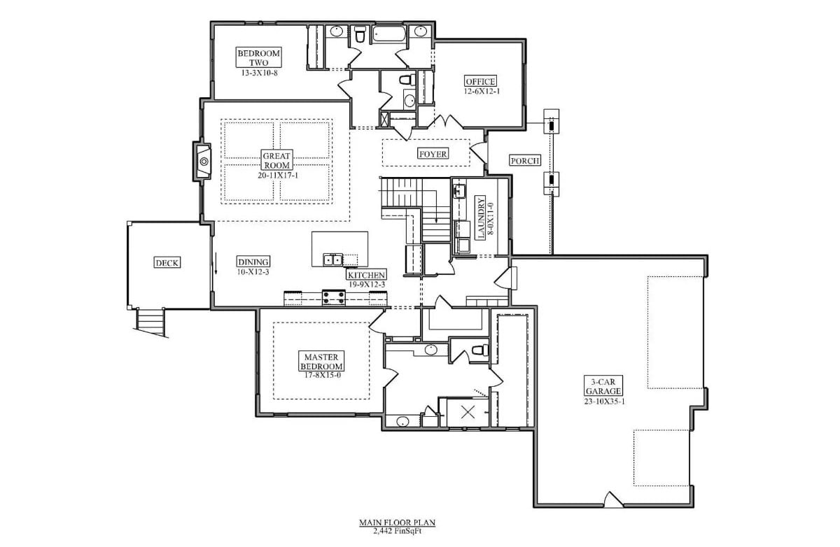
This main floor plan presents 2,432 square feet with three bedrooms, an office, and a great room as focal points. The master bedroom occupies the lower left with private bath access. Kitchen and dining areas connect centrally, while a foyer links to the laundry and three-car garage. A deck extends from the dining space.
Floor Plan

The lower level showcases a large recreation area connected to a media room and exercise room. Wet bar serves central gathering spaces. Bedrooms three and four occupy the right wing with shared bathroom access between them.
Rear Exterior with Walk-Out Basement and Metal Staircase
Gray board-and-batten siding wraps the elevated rear entry, where black metal railings frame stairs descending to the walk-out basement patio below green lawn.
Open-Concept Living with Tray Ceiling and Custom Built-Ins

White sofas anchor the seating area, dressed with navy velvet pillows. Two peacock-blue swivel chairs flank a leather ottoman. Gray built-in cabinetry with open shelving lines one wall. The tray ceiling features a dark gray inset with a wood-blade fan. Kitchen island and white cabinetry visible beyond.
Open Kitchen and Dining Area with Blue Velvet Seating

A round dark wood table seats six with white chairs upholstered in rich blue velvet. The kitchen island features matching blue cabinetry and a granite top. Pendant lighting with clear glass shades illuminates both zones. White upper cabinets reach the ceiling, complemented by subway tile backsplash and stainless steel appliances.
Spa-Inspired Primary Bathroom with Herringbone Tile Shower

Subway tiles frame the walk-in shower in horizontal and herringbone patterns. Glass panels separate the shower from the vanity. Dark cabinetry anchors the space beneath a patterned backsplash. Large-format marble flooring completes the design with neutral veining.
Multi-Purpose Laundry and Workspace with Mudroom Access

Pale gray cabinetry and natural wood countertops create functional work surfaces in this combined laundry and office area. Silver front-load washers nestle beneath the counter on charcoal tile flooring. An adjacent mudroom features shiplap paneling, wall hooks, and woven baskets for organized storage. Horizontal blinds filter natural light across the built-in desk area, where potted greenery adds life to the practical space.
Pin It

Modern ranch-style exterior showcases stone and board-and-batten siding with three garage bays. Below, the floor plan reveals 2,442 square feet with a master suite, great room, kitchen, dining area, office, second bedroom, laundry, deck, and covered porch arranged in an open layout.
Editor’s Note: Ranch homes with three-car garages typically allocate 600 to 700 square feet just for vehicle storage, which represents nearly 30% of this home’s total footprint. The extra bay often doubles as workshop space or seasonal storage for recreational equipment.
🔥 Would you like to save this?
Tour This 2,883 Sq. Ft. 4 Bedroom Farmhouse Full of Unique Touches – Must See Floor Plan
Sq. Ft.: 2,883 | Bedrooms: 4 | Bathrooms: 2.5
4-Bedroom Two-Story Modern Farmhouse Ranch for a Sloping Lot with Bonus Room (Floor Plan)
Sq. Ft.: 3,321 Bedrooms: 3-4 Bathrooms: 3
4-Bedroom Single-Story Rustic Cottage for a Rear Sloping Lot (Floor Plan)
Sq. Ft.: 2,760 | Bedrooms: 3-4 | Bathrooms: 3.5
