
🔥 Would you like to save this?
Specifications
- Sq. Ft.: 2,839
- Bedrooms: 3
- Bathrooms: 3.5
Floor Plan

In order to come up with the very specific design ideas, we create most designs with the assistance of state-of-the-art AI interior design software. Also, assume links that take you off the site are affiliate links such as links to Amazon. this means we may earn a commission if you buy something.
This main floor plan showcases an open layout connecting the kitchen, dining room, and great room. The kitchen measures 14×16 feet with an adjacent pantry and mudroom. A deck spans 34×12 feet, accessible from the dining area. The office sits near the entry, while a two-car garage provides 22×24 feet of space. The foyer includes a powder room and connects to exterior stairs.
Floor Plan

The second floor features a master bedroom with walk-in closet and private bathroom positioned on the left. A covered porch and deck extend across the upper level, providing outdoor space. The great room occupies the right side, with stairs centrally located for access. The master bath includes dual sinks and a spacious layout connecting to the walk-in closet.
By The Numbers: The second floor totals approximately 1,200 square feet of living space. The deck spans 585 square feet while the covered porch adds 90 square feet of sheltered outdoor area. Combined with the master suite, this level dedicates nearly half its footprint to private retreat spaces.
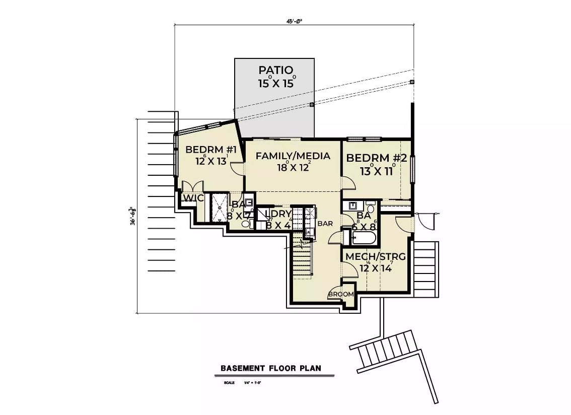
Floor Plan
Basement level includes two bedrooms with walk-in closets, a family and media room, laundry, and full bathroom. Mechanical storage sits beside stairs. A 15×15 patio extends from bedroom one with outdoor access.
Vaulted Living Room with Stone Fireplace and Floor-to-Ceiling Windows

High ceilings frame a stone fireplace beneath circular metal pendants. White sofas surround a wood coffee table while black-framed doors reveal the deck.
Open Kitchen and Dining Area with Globe Pendant Lights

White shaker cabinetry contrasts with dark gray base cabinets throughout the kitchen. Three chrome globe pendants hang above a light wood dining table. A farmhouse sink sits beneath a picture window. Bar stools tuck under the island counter, while a barn door frames the left side.
Modern Kitchen with White Marble Island and Sliding Pantry Door

Marble waterfall countertops anchor a bright island with integrated sink and chrome faucet. White shaker cabinets contrast dark gray lower drawers. A frosted glass barn door reveals organized pantry storage. Stainless appliances and pendant lighting complete the space.
Serene Primary Bedroom with Shiplap Accent Wall and Ensuite Access

Neutral tones dominate with beige upholstered headboard, crisp linens, wood nightstands, and black ceiling fan overhead.
Spa-Like Primary Bath with Dual Vanities and Freestanding Soaking Tub

Glass pendant lights hang above rectangular vessel sinks set into pale stone countertops. Light wood cabinetry provides warmth beneath. A freestanding tub sits near floor-to-ceiling windows overlooking water views, while a frameless glass shower enclosure features mosaic tile accents.
The Psychology Behind This: Bathrooms with water views tap into our evolutionary preference for prospect and refuge. Bathing near large windows satisfies our need for openness while the enclosed tub creates safety, triggering deep relaxation responses.
Contemporary Family Room with Modern Chandelier and Sliding Glass Doors

Brown sectional sofa anchors a space with gray flooring and cream walls. Geometric patterned armchair sits beside black-framed sliding doors. Modern sputnik chandelier provides overhead lighting. Abstract artwork in brown tones complements the furniture palette.
Covered Deck with Recessed Heaters and Outdoor Lounge Seating

Recessed infrared heaters mount flush into a wood plank ceiling, extending seasonal use of this outdoor space. Light wood furniture with pale cushions creates a relaxed lounge area. Large format gray tile flooring provides a clean backdrop. Black-framed sliding doors connect interior living areas to the deck.
Pin It

Modern two-story exterior showcases mixed materials including wood siding, stone veneer, and horizontal lap boards. Below, the main floor plan reveals an open layout with garage access.
🔥 Would you like to save this?
3-Bedroom Modern Ranch with Double Garage and Covered Patio (Floor Plan)
Sq. Ft.: 1,680 | Bedrooms: 3 | Bathrooms: 2
Modern 3-Bedroom Mountain Home with Loft and Open-Concept Living (Floor Plan)
Sq. Ft.: 1,819 | Bedrooms: 3 | Bathrooms: 2.5
Rustic 3-Bedroom Mountain Home with Balcony Loft and Grilling Front Porch (Floor Plan)
Sq. Ft.: 1,763 | Bedrooms: 3 | Bathrooms: 2.5
Two-Story Modern 3-Bedroom Craftsman with Jack & Jill Bath and Stacked Front Porches (Floor Plan)
Sq. Ft.: 1,634 | Bedrooms: 3 | Bathrooms: 2.5

