
🔥 Would you like to save this?
Specifications
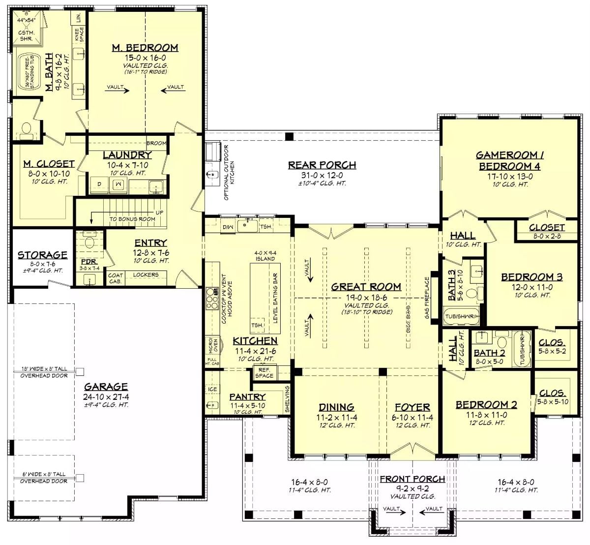
- Sq. Ft.: 2,600
- Bedrooms: 4
- Bathrooms: 3.5
Floor Plan

In order to come up with the very specific design ideas, we create most designs with the assistance of state-of-the-art AI interior design software. Also, assume links that take you off the site are affiliate links such as links to Amazon. this means we may earn a commission if you buy something.
This ranch layout features a master suite with vaulted ceiling and private bath, open great room and kitchen, three additional bedrooms, formal dining, foyer, and rear porch.
Floor Plan

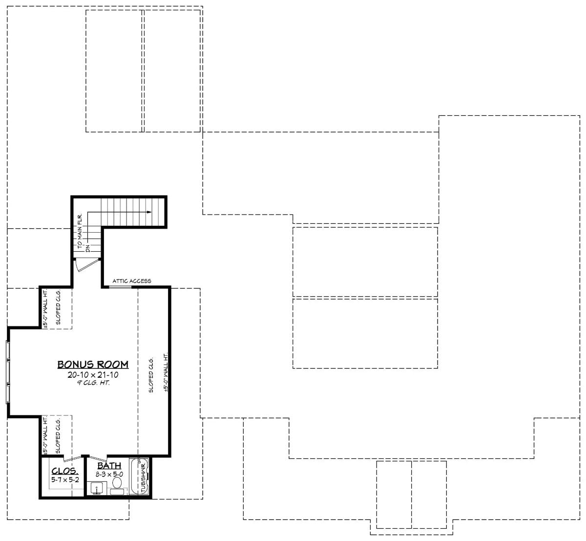
The upper level reveals a spacious bonus room measuring 20-10 x 21-10 with 9-foot ceilings, positioned above the double garage. A full bath with an 8-3 x 5-0 layout sits adjacent to a closet. Attic access provides storage options. The staircase features a convenient dogwalker area. Scattered storage closets flank the main bonus room space.
Moving from architectural layouts to lived spaces, we now see the design in full dimension.
Open Concept Living with Vaulted Ceilings and Natural Light Throughout
White walls meet natural wood flooring in this open layout. A timber post anchors the space between dining and living areas. White upholstered sofas contrast with light oak chairs surrounding the dining table. Botanical prints line the right wall above wood cabinetry.
Open Concept Living with Vaulted Ceilings and Natural Light Throughout

Cream-colored walls complement a stacked stone fireplace with built-in gas insert and rustic wood mantel. Two white sofas with patterned pillows anchor the seating area around a glass and metal coffee table. Tan leather poufs add flexible seating. A wooden beam column marks the transition to the dining area. Black-framed windows flood the space with natural light.
Bright Kitchen with Pendant Lighting and Woven Counter Stools

Light gray cabinets extend to the ceiling, maximizing storage throughout. Three pendant fixtures with brass hardware hang above the island. Four woven cane-back stools with cushioned seats line the marble countertop. Subway tile covers the backsplash. A stainless steel refrigerator features gold hardware that coordinates with the sink fixtures. Wood-look flooring runs throughout the space.
Formal Dining Room with Black-Framed Doors and Mid-Century Furniture

Natural wood chairs with beige upholstered seats surround an oval dining table centered on a neutral area rug. A black chandelier hangs above the arrangement. Black-framed French doors and tall windows create architectural contrast against crisp white walls. Two framed botanical prints add subtle texture to the right wall. Fresh greenery in a ceramic vase completes the centerpiece.
Primary Bedroom with Vaulted Ceilings and Accent Wall in Charcoal Gray

Sage green walls meet a charcoal accent wall behind an upholstered bed dressed in crisp white linens and gray throws. An arched floor mirror leans against the wall near a potted fiddle leaf fig. Wood nightstands flank the bed beneath matching lamps. A tufted bench sits at the foot, styled with a wooden tray. Hardwood floors extend throughout, anchored by a neutral area rug.
Spa-Inspired Bathroom with Black Subway Tiles and Brass Fixtures

Dark subway tiles frame a glass-enclosed shower beside a freestanding tub. Gold fixtures and hardware complement white marble countertops and cabinetry throughout.
Pro Tip: Consider installing a window inside your shower enclosure to bring in natural light while maintaining privacy with frosted glass or blinds. Position the shower on an exterior wall during planning stages to make this feature possible without complex plumbing reroutes.
Pin It

Exterior shows a modern farmhouse with white board-and-batten siding, dark gray roof, and wood accents framing the covered front porch. Floor plan reveals four bedrooms including a main suite with vaulted ceilings, bonus room above garage, open great room connecting to kitchen and dining, plus rear porch access.
🔥 Would you like to save this?
Discover This Mid-Century Modern Marvel: A One-Story 4-Bedroom Home with Ample Space and Style (3,536 Sq. Ft. Floor Plan)
Sq. Ft.: 3,536 | Bedrooms: 3-4 | Bathrooms: 4
4-Bedroom Ranch with 3-Car Tandem Garage and Covered Patio (Floor Plan)
Sq. Ft.: 1,838 | Bedrooms: 3-4 | Bathrooms: 2.5
Discover the Perfect Blend of Rustic Craftsmanship and Modern Living in This 3,258 Sq. Ft. 4-Bedroom Home (See the Detailed Floor Plan Layout)
Sq. Ft.: 3,258 Bedrooms: 4 Bathrooms: 3.5
4-Bedroom Mulberry 2 Ranch with 2-Car Garage and Walkout Basement (Floor Plan)
Sq. Ft.: 2,985 | Bedrooms: 4 | Bathrooms: 3
4-Bedroom Ranch with Covered Patio and 2-Car Side-Loading Garage (Floor Plan)
Sq. Ft.: 3,004 | Bedrooms: 4 | Bathrooms: 3.5

