
🔥 Would you like to save this?
Specifications
- Sq. Ft.: 2,224
- Bedrooms: 4
- Bathrooms: 3
Floor Plan

In order to come up with the very specific design ideas, we create most designs with the assistance of state-of-the-art AI interior design software. Also, assume links that take you off the site are affiliate links such as links to Amazon. this means we may earn a commission if you buy something.
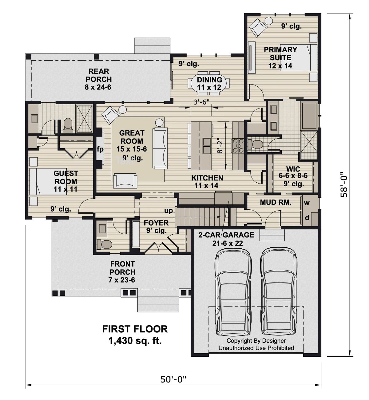
The first floor puts the primary suite in the upper right corner, well separated from the guest room on the opposite side. A central great room with a fireplace connects to the dining area and kitchen. The mud room feeds directly from the garage. Stairs in the foyer suggest a loft above.
Floor Plan

The upper floor holds two bedrooms, a shared bath with WIC, and an open loft connected by a central staircase.
Slate-Blue Double Doors Set the Tone for This Farmhouse Foyer
Painted in a muted slate blue, the double front doors have vertical board detailing and glass panels that frame an autumn view outside. A geometric wire pendant hangs overhead. On the right, a white console table with turned legs sits against the wall, storage baskets tucked underneath. Light wood flooring keeps the entry feeling open and unheavy.
Stone Fireplace and Open-Plan Flow Make This Living Space Work Hard

Gray sofas anchor the seating area around a coffee table with a dark metal frame, while the stone fireplace wall runs floor to ceiling beside a mounted TV. Bar seating along a dark kitchen island keeps the cook in the conversation. Natural light pours in from three windows facing autumn trees.
Designer’s Secret: Positioning bar seating along the kitchen island facing the living room is one of the most practical moves in open-plan design. Guests stay connected to the conversation without crowding the cooking zone. It also keeps sightlines open all the way to the fireplace.
Marble Island, Cage Pendants, and a Kitchen Built for Real Cooking

Three wrought-iron cage pendants anchor the island without competing with the white shaker cabinetry above. The dark base contrasts sharply with the marble-look countertop. Small potted plants break up the surface. Behind the island, a herringbone tile backsplash runs the full width of the range wall.
Try This: Choosing a dark base for a white-topped island adds visual weight without closing off the space. It’s a practical choice, too, since scuffs and everyday wear show far less on a painted dark finish than on white cabinetry at knee height.
Dark Upholstery and Botanical Art Give This Primary Bedroom Real Character

Black is doing a lot of work here. The platform bed’s curved upholstered headboard anchors the room without overwhelming it, and the gray bedding keeps things from feeling heavy. Three framed botanical prints above the bed add a pop of burgundy that’s unexpected against the neutral walls. Recessed lighting handles the overhead work quietly, letting the lamps do the atmosphere.
Editor’s Note: Pairing a dark bed frame with light gray bedding is one of the simplest ways to get contrast without repainting a room. If the walls are already neutral, the bedding becomes the balancing act. It’s an approach that holds up well over time because neither element is trend-dependent.
Marble Surround and a Soaking Tub That Earns Its Square Footage

Carrara-style marble wraps the tub surround and climbs the wall beside the window, tying the two zones together without extra effort. White shaker cabinetry runs the full length of the vanity wall. Dark floating shelves above the tub hold rolled towels and a small plant, keeping things functional.
Why a Drop-In Tub With a Marble Deck Works Better Than a Freestanding One
Freestanding tubs photograph well, but a drop-in with a built-out deck gives you somewhere to set things down, rest your arm, or mount a filler faucet at a practical height. Here, the deck also continues the marble material from the floor, so it reads as part of the architecture rather than furniture dropped into the room. That continuity is harder to pull off with a freestanding silhouette.
Laundry Room Wall Art and Open Shelving Make Chores Feel Less Like Chores

Four framed prints labeled Wash, Dry, Fold, and Iron do the decorating work here without requiring much else on that wall. Floating shelves above hold rolled towels, potted plants, and small containers within easy reach. The dark stone countertop over the side-by-side machines provides folding space that most laundry rooms skip entirely.
Material Matters: Front-load washers sit lower than top-loaders, so adding a countertop above them is straightforward if the machines are a standard height. A dark surface like this one won’t show lint or water marks the way white laminate does. It’s one of those upgrades that pays off every single laundry day.
Recessed Lighting and a Low-Slung TV Console Give This Bonus Room a Clean Finish

Two cream armchairs anchor the seating arrangement without crowding the space. The black coffee table and matching TV console keep the palette grounded. Carpet softens what could otherwise feel like a spare room.
The black coffee table and matching TV console keep the palette grounded.
Pin It

Outside, board-and-batten siding in slate blue sits under a metal roof with a covered front porch wide enough for real furniture. Below, the first-floor plan shows 1,430 square feet with a primary suite, guest room, open kitchen and great room, mudroom, and an attached two-car garage.
