
🔥 Would you like to save this?
Specifications
- Sq. Ft.: 2,386
- Bedrooms: 3
- Bathrooms: 2.5
Floor Plan

In order to come up with the very specific design ideas, we create most designs with the assistance of state-of-the-art AI interior design software. Also, assume links that take you off the site are affiliate links such as links to Amazon. this means we may earn a commission if you buy something.
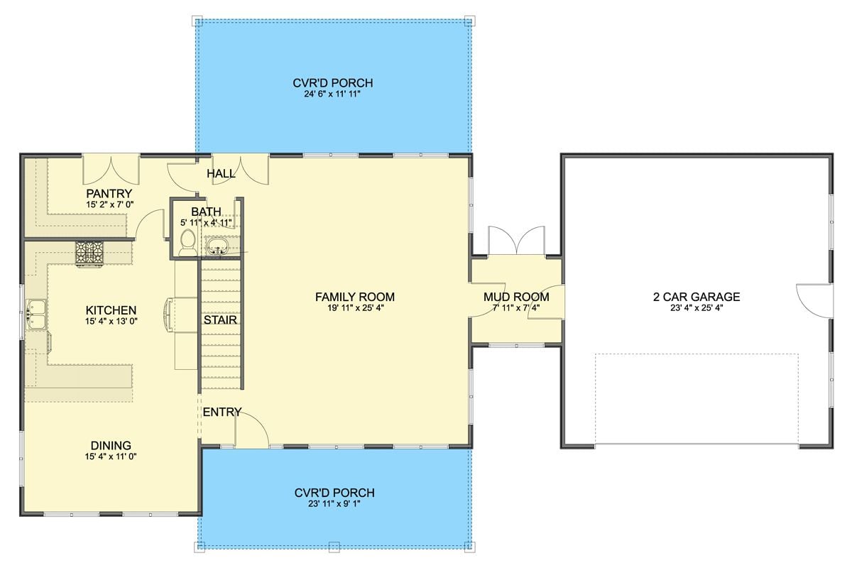
The first floor centers on a large family room that opens toward both a front and rear covered porch. A staircase and a half bath sit tucked between the family room and the kitchen wing, which includes a generous pantry and dining area. The mud room connects the main house to the detached two-car garage.
Floor Plan

Second-floor layout centers on an owner’s suite with a walk-in closet, dedicated bath, and separate shower. Two additional bedrooms share a Jack and Jill bath. A loft sits near the stair landing, and laundry lands close to all three bedrooms. Covered porches wrap front and back.
Covered Patio Living Where Mountain Views Do the Work
White lap siding, dark window frames, and a pergola-covered patio with wood furniture create a backyard built for actual use.
Trend Alert: Black-framed windows paired with white board-and-batten siding have become one of the most requested exterior combinations in new farmhouse construction. Covered outdoor living spaces like this one are increasingly being designed as true extensions of the interior, with ceiling fans, lighting, and furniture scaled for year-round use. Homebuyers are prioritizing functional outdoor rooms over decorative ones.
Paneled TV Wall with Enough Presence to Anchor a Big Room

Grid-paneled millwork in a soft greige gives the media wall structure without competing with the flat-screen mounted at its center. Two striped accent chairs face the sofa at a comfortable conversational angle. Plantation shutters filter afternoon light across a worn Persian-style rug.
Common Mistake: Homeowners often mount TVs too high, assuming eye level while standing is the right target. Seated viewing is what matters, and the center of the screen should align roughly with eye level when you’re sitting on the sofa. Getting this wrong causes neck strain that builds up over years of daily use.
Staircase Corridor That Keeps Kitchen and Living Room Honest

Tucked between the kitchen and living room, this narrow stair hall uses a small clerestory window at the top landing to pull in light. Both flanking spaces stay open and connected without bleeding into each other.
Fun Fact: Staircase width is one of the most overlooked specs in residential design. Building codes typically require a minimum of 36 inches of clear width, but many designers push to 42 or even 48 inches because it dramatically changes how the space feels to move through daily, not just during a furniture delivery.
Step inside and the kitchen makes its case immediately, without trying too hard.
Marble-Look Countertops and Open Shelving Carrying Real Weight Here

Waterfall-edge quartz at the island and floating shelves with actual cookware give this kitchen its farmhouse grounding without the kitsch.
Plantation Shutters and Lavender Sprigs Keeping This Dining Room Grounded

Reclaimed-look tabletop on industrial pipe legs creates an intentional tension with the cross-back chairs. Three potted lavender sprigs center the table without fussing. Recessed lighting and plantation shutters handle natural and artificial light on their own terms.
Pro Tip: Plantation shutters offer a privacy advantage that blinds don’t replicate well. You can angle the louvers to block sightlines from outside while still letting diffused light into the room, which matters more in a dining space than people expect until they’re sitting at the table.
Green Bench, Horse Prints, and a Bedroom That Knows What It Is

Tufted green bench at the foot of the bed earns its keep as a focal point without trying too hard. Plantation shutters on both windows, a dark walnut headboard, and a worn Persian rug underneath keep the palette from reading too cold.
Plantation shutters on both windows, a dark walnut headboard, and a worn Persian rug underneath keep the palette from reading too cold.
Frosted Glass Shower Door and a Walk-In Closet Worth the Square Footage

Black hardware on the towel bar, door handles, and shower frame ties the room together without demanding attention. The walk-in closet beyond gets real natural light from plantation shutters.
Worth Knowing: Frameless and semi-frameless shower doors use a pivot or hinge system that puts more stress on the glass itself, so thickness matters. Most residential installs use tempered glass at least 3/8 inch thick, and going to 1/2 inch noticeably reduces flex and rattling over time. Frosted or reeded glass gives you privacy without sacrificing the sense of openness a clear panel would offer.
Pin It

A rendered exterior shows a two-story white farmhouse with a covered front porch and attached two-car garage. Below it, the first-floor plan lays out a family room, kitchen, dining, pantry, mud room, and two covered porches with labeled dimensions.
