
Would you like to save this?
Specifications
- Sq. Ft.: 1,820
- Bedrooms: 3-5
- Bathrooms: 2.5-3.5
- Stories: 2
- Garage: 2
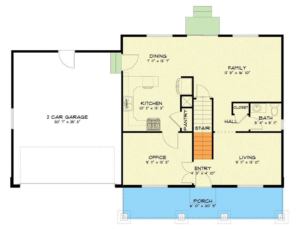
Main Level Floor Plan

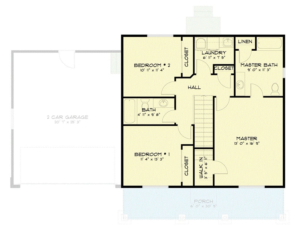
Second Level Floor Plan

๐ฅ Create Your Own Magical Home and Room Makeover
Upload a photo and generate before & after designs instantly.
ZERO designs skills needed. 61,700 happy users!
๐ Try the AI design tool here
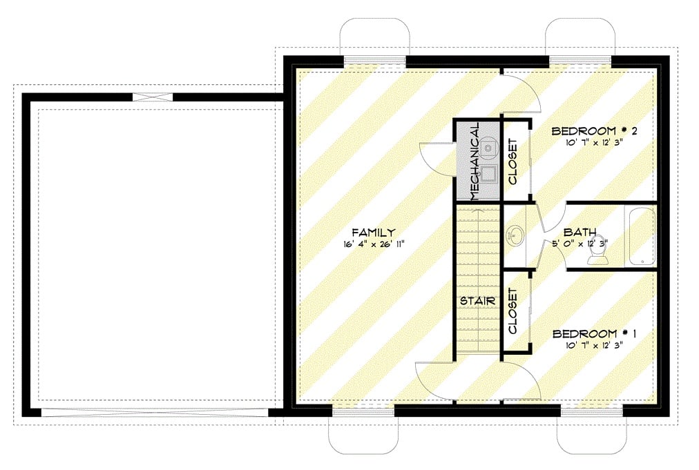
Lower Level Floor Plan

Front-Right View

Rear-Right View

Rear View

Would you like to save this?
Rear-Left View

Front-Left View

Living Room

Living Room

Living Room

Living Room

Dining Room

Dining Room

๐ฅ Create Your Own Magical Home and Room Makeover
Upload a photo and generate before & after designs instantly.
ZERO designs skills needed. 61,700 happy users!
๐ Try the AI design tool here
Family Room

Family Room

Kitchen

Kitchen

Kitchen

Would you like to save this?
Sitting Room

Primary Bedroom

Primary Bedroom

Primary Bedroom

Front Elevation

Right Elevation

Left Elevation

Rear Elevation

Details
This home showcases a traditional craftsman-style exterior with clean lines, stone accents, and a welcoming covered front porch. The attached garage is smoothly integrated, keeping the front elevation balanced and practical.
Inside, the main level offers a clear and functional layout with the kitchen positioned between the dining and family areas for easy everyday flow. A separate living room and a dedicated office provide flexibility for work, relaxation, or hosting, while a pantry and nearby storage support daily routines. The entry connects directly to the main spaces, keeping movement through the home simple and intuitive.
The upper level is arranged around a central hall, with the primary bedroom set apart for added privacy and paired with its own bathroom and walk-in closet. Two additional bedrooms share a full bathroom, and a centrally located laundry room keeps daily tasks close to the bedrooms and out of sight.
The lower level adds valuable living space with a large family room that works well for casual gatherings or recreation. Two additional bedrooms are located on this level along with a Jack and Jill bathroom, creating a flexible setup for guests, older children, or multi-use living arrangements. Mechanical and storage areas are tucked neatly away to keep the space open and functional.
Pin It!

Architectural Designs Plan 61699UT
