
🔥 Would you like to save this?
Specifications
- Sq. Ft.: 1,522
- Bedrooms: 3
- Bathrooms: 2.5
Floor Plan

In order to come up with the very specific design ideas, we create most designs with the assistance of state-of-the-art AI interior design software. Also, assume links that take you off the site are affiliate links such as links to Amazon. this means we may earn a commission if you buy something.
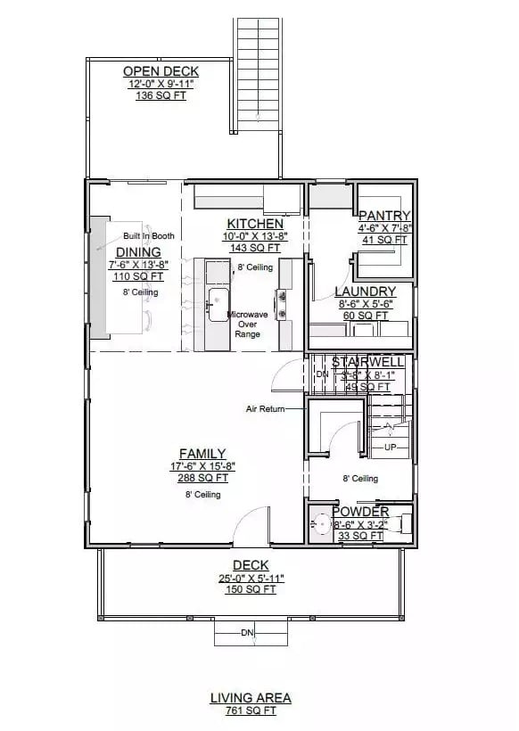
Main level clusters the kitchen, dining, pantry, and laundry toward the back, with a wide family room anchoring the center. A powder room and stairwell sit near the rear deck access.
Floor Plan

The upper level holds three bedrooms and two full baths within 761 square feet. The primary suite sits in the top right corner with its own bath and an optional laundry center nearby. Two secondary bedrooms share a hallway bath. Ceilings throughout measure 8 feet, and a staircase along the right wall connects to the floor below.
Floor Plan
The basement level shows a Family room at 540 sq ft with 9′ ceilings anchoring most of the space. Tucked into the right corner, a Utility room and compact Bath handle practical needs without eating into the living area. Stairs connect up to the main level. Total living area comes in at 810 sq ft.
Worth Knowing: Basements with 9-foot ceilings don’t feel like basements. That extra height keeps the Family room from reading as a buried afterthought, and it opens the door to finishing options that a standard 8-foot pour simply can’t match. On sloped lots, this kind of walkout-ready layout often means one side gets full natural light.
Sloped Lot, Solved: How the Side Elevation Handles a Tricky Grade

Blue-gray lap siding runs the full height of the rear facade, with a walkout basement door sitting flush at grade level, while the main living deck floats well above it. That split gives the house two usable outdoor zones without any retaining wall drama. A screened porch anchors the rear side.
The Psychology Behind This: Seeing two distinct levels on a rear elevation signals square footage even before anyone steps inside. Buyers and guests read vertical height as abundance, and a walkout entry at grade quietly suggests flexibility without requiring an explanation.
Gray Sectional, Warm Wood, and a View That Does the Work

Gray sectional anchors the room on a low-pile rug while rust-toned throw pillows add warmth without fuss. Natural wood floors run wall to wall. Outside, green draws the eye.
Rust-toned throw pillows add warmth without fuss.
Leather, Light, and an Open Plan That Actually Flows

Warm cognac leather sofa anchors the living area while light wood floors carry the eye straight into the kitchen. Black window frames do the visual work without any added decor.
Fun Fact: Open-plan homes like this one place the kitchen island parallel to the living space so sightlines stay clear from the sofa all the way to the back door. That layout also makes it easier to keep an eye on kids or guests while cooking. It’s a functional choice that rarely gets the credit it deserves.
Four-Poster Iron Frame, Gray Linens, and Light That Earns Its Keep

The black iron canopy bed anchors the room without overwhelming it. Hardwood floors, a patterned area rug, and two-tone nightstands keep the palette grounded.
By The Numbers: Four-poster beds have made a strong comeback in modern farmhouse design, and the iron frame version costs considerably less than wood alternatives while holding its shape over time. Pairing it with neutral bedding lets the frame do the visual work without competing finishes pulling attention in different directions. Natural light from black-framed windows pulls the greenery outside into the room without requiring a single extra accessory.
Matte Black Hardware Does a Lot of Heavy Lifting in an All-White Bath

Double undermount sinks sit under a wide-framed mirror, with matte black faucets and cabinet pulls giving the white quartz vanity its only contrast.
Curved Sectional on a Deck That Knows Exactly What It’s Doing

Outdoor sectionals don’t usually wrap into a full horseshoe, but this one does, pulling focus toward a glass-top coffee table at its center. Pink scatter cushions keep it from reading too cold. Off to the left, a stainless steel grill station earns its square footage.
Pin It

An exterior rendering shows a blue farmhouse with dormer windows and a wraparound covered deck. Below it, the first-floor plan lays out a 761-square-foot living area including a family room, open kitchen, dining nook with built-in booth, laundry, pantry, powder room, and two deck spaces.
