
🔥 Would you like to save this?
Specifications
- Sq. Ft.: 2,878
- Bedrooms: 3
- Bathrooms: 2.5
- Stories: 1
- Garage: 3
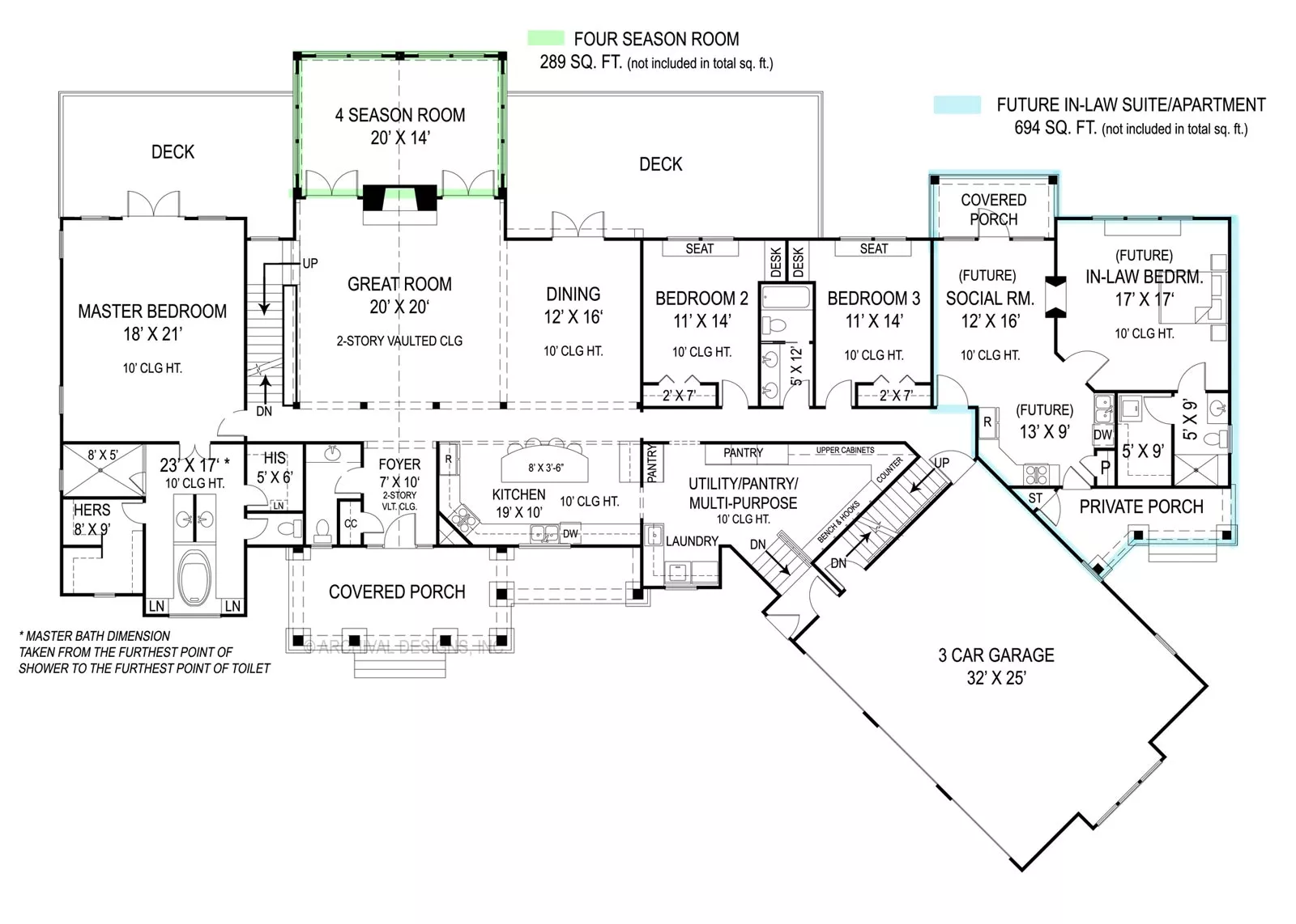
First Level Floor Plan

In order to come up with the very specific design ideas, we create most designs with the assistance of state-of-the-art AI interior design software. Also, assume links that take you off the site are affiliate links such as links to Amazon. this means we may earn a commission if you buy something.
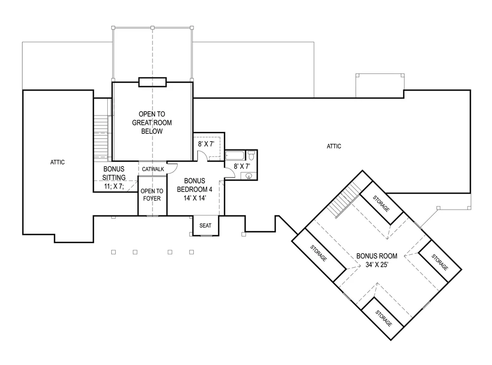
Second Level Floor Plan

Front View
Rear View

Great Room

Kitchen

Kitchen

Primary Bedroom

Front Elevation

Details
Main house features large kitchen with direct access to immense multi-use space for laundry, pantry, and mudroom.
Optional second story provides option to expand as family needs grow.

🔥 Would you like to save this?
Two-Story 3-Bedroom The Millicent Rustic Cottage for a Narrow Lot with Bonus Room (Floor Plan)
Sq. Ft.: 1,872 | Bedrooms: 3 | Bathrooms: 3.5
Explore this 2,264 Sq. Ft. Enchanting 3-Bedroom Cottage with Stone Accents and Cozy Interiors (Don’t Miss This Floor Plan)
Sq. Ft.: 2,264 | Bedrooms: 3 | Bathrooms: 2.5
Discover 1,830 Sq. Ft. of Style in This 3 Bedroom Home with Front Porch – Floor Plan Inside
Sq. Ft.: 1,830 | Bedrooms: 3 | Bathrooms: 2.5
Lewisburg II 3-Bedroom Cottage with Bonus Room and Walkout Basement (Floor Plan)
Sq. Ft.: 1,453 | Bedrooms: 3 | Bathrooms: 3

