
🔥 Would you like to save this?
Specifications
- Sq. Ft.: 3,266
- Bedrooms: 4
- Bathrooms: 3.5
Floor Plan

In order to come up with the very specific design ideas, we create most designs with the assistance of state-of-the-art AI interior design software. Also, assume links that take you off the site are affiliate links such as links to Amazon. this means we may earn a commission if you buy something.
First floor shows main bedroom, open kitchen and dining, family room with fireplace, home office, laundry, and two-car garage.
Floor Plan

The upper level holds three bedrooms, a loft, and a hall connecting shared bathrooms. Walk-in closets serve each bedroom. Bedroom 2 sits below with sloped ceilings on both sides.
Floor Plan
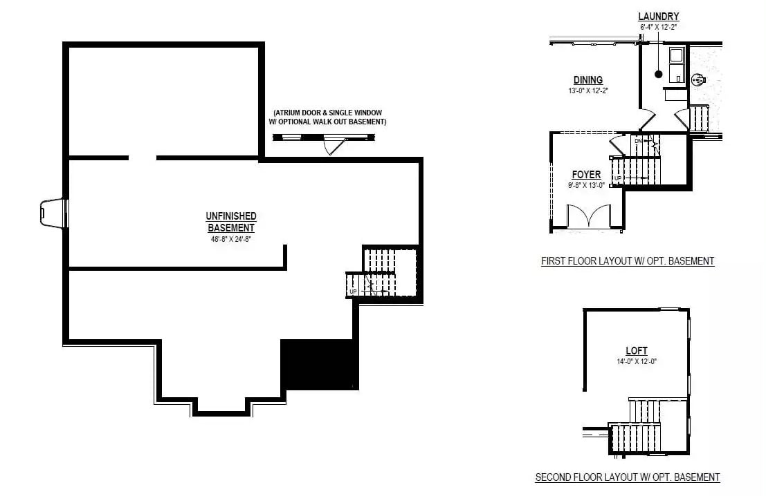
The basement level shows an unfinished 48’8″ x 24’8″ space with an optional walkout. An optional first floor adds dining, laundry, and a foyer. The second floor includes a 14′ x 12′ loft with stair access.
Brick Fireplace Column Anchors an Open-Concept Main Living Space

Gray-painted walls meet wood-look flooring throughout. A floor-to-ceiling brick column houses both a fireplace and a wall-mounted TV. Beyond two doorways, a white kitchen with bar seating and a dining area with large windows pulls natural light deep into the plan.
- Brick column serves double duty as fireplace surround and TV wall
- White trim doorways frame sightlines to the kitchen and dining room
- A staircase with a dark wood newel post sits along the right wall
Brick Fireplace Column Commands Attention in a Gray Living Room

Whitewashed brick rises floor to ceiling, housing an open firebox with active flame and a mounted TV above a dark wood mantel. Gray walls pair with light hardwood flooring. Seating includes a gray sofa with floral pillows, two accent chairs, and a chunky wood coffee table on a white area rug.
Ask Yourself: Would you keep the TV above the fireplace, or reserve that wall space for art or open shelving? Mounting screens above a firebox is popular for saving space, but the viewing angle and heat exposure are worth considering before committing to the placement.
Marble Island and Herringbone Backsplash Define a Farmhouse Kitchen

White shaker cabinets with black hardware line the walls above light hardwood floors. Marble-look countertops run across the island and perimeter. A herringbone tile backsplash adds texture behind stainless steel appliances. Two pendant lights hang over bar seating, while a fireplace anchors the adjacent shiplap wall.
By The Numbers: Kitchen islands with seating on one side account for some of the most requested features in new home construction. A standard bar-height island seat measures 28 to 30 inches tall, suited for counter stools rather than full dining chairs. The black hardware finish on these cabinets has overtaken brushed nickel as the top cabinet hardware choice in farmhouse-style builds.
Dark Ceiling Fan and Corner Windows Shape a Restful Primary Bedroom

Matte black fan, gray walls, wood floors, and sheer curtains frame a bed flanked by matching nightstands.
In The Details: Ceiling fans in bedrooms can reduce perceived temperature by four to eight degrees, making them one of the more practical upgrades in any sleeping space. Pairing a dark metal finish with gray walls keeps the hardware from disappearing into the ceiling while maintaining a cohesive look. Sheer curtains layered without heavy drapes allow natural light to soften the room without sacrificing privacy.
Octagonal Mirrors and Marble Floors Set the Tone in a Primary Bath

Freestanding soaking tubs placed in the center of the room change how a bathroom feels entirely.
Veined marble tile covers the floor and vanity countertop. Black hardware ties the double sinks, faucets, and octagonal mirrors together. A frameless walk-in shower with patterned tile sits at the rear.
Pin It

An exterior rendering of a modern farmhouse sits above two floor plan layouts, including the main first floor and an alternate fireplace placement option.
Did You Know: Offering an alternate fireplace location on a floor plan gives buyers flexibility before construction begins, often saving thousands in post-build modification costs. Relocating a fireplace after framing can require rerouting gas lines, flue chases, and structural supports.
