
🔥 Would you like to save this?
Specifications
- Sq. Ft.: 2,555
- Bedrooms: 3
- Bathrooms: 2.5
Floor Plan

In order to come up with the very specific design ideas, we create most designs with the assistance of state-of-the-art AI interior design software. Also, assume links that take you off the site are affiliate links such as links to Amazon. this means we may earn a commission if you buy something.
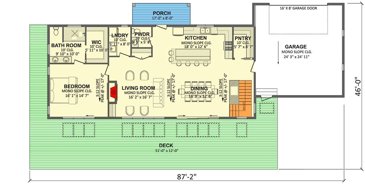
The main floor places a bedroom, full bath, and WIC on the left, opening into a central living room flanked by dining and kitchen. A pantry, laundry, and powder room sit near the porch entry. A double garage connects at the far right.
Floor Plan

Bedroom #2 and Bedroom #3 share a bath near the sauna. A large art studio anchors the center with 9-foot ceilings. Unfinished mechanical space runs along the rear. A patio spans the full front facade.
Dark Board-and-Batten Exterior with Covered Porch and Angled Roofline
Black vertical siding, a sloped metal roof, warm wood porch posts, and recessed lighting define this modern ranch exterior at dusk.
Shed Roof Design
Single-slope shed roofs like this one shed water and snow efficiently, making them practical for mountain climates. The dramatic pitch here rises toward the garage end, giving the facade visual movement without added structural complexity. Metal standing-seam roofing in matte black reinforces the angular geometry while offering long-term durability.
Floor-to-Ceiling Stone Fireplace Anchors a Light-Filled Mountain Living Room

Cream sofas, a patterned wool rug, sheer white curtains, and a stacked stone fireplace define this open, tree-view living space.
Trend Alert: Stacked stone fireplace surrounds are gaining ground in modern mountain homes, replacing drywall finishes with raw, textured material that runs floor to ceiling. Pairing rough stone with pale upholstery and light wood tones keeps the look current rather than rustic. Natural light from oversized windows does the heavy lifting, reducing the need for layered artificial lighting.
Warm Leather Barstools and Dark Stone Counters Ground a White Shaker Kitchen

Six tan leather barstools line a long island topped with dark veined stone. Soft white shaker cabinets pair with brass hardware throughout. Three pendant lights with frosted glass shades hang from a high ceiling. Green glassware and white florals add color at the counter.
Why It Works: Pairing warm-toned metals like brass and rose gold with cool stone countertops creates visual balance without requiring contrasting paint colors. Keeping cabinet finishes consistent across the island and perimeter makes a large kitchen feel intentional rather than pieced together.
Sheer Curtains and Floor-to-Ceiling Glass Blur the Line Between Dining Room and Forest

Oval white dining table seats eight in boucle chairs with dark wood legs. Two cone pendants hang low overhead. Sheer panels filter green tree canopy views through black-framed glass walls on three sides.
Try This: Sheer linen or voile panels work better than blackout curtains in rooms with large windows facing natural scenery. They soften direct light without blocking the view, which keeps the space feeling open even on overcast days. Mount panels close to the ceiling to make window heights read taller.
Light Wood Panel Headboard Wall Brings Warmth to a Neutral Mountain Bedroom

Whitewashed oak panels rise from floor to ceiling behind the bed. Gray linen bedding, white ceramic planters with small trees, and wall-mounted sconces keep the palette grounded and calm.
Ask Yourself: Tall wood panel walls behind the bed serve as both headboard and focal point, removing the need for additional art or decoration. If your bedroom already has strong natural light, keeping the surrounding walls plain white prevents the space from feeling heavy.
Gray Five-Panel Door Connects Walk-In Closet to a Double-Sink Vanity Bath

Warm oak vanity cabinets pair with geometric white tile, brass sconce fixtures, and two framed mirrors. A charcoal door separates the open closet from the bath.
Style Math: Matching your interior door color to your faucet finish is not required. Choosing a dark painted door against light tile creates definition without adding a third material to the space. Gray reads as neutral but carries more visual weight than white, making it useful for grounding a room built around warm wood tones.
Organized Walk-In Closet Pairs Open Shoe Shelving with Double Hanging Rods

Light oak shelving holds pairs of flats, boots, and sneakers across six open cubbies. Hanging rods line both walls with coats and blouses. A Givenchy bag and a Guerlain shopping bag rest on the built-in wood bench below.
Pin It

Rendered exterior shows a single-story modern home with dark board-and-batten siding, large windows, and a rear deck built into a sloped lot. The floor plan below reveals one bedroom, living room, dining area, kitchen with pantry, and an attached two-car garage spanning 87 feet wide.
