
🔥 Would you like to save this?
Specifications
- Sq. Ft.: 4,572
- Bedrooms: 3
- Bathrooms: 3.5
Floor Plan

In order to come up with the very specific design ideas, we create most designs with the assistance of state-of-the-art AI interior design software. Also, assume links that take you off the site are affiliate links such as links to Amazon. this means we may earn a commission if you buy something.
The main floor centers on a two-story family room with a fireplace, open to the kitchen and nook. The primary suite sits privately to the left. A mudroom, laundry, pantry, elevator, and front porch round out the layout.
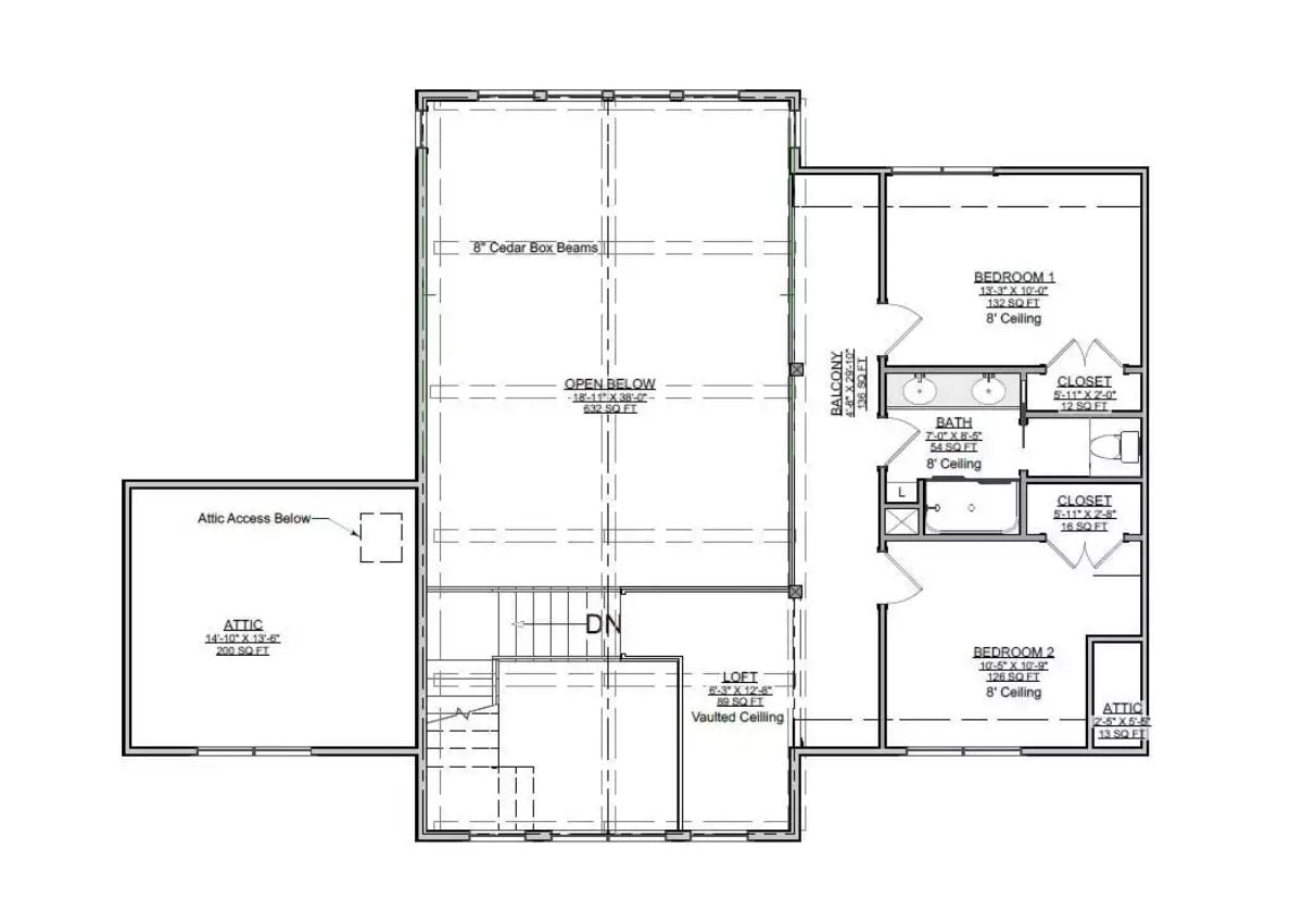
Floor Plan

Upper level shows two bedrooms, shared bath, loft with vaulted ceiling, open-below great room, balcony, and attic storage.
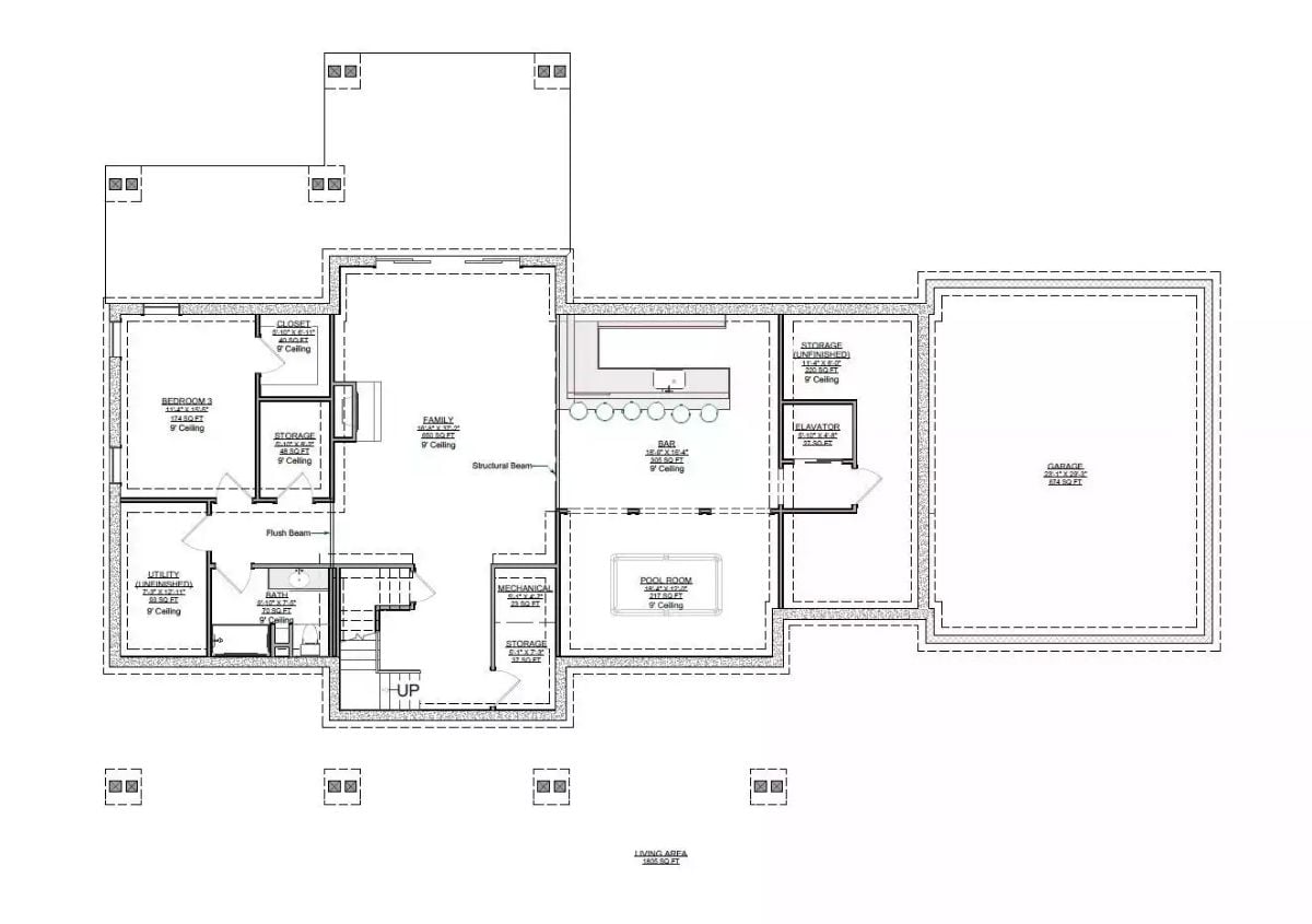
Floor Plan
The basement level reveals a family room, bar area, and pool room at its core. Bedroom 3 sits in the left wing alongside a utility room, bath, closet, and storage. A mechanical room, elevator, and unfinished storage adjoin the main spaces. A large garage occupies the right wing, with stair access leading up.
Warm Wood Railings and White Balusters Frame a Grand Staircase Entry

Dark hardwood treads contrast with white risers while walnut handrails pair with metal balusters; an arched opening reveals a light-filled living room beyond.
Trend Alert: Mixing wood handrails with metal balusters is one of the most popular stair railing combinations in new construction farmhouse builds right now. Designers favor the pairing because wood adds warmth while metal keeps the look open and current. Brushed nickel and matte black finishes are both strong choices, depending on the hardware used elsewhere in the home.
Stone Fireplace Tower and Built-In Shelves Anchor an Open Living Room

Natural fieldstone rises floor to ceiling, flanked by wood built-ins. Gray sectionals frame a patterned rug on wide-plank hardwood floors.
Style Math: Pairing a fieldstone fireplace with warm wood built-ins adds up to a look that feels collected rather than decorated. Stone brings raw texture while wood shelving introduces warmth and function. Together, they do the work of an entire accent wall without a single coat of paint.
Quartz Island and Wood Stools Bring Contrast to a Dark-Cabinet Kitchen

White quartz island seats five on wood stools beneath a bronze pendant. Espresso cabinets, stainless appliances, and marble-look backsplash complete the space.
Color Story: Espresso cabinets paired with white quartz create one of the sharpest two-tone contrasts available in kitchen design today. Gold hardware pulls the warm tones from the wood stools and bronze light fixture into a single cohesive thread. Keeping the walls and ceiling white prevents the dark cabinetry from closing the room in.
Floating Walnut Shelves and Marble-Top Sideboards Define a Formal Dining Room

Walnut floating shelves line both walls above espresso sideboards with marble tops, framing a white dining set beneath a brass chandelier.
Walnut floating shelves line both walls above espresso sideboards with marble tops, framing a white dining set beneath a brass chandelier.
Linen Bedding and Warm Oak Tones Set a Calm Tone in the Primary Suite

Soft beige upholstery wraps the bed frame and headboard. Matching nightstands flank two windows. A bench seat and vintage-style rug anchor the hardwood floor beneath.
Try This: Layering two rugs, one flat-woven and one patterned, under a bed adds depth without requiring extra furniture. Keeping both rugs in the same neutral family prevents the look from feeling busy. It works especially well in large primary suites where a single rug can get lost in the open floor space.
Freestanding Soaking Tub and Mosaic Tile Shower Define a Spa-Style Primary Bath

Oval freestanding tub sits centered beneath a grid of large windows, pulling in views of trees and open lawn. To the right, a frameless glass shower features floor-to-ceiling mosaic tile in charcoal and taupe. Beige floor tile grounds both zones in a cohesive, calm palette.
History Corner: Freestanding soaking tubs became a residential staple after spa culture shifted from luxury hotels into home design during the early 2000s. Cast stone and acrylic versions made the look accessible well beyond high-end custom builds. Today, they appear in roughly one in four new primary bathroom designs across mid-to-upper price ranges.
Beyond the interior rooms, the outdoor living spaces push this design into something worth spending time in.
Stone Pillars and Metal Railings Wrap a Covered Deck Overlooking Wooded Grounds

Gray composite decking, stacked stone pillar bases, and dark metal balusters frame open views of trees and meadow.
Transition: Composite decking now outsells pressure-treated wood on covered decks in many regions. It resists moisture and fading far better, which matters most in spaces that catch both sun and shade throughout the day. Stacked stone bases around structural posts add weight and permanence without requiring masonry skills beyond basic veneer work. Pairing them with powder-coated metal railings keeps maintenance low while holding a clean, finished line against the view.
Pin It

Exterior rendering shows craftsman farmhouse with stone pillars and covered porch; floor plan below reveals primary suite, family room, kitchen, and attached garage.
