
Would you like to save this?
Specifications
- Sq. Ft.: 1,620
- Bedrooms: 3
- Bathrooms: 2
- Stories: 2
- Garage: 1
Main Level Floor Plan

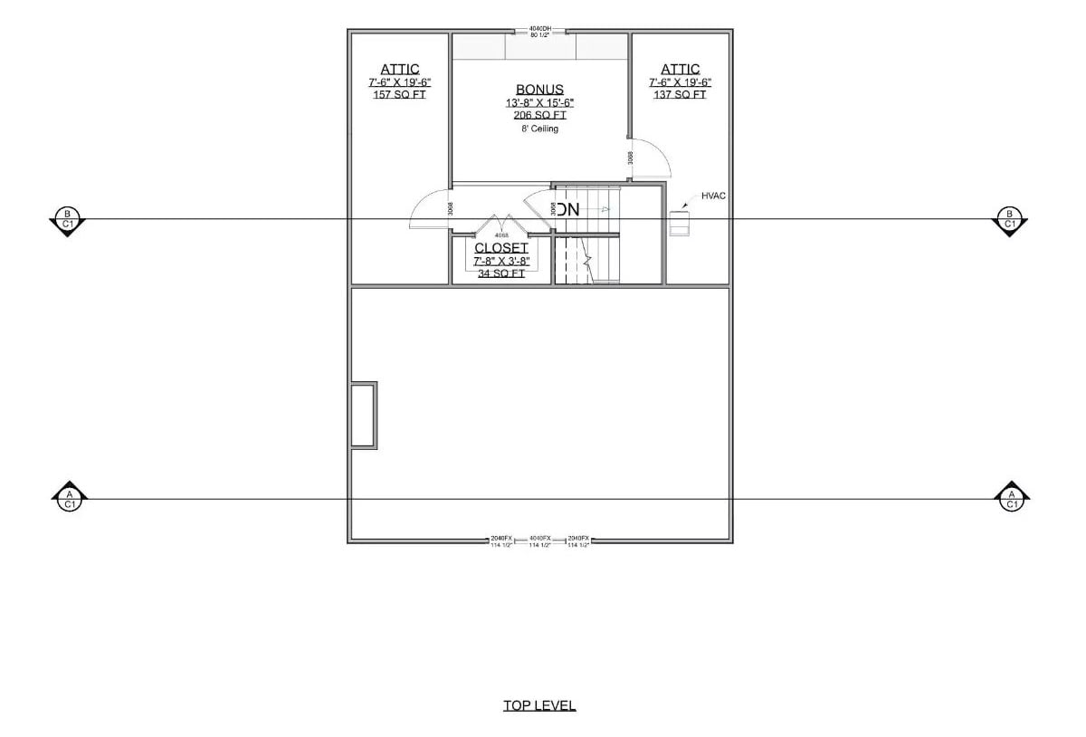
Second Level Floor Plan

๐ฅ Create Your Own Magical Home and Room Makeover
Upload a photo and generate before & after designs instantly.
ZERO designs skills needed. 61,700 happy users!
๐ Try the AI design tool here
Foundation Plan

Front-Left View

Front-Right View

Right View

Would you like to save this?
Rear-Right View

Rear-Left View

Living Room

Kitchen

Primary Bedroom

Primary Bathroom

Primary Bathroom

Bedroom

๐ฅ Create Your Own Magical Home and Room Makeover
Upload a photo and generate before & after designs instantly.
ZERO designs skills needed. 61,700 happy users!
๐ Try the AI design tool here
Details
This barndominium-style home features a bold, modern exterior with dark vertical siding, clean rooflines, and a centered covered entry that gives the faรงade a strong, balanced presence. Large windows and a simple porch design keep the look streamlined and functional.
Inside, the main level is organized around an open living area with vaulted ceilings that connect the kitchen, dining, and living spaces in a comfortable, easy flow. The kitchen sits at the center with ample workspace and a walk-in pantry, while the dining area opens directly to the front porch for added flexibility.
The primary suite is privately placed and includes a dedicated bathroom and walk-in closet, separated from the secondary bedrooms for added comfort. Two additional bedrooms are located on the opposite side of the home near a shared bathroom, creating a practical layout for family or guests.
Storage areas, a mudroom, and laundry space are positioned to support everyday routines without disrupting the main living areas. The garage and attached storage provide room for vehicles and equipment while keeping direct access to the interior.
The upper level adds a bonus room that works well as a flexible living or hobby space, along with attic storage on both sides. This level keeps additional space tucked away while remaining easily accessible from the main floor below.
Pin It!

The House Designers Plan THD-11929
