
🔥 Would you like to save this?
Specifications
- Sq. Ft.: 1,224
- Bedrooms: 2
- Bathrooms: 1
Floor Plan

In order to come up with the very specific design ideas, we create most designs with the assistance of state-of-the-art AI interior design software. Also, assume links that take you off the site are affiliate links such as links to Amazon. this means we may earn a commission if you buy something.
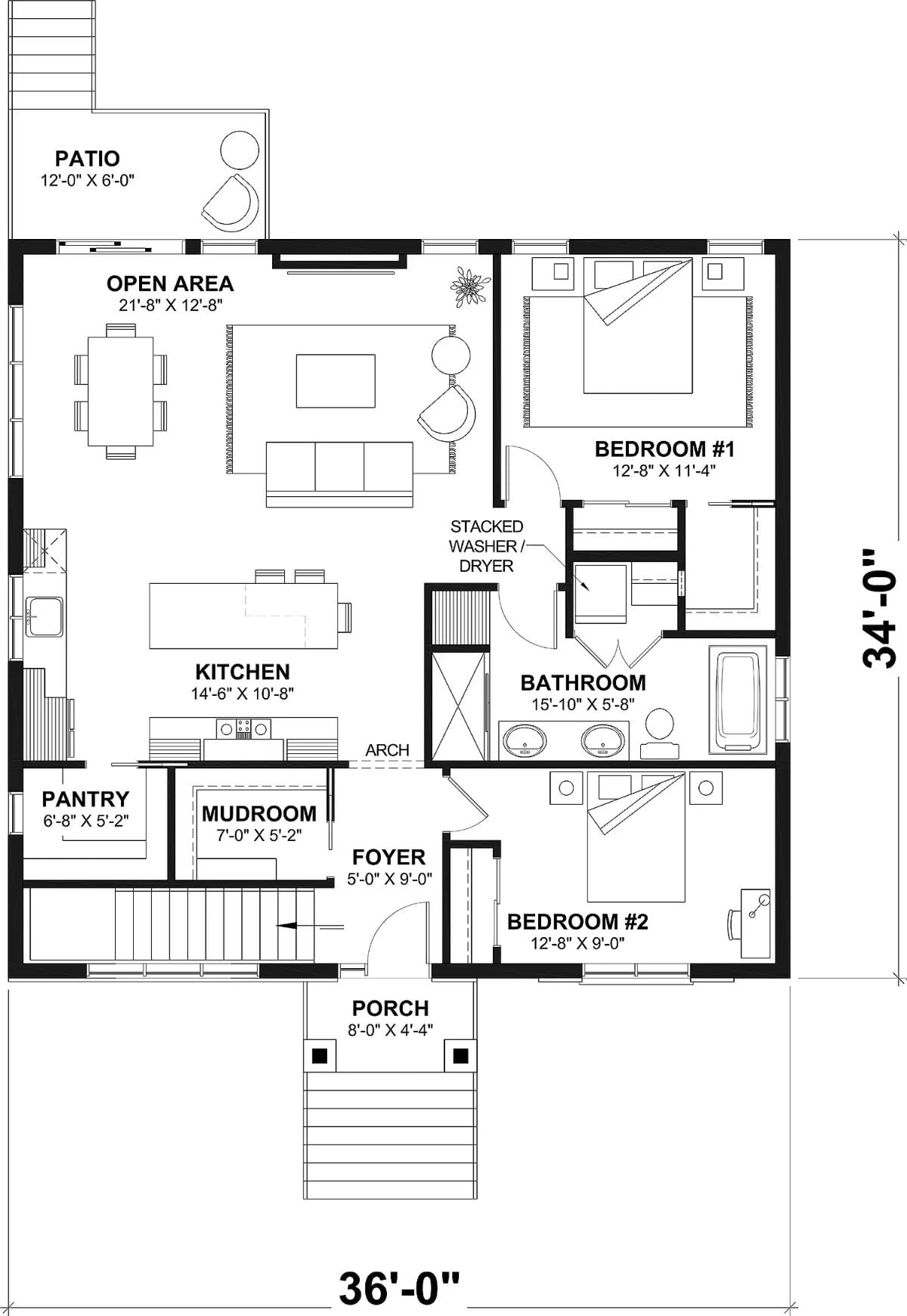
This single-story ranch layout offers two bedrooms and one bathroom within a compact 34-foot width. The open area combines living and dining spaces with direct patio access. A dedicated mudroom connects to the pantry and kitchen. The foyer provides central access to both bedrooms, while stacked washer-dryer units sit conveniently near the bathroom.
White Entry Hall with Arched Doorway and Natural Light

White walls frame the entry hall where natural light pours through unseen windows. An arched doorway leads to interior spaces with warm wood flooring. A round jute rug anchors the tiled floor. A brass sconce and floating wood shelf add warmth against the crisp walls.
Open-Concept Living and Dining Area with Exposed Beam Ceiling
Natural light floods the space through floor-to-ceiling windows dressed in white curtains. Dark wood ceiling beams run parallel overhead, contrasting with pale walls. A wooden dining table with white upholstered chairs sits beneath a bronze pendant light. The cream sofa faces a wall-mounted TV, with layered area rugs defining the seating zone. Wood flooring extends throughout both spaces.
Did You Know: Exposed ceiling beams in modern homes are often purely decorative, crafted from lightweight materials or box beams rather than structural timber. In ranch-style designs, they reference agricultural building traditions while adding visual rhythm to flat ceilings.
Open Living Space with Plaid Accents and Modern Farmhouse Finishes

Gray sofa with green and plaid pillows anchors the foreground. White shaker cabinets line the kitchen. Dark wood beams cross overhead. Lantern sconces flank windows.
Serene Bedroom with Exposed Wood Beams and Neutral Linens

Cream-colored walls create a calming backdrop for the upholstered bed dressed in white and taupe bedding. Exposed wooden beams stretch across the ceiling, adding architectural interest. A landscape painting hangs above the headboard. The wooden bench at the foot of the bed matches the round nightstand. Taupe curtains frame two windows, allowing soft daylight to filter through.
Spa-Inspired Primary Bath with Freestanding Tub and Vessel Sinks

A freestanding soaking tub sits beneath a window dressed in taupe curtains and sheer panels. Dual vessel sinks rest on granite countertops atop a wood vanity with black hardware. Sage greenery in a bronze vase adds organic warmth. Board and batten wainscoting lines the walls.
Laundry and Bath Suite with Stacked Washers and Freestanding Soaking Tub

Stacked front-load washers sit behind an open door, while dark shelving, white wainscoting, and black fixtures frame the freestanding tub.
Pin It

The exterior rendering captures the ranch home’s stone and siding facade with prominent front porch and dormer details. Below, the floor plan reveals a 36-foot-wide layout with two bedrooms, a mudroom, a pantry, and an open living area flowing to a rear patio.
🔥 Would you like to save this?
Modern Farmhouse-Style Ranch with 2 Bedrooms and Open-Concept Living (Floor Plan)
Sq. Ft.: 2,651 | Bedrooms: 2 | Bathrooms: 2.5
Discover This 1,182 Sq. Ft. 2 Bedroom Mountain Home – Must See Floor Plan Inside
Sq. Ft.: 1,182 | Bedrooms: 2 | Bathrooms: 2.5
Get Inspired by This 2,136 Sq. Ft. Cabin With 2 Bedrooms and Mountain Views – Floor Plan Inside
Sq. Ft.: 2,136 | Bedrooms: 2 | Bathrooms: 2.5
2-Bedroom Single-Story Mid-Century Modern Home with Open Concept Living (Floor Plan)
Sq. Ft.: 2,059 Bedrooms: 2 Bathrooms: 2
Ranch-Style 4-Bedroom Home for a Corner Lot with Expansive Front Porch and Covered Patio (Floor Plan)
Sq. Ft.: 2,862 | Bedrooms: 2 | Bathrooms: 2.5
