
🔥 Would you like to save this?
Specifications
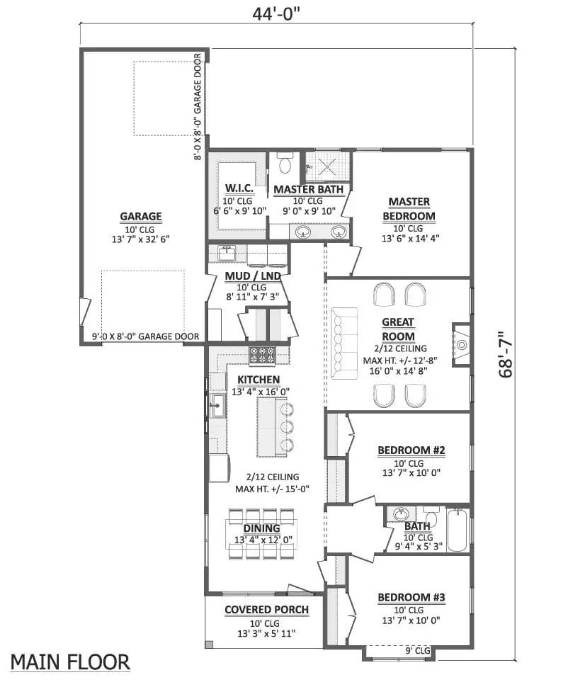
- Sq. Ft.: 1,611
- Bedrooms: 3
- Bathrooms: 2
Floor Plan

In order to come up with the very specific design ideas, we create most designs with the assistance of state-of-the-art AI interior design software. Also, assume links that take you off the site are affiliate links such as links to Amazon. this means we may earn a commission if you buy something.
This main floor plan shows a functional layout with three bedrooms clustered along the right side. The master suite includes a private bath and walk-in closet. A large great room with vaulted ceilings connects to the kitchen and dining area. The garage features a convenient mud room and laundry entry. A covered porch welcomes visitors at the front entrance.
Symmetrical Living Room with White Brick Fireplace and Modern Lighting

Beige upholstered chairs flank a marble-topped coffee table on light wood legs. White painted brick surrounds the fireplace and extends upward to frame the mounted television. Exposed wood beams cross the ceiling. Black-framed windows reveal greenery outside. A sculptural light fixture adds visual interest overhead.
Open Kitchen with Light Wood Island Seating and White Shaker Cabinetry
Light wood barstools line a white island beneath pendant lights, while large black-framed windows overlook greenery outside.
Dining Area with Sculptural LED Pendant and Neutral Upholstered Chairs

Six blush-toned dining chairs surround a white table beneath a curved LED fixture overlooking the green lawn outside.
History Corner: The flowing ribbon chandelier design became popular in the 2010s as LED technology allowed designers to bend light fixtures into organic shapes that were impossible with traditional bulbs.
Primary Bedroom with Exposed Wood Beams and Tufted Upholstered Headboard

Cream-toned walls create a serene backdrop for the tufted headboard positioned between two black-framed windows. Exposed ceiling beams add architectural interest above crisp white bedding. Matching nightstands anchor each side beneath column-style table lamps, while a geometric rug grounds the space.
Dual Vanity Bathroom with Herringbone Tile and Rounded Brass Mirrors

Two vessel sinks rest on a floating wood-grain vanity beneath wall-mounted faucets. The herringbone-patterned tile wall provides textured visual interest behind brass-framed mirrors with rounded corners. A tall storage cabinet stands adjacent to the vanity, sharing the same wood finish. Gray marble flooring with white veining completes the space.
Pin It

A contemporary single-story home features sleek horizontal siding with a dynamic sloped roofline and covered entry porch beneath landscaped greenery. The floor plan reveals an efficient 1,500-square-foot layout with three bedrooms, two full baths, a walk-in closet, mudroom, and attached single-car garage positioned along the front corner of the design.
🔥 Would you like to save this?
Narrow Northwest Contemporary Home with 3 Bedrooms and Open-Concept Living (Floor Plan)
Sq. Ft.: 1,120 | Bedrooms: 3 | Bathrooms: 2
Tour This 1,896 Sq. Ft. 3 Bedroom Home Featuring a Bold Stone Chimney (Floor Plan Included)
Sq. Ft.: 1,896 | Bedrooms: 3 | Bathrooms: 2
3-Bedroom Contemporary Mountain Home with Wraparound Porch and Multiple Lofts (Floor Plan)
Sq. Ft.: 2,655 | Bedrooms: 3 | Bathrooms: 3.5
Spring Hill 3-Bedroom Mountain Contemporary Home with Open-Concept Living and Walkout Basement (Floor Plan)
Sq. Ft.: 2,115 | Bedrooms: 3 | Bathrooms: 3.5

