Table of Contents
Show

Would you like to save this?
Specifications
Sq. Ft.: 1,928
Bedrooms: 3
Bathrooms: 2
Stories: 2
Garage: –
First Level Floor Plan

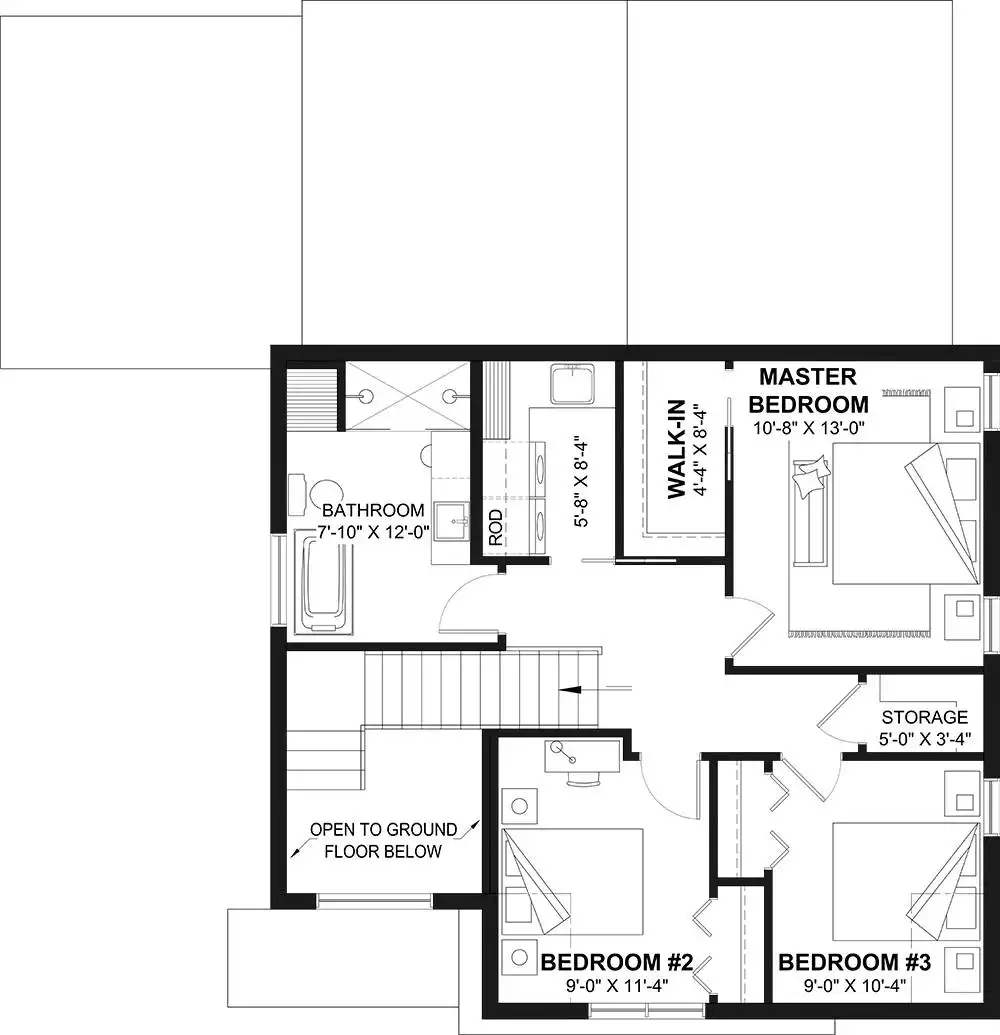
Second Level Floor Plan

🔥 Create Your Own Magical Home and Room Makeover
Upload a photo and generate before & after designs instantly.
ZERO designs skills needed. 61,700 happy users!
👉 Try the AI design tool here
Foyer

Living Room

Dining Room

Dining Room and Kitchen

Would you like to save this?
Kitchen

Kitchen

Primary Bathroom

Details
Goderick Grove is a beautiful Contemporary home offering 1,928 square feet of stylish living space with three bedrooms, two full bathrooms, and a striking exterior finished in crisp white siding with stone accents.
Elegant double doors open into a dramatic 18-foot-6-inch foyer that leads to a bright open-concept living area highlighted by a soaring 14-foot-4-inch ceiling for an airy, welcoming feel.
The main floor is thoughtfully designed with a gourmet kitchen featuring a butler walk-in pantry that flows seamlessly into the dining and living spaces, making both everyday life and entertaining effortless.
Upstairs, the private primary suite creates a peaceful retreat with its own full bath, while two additional bedrooms offer comfortable space for family or guests.
A versatile playroom adds dedicated space for recreation, and a finished bonus room provides flexible use as a home office, media room, or hobby space. Outdoor living is enhanced by a charming 189 square feet covered patio that extends the living space and invites quiet mornings or relaxing evenings.
Pin It!

The House Designers Plan 10687
