
🔥 Would you like to save this?
Specifications
- Sq. Ft.: 2,354
- Bedrooms: 3
- Bathrooms: 2.5
Floor Plan

In order to come up with the very specific design ideas, we create most designs with the assistance of state-of-the-art AI interior design software. Also, assume links that take you off the site are affiliate links such as links to Amazon. this means we may earn a commission if you buy something.
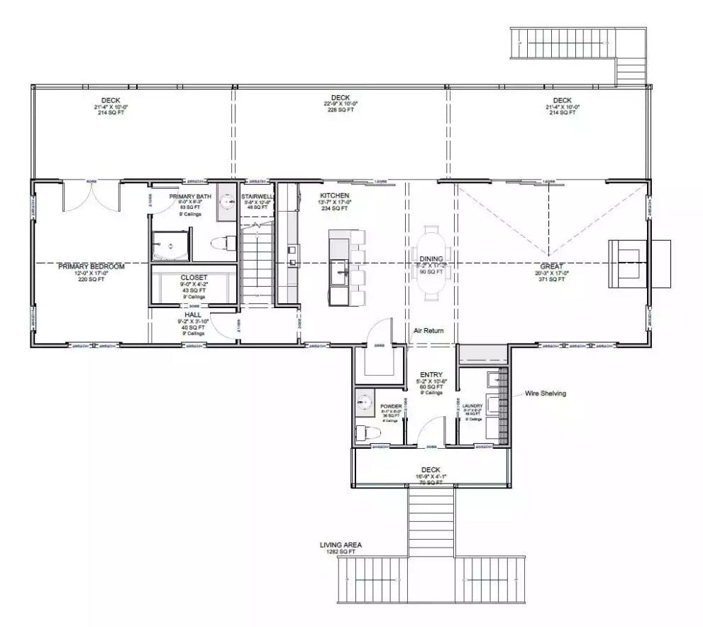
The main level centers on an open kitchen, dining, and great room spanning the right side. A primary bedroom suite with bath and closet anchors the left wing. Entry, powder room, and laundry occupy the front center. Three deck sections wrap the rear, totaling significant outdoor square footage.
Floor Plan

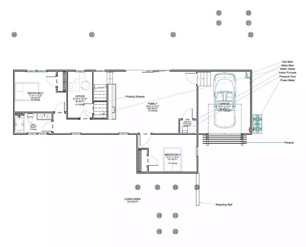
Layout spans 1,072 square feet of living area across three bedrooms, an office, and a family room with floating shelves. Bedroom 3 sits at the front, while Bedroom 2 and a bath anchor the left wing. A utility room connects to the attached garage.
Floor Plan
Foundation-level drawing shows a crawl space spanning 1,124 square feet and a 277-square-foot garage. An LVL structural beam divides zones, with floor joists running horizontally across the main structure.
WOW! 👇
Craftsman Timber Framing Meets Dark Exterior Cladding on This Walkout Design

Dark board-and-batten siding pairs with wood timber trusses, stone column bases, cable rail deck, and sliding glass doors at grade level.
- Exposed wood knee braces anchor the roofline at each gable end
- Stacked stone wraps the lower-level piers and foundation walls
- Cable wire railings run the full length of the upper deck
Vaulted Wood Ceiling and Stone Fireplace Define This Open Great Room

Shiplap wood ceiling, stacked stone fireplace, built-in wood benches, light hardwood floors, black-framed windows, and sliding glass doors to exterior deck.
Why It Works: Ceiling fans installed in vaulted great rooms help push warm air down in winter, making them functional rather than purely decorative. Pairing a wood ceiling with white walls keeps the space from feeling heavy. Built-in bench seating flanking the fireplace adds storage and seating without pulling furniture into the sightlines.
Herringbone Wood Range Hood Anchors a White Kitchen with Exposed Brick

White shaker cabinets pair with dark countertops, a herringbone wood hood, exposed brick backsplash, stainless steel appliances, and light hardwood floors.
The Psychology Behind This: White kitchens are psychologically linked to feelings of cleanliness and mental clarity, which may explain why they remain so persistently popular in home design. Introducing raw materials like brick and natural wood counters that promote sterility, signaling warmth and handcrafted permanence to the brain simultaneously.
Vaulted Cathedral Ceiling with Exposed Beams Opens This Empty Primary Suite

Scissor-truss beams in warm oak tones arc over light hardwood floors, with dark slate tile visible inside an en suite bathroom doorway.
History Corner: Exposed ceiling beams became a defining feature of Craftsman architecture in the early 1900s, influenced by the Arts and Crafts movement’s rejection of industrial mass production. Builders used visible structural timber as a way to celebrate honest construction rather than hide it behind plaster. That tradition carried forward into modern farmhouse and cottage design, where decorative beams now replicate the same visual warmth without always serving a load-bearing function.
Moving into the bathrooms, the same attention to material contrast carries through with equal confidence.
Mosaic Pebble Tile and Marble Surround Share Space in This Walk-In Shower

Pebble mosaic tile covers the shower floor and accent wall in shades of charcoal and white. Large-format marble-look tile lines the surround. Outside the frameless glass enclosure, white shaker cabinetry pairs with granite countertops and matte black hardware throughout.
Transition: Pebble tile dates back thousands of years as a flooring material, but modern versions are mounted on mesh backing for faster installation. Choosing a pebble mosaic for a shower floor also provides natural slip resistance, making it a practical choice that does not sacrifice visual interest.
This happens fast 👇
Whirlpool Top-Load Washer and Dryer Pair a Wall-Mounted Utility Sink

Top-load machines are making a quiet comeback, favored for easier loading and gentler fabric handling.
Matching Whirlpool units sit beside a wall-mounted utility sink with chrome faucet. Wire shelving above maximizes vertical storage in this compact laundry room.
Reclaimed Wood Accent Wall Anchors an Open Living Space with Sliding Glass Access

Horizontal planks of reclaimed wood cover a full accent wall, paired with floating wood shelves and dark cabinetry below a sink. Light hardwood floors run throughout. Sliding glass doors open to an outdoor deck with tree views beyond.
Worth Knowing: Reclaimed wood used on accent walls often comes from demolished barns, factories, or old-growth timber salvaged during building teardowns. Because the wood has already dried and aged over decades, it tends to be more dimensionally stable than new lumber and resists warping better over time.
Pin It

Exterior photo shows dark board-and-batten siding with timber framing above; floor plan below details open-concept main level with three decks.
Style Math: Board-and-batten siding pairs vertical wood strips over flat boards, a technique originally used in rural barns to shed water. Craftsman homes borrowed that utilitarian honesty and turned it into a design signature. Combining it with timber gable accents, as seen here, layers two distinct construction traditions into one cohesive exterior.
