
🔥 Would you like to save this?
Specifications
- Sq. Ft.: 1,555
- Bedrooms: 3
- Bathrooms: 2.5
Floor Plan

In order to come up with the very specific design ideas, we create most designs with the assistance of state-of-the-art AI interior design software. Also, assume links that take you off the site are affiliate links such as links to Amazon. this means we may earn a commission if you buy something.
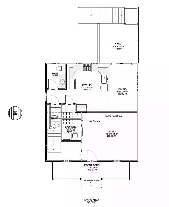
Main level includes kitchen, dining, living room, powder bath, laundry, stairwell, front porch, and rear deck totaling 787 square feet.
Floor Plan

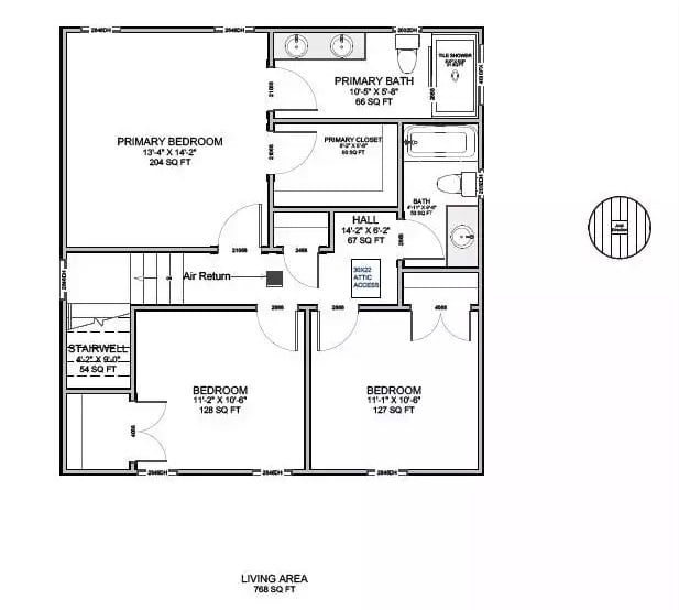
The upper level shows three bedrooms and two bathrooms within 768 square feet. The primary bedroom at 204 square feet connects to a private bath and walk-in closet. A central hall links the two smaller bedrooms and a shared bath. The stairwell sits near an air return, keeping traffic flow practical and direct.
Floor Plan
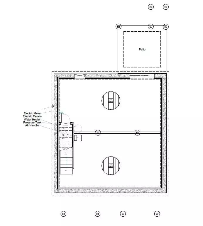
The basement level shows two large circular support columns, a staircase, and a utility cluster including electric panels, a water heater, a pressure tank, and an air handler. A patio extends off the upper side.
WOW! 👇
White Board-and-Batten Exterior with Covered Deck and Ceiling Fan

Vertical white board-and-batten siding wraps three stories with natural wood stair railings leading to a covered upper deck. A ceiling fan sits above the deck. French doors open at ground level onto a concrete patio bordered by low shrubs and lush green lawn.
Quick Fix: Adding exterior lighting along the stair stringers creates safer nighttime navigation and draws attention to the wood framing after dark. Low-voltage step lights are an affordable option that installs without an electrician on most deck builds.
Live-Edge Barn Door Opens Into an Open-Concept Kitchen and Dining Space

Natural wood barn door, light oak floors, exposed beam portal, brick backsplash, and pendant lighting define this open layout.
Common Mistake: Hanging a live-edge barn door on a standard black sliding track sounds straightforward, but the irregular slab edge means the door rarely seals flush against the wall stop. Builders should account for the natural contour when positioning the track height to avoid gaps that let sound and light pass through freely.
Brick Accent Walls and Floating Wood Shelves Ground a Modern Craftsman Kitchen

White quartz island with undermount sink, brass faucet, dark base cabinets, globe pendants, and exposed brick walls with natural wood floating shelves.
Editor’s Note: Floating shelves mounted directly into brick require masonry anchors rather than standard drywall hardware. Getting the depth right matters too — shelves shallower than 10 inches tend to feel decorative rather than functional in a working kitchen. Pairing raw wood with brick keeps the look grounded without relying on additional ornamentation.
Vaulted Shiplap Walls and Exposed Beam Define a Spacious Primary Bedroom

Shiplap walls painted crisp white run the full length of the room, while a wood ceiling beam anchors a five-blade ceiling fan overhead. Light hardwood floors reflect sunlight from two large windows. Open doors reveal an ensuite bathroom with a wood vanity and a walk-in closet.
- Beam-mounted ceiling fans need a fan-rated brace box, not a standard light fixture box, to handle the added torque and weight.
- Shiplap painted the same color as drywall trim creates a cohesive look without requiring transition molding at corners.
- Pairing warm wood floors with cool white walls keeps a room feeling bright without relying on overhead lighting alone.
Bold Green Subway Tile Turns a Walk-In Shower Into the Focal Point

Glossy green subway tile covers every shower wall, paired with black hardware, light wood cabinetry, and a white marble double vanity top.
Color Story: Deep forest green reads as a neutral when balanced against crisp white walls and warm wood tones. Choosing a single saturated color for one surface, rather than mixing several, keeps the palette from feeling busy. Grout color matters here too — a matching dark grout line lets the tile read as a solid block of color rather than a grid.
Look at this 👇
Covered Deck Floats Above the Trees with Open Railings and a Ceiling Fan

Cedar-toned deck boards run horizontally beneath a white tongue-and-groove ceiling. A matte black ceiling fan with a cage light hangs at the center. Light wood balusters line the open railing on two sides, framing an unobstructed view into a dense stand of hardwood trees.
Worth Knowing: Outdoor ceiling fans rated for damp or wet locations carry a UL listing that standard indoor fans lack. Skipping that rating in a covered but open-air space can void the warranty and create a fire hazard over time. Look for the damp-rated label at minimum, wet-rated if rain ever blows directly onto the fan.
Pin It

Exterior photo shows board-and-batten siding with wood shutters; floor plan details kitchen, dining, living, laundry, and deck.
