
🔥 Would you like to save this?
Specifications
- Sq. Ft.: 884
- Bedrooms: 2
- Bathrooms: 1
Floor Plan

In order to come up with the very specific design ideas, we create most designs with the assistance of state-of-the-art AI interior design software. Also, assume links that take you off the site are affiliate links such as links to Amazon. this means we may earn a commission if you buy something.
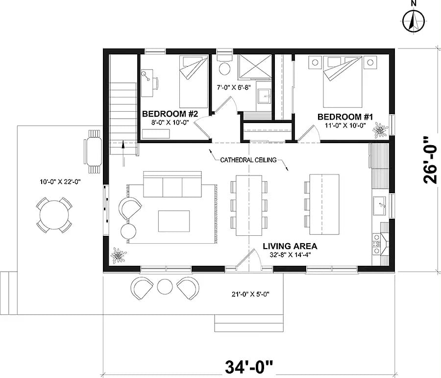
A 34×26-foot layout with two bedrooms sharing a central bath up top and an open-concept living area below. The cathedral ceiling spans the main space. A covered porch fronts the entry, and a side deck adds outdoor room.
Floor Plan

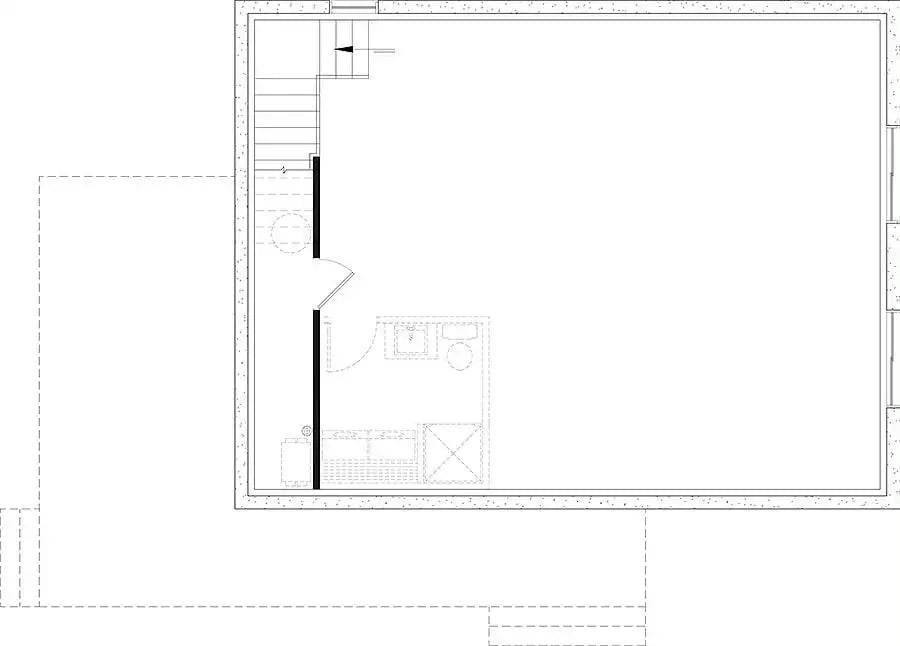
Second-floor layout features a staircase landing, full bathroom with tub and shower, and one defined bedroom. The right side opens into unfinished or future living space.
In The Details: The bathroom clusters the tub, toilet, and shower into a compact footprint without feeling cramped, which is smart planning for a vacation property where square footage is precious. Positioning the staircase near the exterior wall keeps the interior flow clear. That open right half reads as either an unfinished bonus room or a future bedroom waiting on a partition wall.
Warm Wood Decking and White Board-and-Batten Give This Cottage Real Curb Appeal
Exposed timber brackets under the gable peak do a lot of work here, grounding the white board-and-batten exterior with something that feels handcrafted rather than manufactured. Stone veneer wraps the base. Outdoor seating on both deck sections suggests the porch is genuinely livable, not decorative.
Why the Gooseneck Barn Lights Work So Well Here
Three black gooseneck barn lights mounted at consistent heights across the facade tie the exterior together without competing with the architecture. They’re utilitarian fixtures, but their industrial roots pair naturally with the board-and-batten cladding. At dusk, the warm spill of light they cast makes the porch feel genuinely welcoming rather than staged.
Van Gogh on the Wall and Shiplap on the Ceiling Set the Tone Here

Vaulted shiplap ceiling with exposed beams carries the eye straight from the living room into the kitchen. Pendant lanterns in black iron mark the dining zone without a wall dividing it. That Van Gogh wheat field print does real work anchoring the console behind the sofa.
Common Mistake: Pendant lights hung over a dining table look great in renderings but cause problems if they’re positioned for aesthetics rather than function. Hang them so the bottom of the fixture sits roughly 30 to 36 inches above the tabletop, or guests will be ducking around them all evening.
Step inside and the living room makes a strong first impression before you’ve even sat down.
Van Gogh Print and Shiplap Ceiling Work Harder Than Most Decor Choices

Sunlight cuts across the beige sofa in sharp diagonal strips, doing more decorating than any throw pillow could. Shiplap runs the full ceiling length, keeping the room grounded without feeling rustic. Wall sconces flank the Van Gogh print at the right height. That round coffee table earns its place.
Warm-Toned Wood and White Cabinets Pull the Kitchen and Dining Room Together

Natural wood grain on the dining table carries right into the island base, tying both spaces together without any decorator tricks. Boucle barstools add texture against the dark wood. Shiplap ceiling, subway tile backsplash, brass fixtures.
Style Tip: Wood furniture and white cabinetry is one of the most forgiving combinations you can use in an open-concept space because neither finish fights the other as light shifts throughout the day. If you’re choosing a dining table, opt for a live-edge or grain-forward top rather than a painted or lacquered one so it holds its own against the kitchen’s hard surfaces.
Lantern Pendants and Boucle Barstools Do a Lot of the Design Work Here

Those black cage pendants are hung low enough to actually light the island, not just decorate the ceiling. Boucle barstools with wood legs keep the look warm without competing with the stainless fridge.
Pin It

Exterior rendering shows a white board-and-batten cottage with a covered front deck, while the floor plan below maps two bedrooms, a shared bath, and a wide open-concept living area across a 34-by-26-foot footprint.
