
🔥 Would you like to save this?
Specifications
- Sq. Ft.: 3,668
- Bedrooms: 4
- Bathrooms: 4
Floor Plan

In order to come up with the very specific design ideas, we create most designs with the assistance of state-of-the-art AI interior design software. Also, assume links that take you off the site are affiliate links such as links to Amazon. this means we may earn a commission if you buy something.
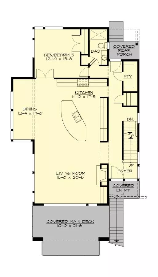
This main level features an open concept living room, kitchen, and dining area that flow together. A den or fifth bedroom sits near the entry with an adjacent full bathroom. The kitchen includes an island and connects to a covered rear porch. A foyer with stairs leads to upper levels, while a covered main deck extends the outdoor living space. The covered entry provides shelter at the front door.
Floor Plan

Upper level features three bedrooms with the master suite positioned at the bottom. A loft occupies the central space alongside a hall connecting all rooms. Two full bathrooms serve the floor, with the master bath including double sinks. The laundry room sits conveniently near bedroom two. A covered upper deck extends from the master bedroom, and an air conditioning unit is centrally located.
Floor Plan
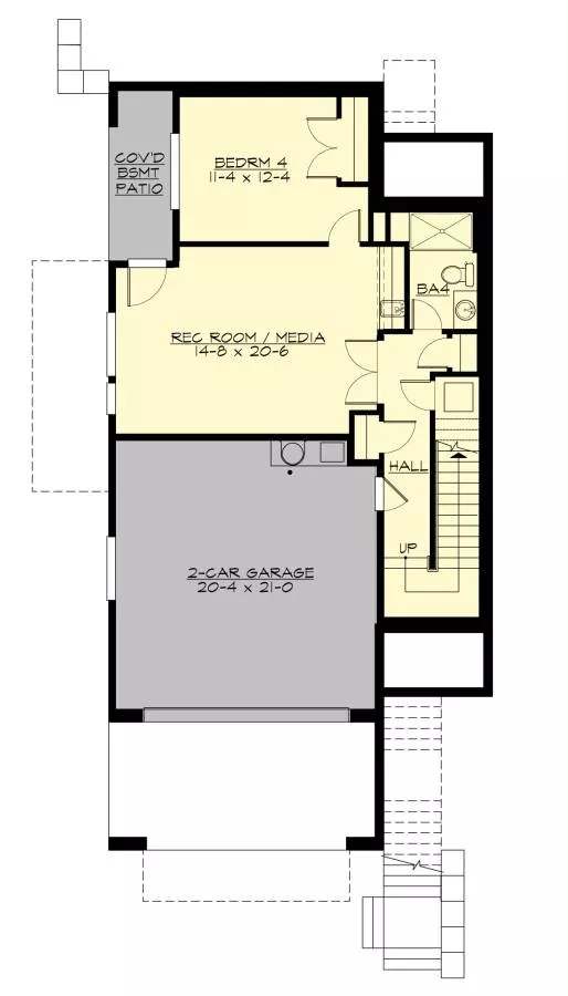
Lower level showcases a spacious two-car garage alongside a recreation room and bedroom four. A covered patio extends outdoor living space. Stairs connect to upper floors.
Open Living Room with Linear Fireplace and Floor-to-Ceiling Glass Doors

Gray tile surrounds a contemporary linear fireplace built into a horizontal wood-grain accent wall. White cabinetry anchors one side while expansive glass doors frame views of greenery beyond. Dark hardwood floors contrast with white walls and ceiling. A light gray sofa sits on a geometric area rug, positioned to enjoy both the fireplace and outdoor access through the sliding doors.
The Psychology Behind This: Natural light entering from multiple angles creates a biological response that regulates circadian rhythms and improves mood. The fireplace serves as a focal anchor, triggering ancient comfort associations while the transparent boundaries between inside and outside reduce stress by maintaining visual connection to nature.
White Contemporary Kitchen with Orange Bar Stools and Pendant Lighting

White shaker cabinets line the perimeter walls, paired with marble hexagon tile backsplash. A center island features four orange leather bar stools beneath glass pendant lights. Stainless steel appliances include a professional refrigerator and wall ovens. Dark gray tile flooring grounds the bright space, while recessed lighting complements the natural glow from above.
Combined Kitchen, Dining, and Living Space with Dark Hardwood Floors

Dark hardwood flooring unifies the kitchen, dining area, and living room in one continuous open layout. Orange leather bar stools line the island with pendant lights above. Large windows frame outdoor views while transom windows add height. Natural light fills every corner of the space.
Master Bedroom with Floor-to-Ceiling Windows and Water Views

Large windows frame views of the water and surrounding evergreens. Natural light floods across the carpeted floor, creating geometric shadow patterns. A bed dressed in yellow floral bedding anchors the space. Gray walls provide a neutral backdrop. A floor lamp stands beside the windows. Horizontal cable railings are visible through the glass doors leading to an outdoor balcony area.
Sunlit Home Office with Floor-to-Ceiling Windows and Simple Desk Setup

Natural light floods through expansive windows that wrap around two walls, creating bright views of surrounding greenery. A wood-top desk on metal trestle legs centers the space. Potted plants and minimalist decor complete the clean workspace.
Covered Deck with Wood Plank Ceiling and Horizontal Cable Railings

Recessed lighting illuminates the warm wood ceiling above tiled flooring. Cable railings provide unobstructed views of evergreen trees and distant hills. Two lime-green chairs flank a small metal table. Columns support the overhead structure.
- 1) Wood ceiling adds warmth to the covered outdoor space
- 2) Cable railing system maintains clear sightlines to landscape
- 3) Tile flooring transitions easily from indoor living areas
Pin It

🔥 Would you like to save this?
Step Inside This Inviting 4-Bedroom Craftsman Ranch with Impressive Stone Accents (Explore This 2,798 Sq. Ft. Floor Plan)
Sq. Ft.: 2,798 | Bedrooms: 4 | Bathrooms: 3.5
Experience the Best of 1,944 Sq. Ft. Living in This 4 Bedroom Home – See the Floor Plan
Sq. Ft.: 1,944 | Bedrooms: 4 | Bathrooms: 2
Marvel at the Modern Design of This Striking 3,789 Sq. Ft. 4-Bedroom Home (Don’t Miss This Floor Plan)
Sq. Ft.: 3,789 Bedrooms: 4 Bathrooms: 3.5
4-Bedroom Contemporary Mountain Home with Loft and Wet Bar (Floor Plan)
Sq. Ft.: 4,255 | Bedrooms: 4 | Bathrooms: 4.5-5.5

