
🔥 Would you like to save this?
Specifications
- Sq. Ft.: 3,359
- Bedrooms: 3
- Bathrooms: 3.5
Floor Plan

In order to come up with the very specific design ideas, we create most designs with the assistance of state-of-the-art AI interior design software. Also, assume links that take you off the site are affiliate links such as links to Amazon. this means we may earn a commission if you buy something.
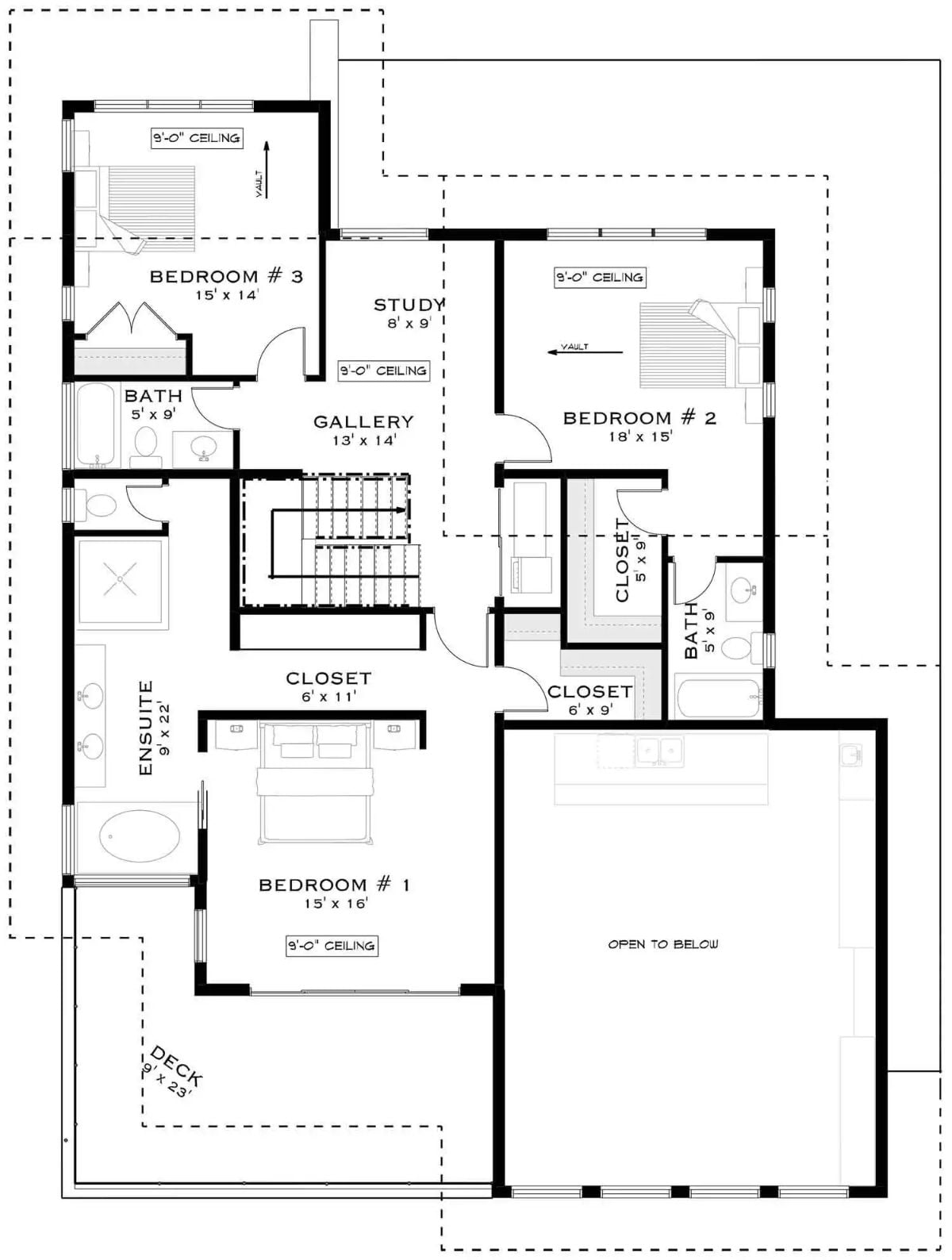
Upper level hosts three bedrooms, a study, and a gallery landing. Bedroom #2 gets vaulted ceilings and its own bath. A deck and open-to-below section add light and outdoor access.
Floor Plan

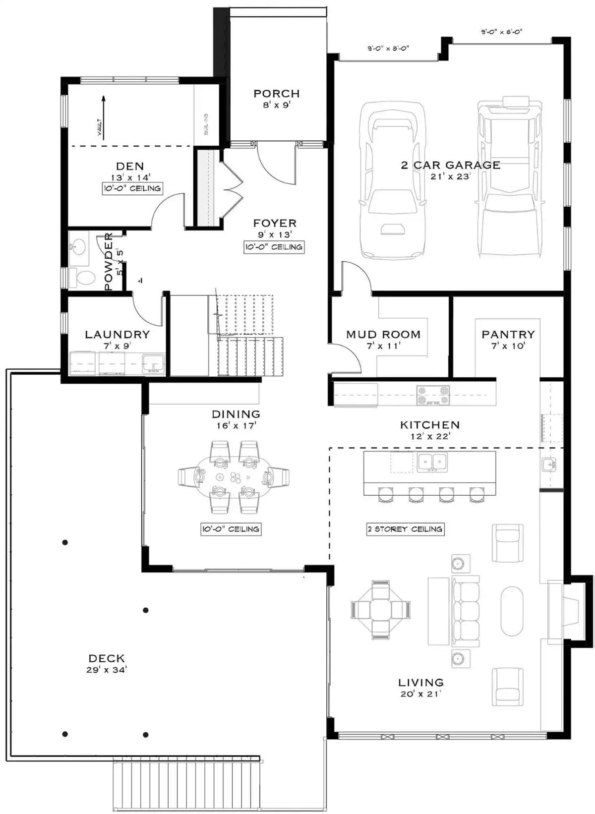
The main floor balances public and private zones well. Entry flows from the foyer into a central staircase, with the living room, kitchen, and dining arranged across the back. A den sits near the front. The mudroom and pantry connect the garage to the kitchen for practical daily use.
Did You Know: Positioning a pantry directly between the garage and kitchen is a practical move that cuts down on trips when unloading groceries. It’s a layout decision that sounds minor but genuinely changes how the space gets used day to day. Many builders reserve this detail for higher-end plan tiers.
Floor Plan
The basement level shows multiple unfinished spaces with rough-in bathroom plumbing already stubbed, two crawl spaces, a rear porch, and a staircase connecting to the upper floors. The layout suggests strong potential for future finishing.
The Psychology Behind This: Leaving basement space unfinished at the time of construction isn’t a shortcut. It gives future owners control over how those rooms get used, whether that’s a home gym, extra bedrooms, or a media room, without paying to finish space that doesn’t yet have a purpose.
Mountain Views Frame an Open-Plan Dining Room Done Right

Dark wood chairs with upholstered backs pull up to a substantial dining table beneath a candle-ring chandelier. Floor-to-ceiling windows face snow-capped peaks directly. Behind it, the kitchen island and double wall ovens stay visible without competing.
In The Details: Open-plan layouts work best when each zone has a clear anchor. Here, the chandelier does that job for the dining area, keeping it feeling like its own room even without walls separating it from the kitchen. It’s a simple fix that a lot of open-plan designs skip.
Snow-Capped Peaks Turn a Kitchen Island Into the Best Seat in the House

Marble countertops with visible veining anchor the kitchen foreground, while floor-to-ceiling windows pull the mountains directly into the room. Double-height glazing above handles the upper view. It’s a layout that doesn’t need art on the walls to make a statement.
Double-height glazing above handles the upper view.
Carpet, a Ceiling Fan, and Snow-Capped Peaks Doing All the Heavy Lifting

Floor-to-ceiling sliding doors pull the mountain range directly into the room. Plush carpet softens what could feel cold. A wood-framed bed and matching dresser keep the palette grounded without trying too hard.
Three Levels of Glass and Wood Make a Strong Case for Sloped-Lot Building

Dark wood trim frames oversized windows across all three floors, while a covered lower deck and glass-railed rooftop balcony make outdoor living feel built-in rather than added on.
Pin It

Exterior rendering shows a two-story contemporary home at dusk, paired with a first-floor plan featuring a 20×21 living room, two-car garage, and large rear deck.
