
🔥 Would you like to save this?
Specifications
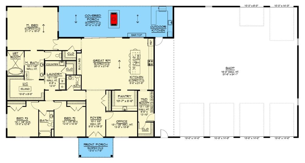
- Sq. Ft.: 2,890
- Bedrooms: 3
- Bathrooms: 2.5
Floor Plan

In order to come up with the very specific design ideas, we create most designs with the assistance of state-of-the-art AI interior design software. Also, assume links that take you off the site are affiliate links such as links to Amazon. this means we may earn a commission if you buy something.
Open great room flows into kitchen and pantry, with a master suite wing, two guest bedrooms, office, mud room, and an attached shop with four-car garage bays.
Dark Siding, Stone Chimney, and a Covered Patio Built for Entertaining

Vertical board-and-batten siding in near-black anchors the rear exterior, offset by a wood-wrapped patio beam that adds warmth. The stacked-stone chimney runs full height through the covered overhang, suggesting a double-sided fireplace. Left of center, an outdoor kitchen with wood cabinetry sits steps from seating areas on both sides.
Did You Know: Barndominiums originally referred to metal agricultural buildings converted into living spaces, but modern versions like this are purpose-built from the ground up. The vertical siding profile is a direct nod to traditional barn cladding, even when executed in fiber cement or engineered wood. That connection to agrarian roots is a big reason the style has found a following in rural and suburban settings alike.
Warm Wood Accents and a Wall of Glass Bring the Outside In
Recessed shelving flanks a wood-panel TV wall, keeping media storage from overwhelming the room. Natural light floods in through sliding glass doors. The sectional and lamp do the heavy lifting.
- Built-in shelving reduces the need for freestanding furniture, which keeps sightlines cleaner
- Sliding glass doors pull double duty as a light source and a visual connection to the yard
- Recessed ceiling lights spread illumination without competing with the natural light from the exterior wall
Step inside and the kitchen makes it clear this barndominium isn’t holding back on finishes.
Black Marble Counters and White Cabinets That Don’t Compete

Nero Marquina-style stone runs across both the island and the full-height backsplash, tying the kitchen together without matching too carefully. White shaker cabinets keep things grounded. The sink sits noticeably off-center on the island, tucked toward one end to leave prep space on the other side.
Patterned Runner and Oval Mirror Set the Tone Before You Step Inside

Geometric black-and-white runner down the hardwood hallway earns every bit of attention it gets. A wood console keeps things grounded, and the oval mirror in its dark frame reflects just enough light without trying too hard. The living room beyond pulls you forward with large windows and natural daylight.
Ask Yourself: Hallways often get treated as leftover space, but they’re the first impression of any home. Consider whether your entryway furniture and textiles reflect the style you want guests to feel before they reach the main living area.
Low-Profile Bed and Abstract Art in a Master Suite Built for Quiet

Gray upholstered headboard sits low to the ground, letting the shiplap wall and paired abstract panels do the visual work. Natural light floods in from three sides. The open shelving unit keeps books and objects without closing the room in.
Common Mistake: Buyers often prioritize bed size when planning a master suite but forget to account for furniture clearance. A low-profile platform bed can actually make a large room feel more proportional, not smaller. If your ceilings are tall, going lower with the bed draws the eye across the room rather than up into empty space.
Marble Counters, White Cabinets, and a Laundry Room That Actually Works

Whirlpool front-loaders sit beside a marble-topped folding counter with deep lower cabinets below. Black hardware ties the upper and lower storage together.
Trend Alert: Front-loading washers have made a comeback in laundry room design partly because they allow for a full countertop above, turning an otherwise wasted wall into functional workspace. Pairing that counter with upper cabinets essentially gives you a second utility kitchen. It’s a layout choice that pays off fast in homes where linen and supply storage is always running short.
Marble Vanity, Warm Wood Cabinet, and a Soaking Tub Tucked Just Out of Reach

Dark walls make the marble countertop pop. A tall wood cabinet handles storage without eating into the open floor.
Pin It

A rendered exterior shows a wide, single-story barndominium with dark vertical siding and a shed roof. Below, the floor plan reveals three bedrooms, a great room, large shop with four garage bays, covered porch, and outdoor kitchen.
