
Would you like to save this?
Specifications
- Sq. Ft.: 3,780
- Bedrooms: 4
- Bathrooms: 4.5-5.5
- Stories: 2
- Garage: 2
Main Level Floor Plan

Second Level Floor Plan

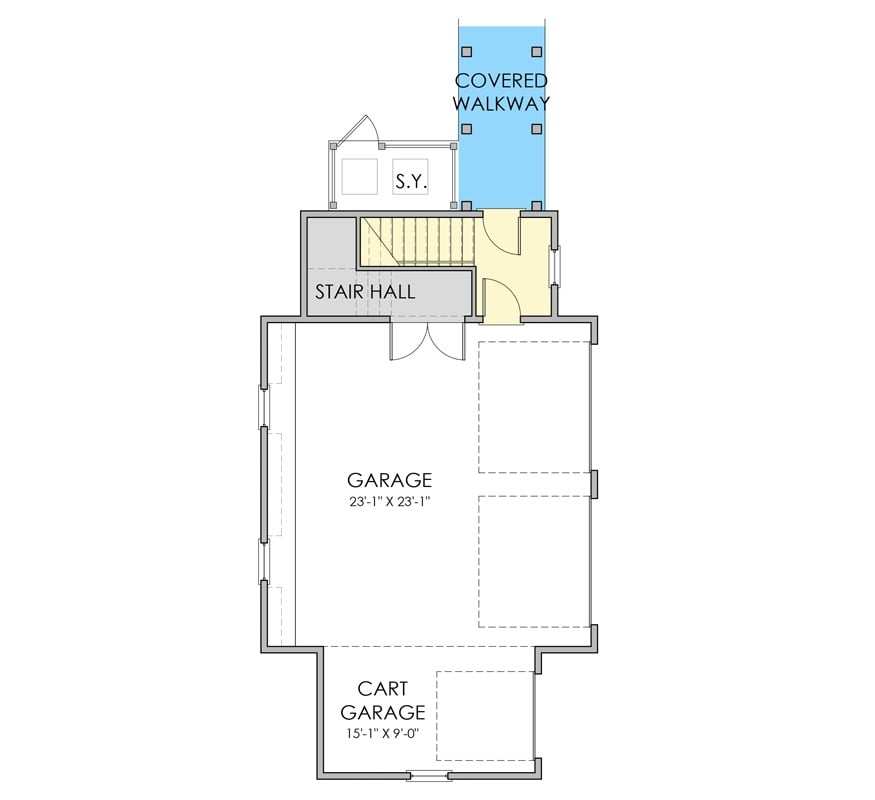
Detached Garage

Bonus Level Floor Plan

Kitchen Style?
Front View

Rear-Right View

Rear View

Home Stratosphere Guide
Your Personality Already Knows
How Your Home Should Feel
113 pages of room-by-room design guidance built around your actual brain, your actual habits, and the way you actually live.
You might be an ISFJ or INFP designer…
You design through feeling — your spaces are personal, comforting, and full of meaning. The guide covers your exact color palettes, room layouts, and the one mistake your type always makes.
The full guide maps all 16 types to specific rooms, palettes & furniture picks ↓
You might be an ISTJ or INTJ designer…
You crave order, function, and visual calm. The guide shows you how to create spaces that feel both serene and intentional — without ending up sterile.
The full guide maps all 16 types to specific rooms, palettes & furniture picks ↓
You might be an ENFP or ESTP designer…
You design by instinct and energy. Your home should feel alive. The guide shows you how to channel that into rooms that feel curated, not chaotic.
The full guide maps all 16 types to specific rooms, palettes & furniture picks ↓
You might be an ENTJ or ESTJ designer…
You value quality, structure, and things done right. The guide gives you the framework to build rooms that feel polished without overthinking every detail.
The full guide maps all 16 types to specific rooms, palettes & furniture picks ↓
Rear-Left View

Living Room

Living Room

Open-Concept Living

Open-Concept Living

Kitchen

🔥 Create Your Own Magical Home and Room Makeover
Upload a photo and generate before & after designs instantly.
ZERO designs skills needed. 61,700 happy users!
👉 Try the AI design tool here
Kitchen

Dining Area

Study

Study

Primary Bathroom

Screened Porch

Would you like to save this?
Front Elevation

Right Elevation

Left Elevation

Were You Meant
to Live In?
Rear Elevation

Details
This home features a coastal modern farmhouse exterior with a long, low profile and strong symmetry. Light siding is paired with a metal roof and simple trim, giving the house a clean, relaxed look. A wide covered front porch anchors the façade, while matching wings on each side create balance and a welcoming presence. Large windows and multiple porch connections reinforce the indoor-outdoor focus without adding visual complexity.
Inside, the main level is organized around a central living area that connects directly to the kitchen and dining space. The kitchen is open and functional, with a large island, walk-in pantry, and butler’s pantry that support everyday use and entertaining. The dining and living areas flow easily into a screened porch at the rear, extending the living space outdoors.
The primary suite is located on one side of the home and includes a private bath, dual walk-in closets, and easy access to the laundry area. A study and full bath are positioned on the opposite side, offering flexibility for guests or work-from-home needs. A mud hall connects the main house to a covered walkway leading to the detached garage.
The second level includes two additional bedrooms, each with nearby bathroom access, and a sitting area that works well as a shared retreat or secondary living space. Above the garage, a large bonus room with a full bath provides flexible space for guests, recreation, or long-term use.
Pin It!

Architectural Designs Plan 133013HLT
