
🔥 Would you like to save this?
Specifications
- Sq. Ft.: 2,650
- Bedrooms: 3
- Bathrooms: 3.5
- Stories: 1
- Garage: 2
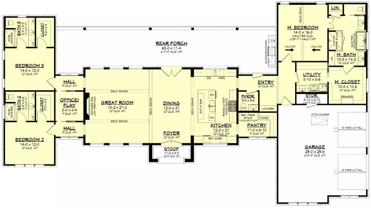
Main Level Floor Plan

In order to come up with the very specific design ideas, we create most designs with the assistance of state-of-the-art AI interior design software. Also, assume links that take you off the site are affiliate links such as links to Amazon. this means we may earn a commission if you buy something.
Front-Right View

Rear View
Living Room

Dining Area and Kitchen

Kitchen

Primary Bedroom

Primary Bathroom

Front Elevation

Left Elevation

Right Elevation

Rear Elevation

Details
This beautifully chic design wows from the street with clean gables, simple shapes, and large windows. Inside, you enter straight into the great room, with clear sightlines from the U-shaped island kitchen on one side, through the dining area, to the fireplace at the far side of the great room.
With windows on both sides, this space is filled with natural light. The primary bedroom suite is tucked behind the kitchen, in the hallway with the garage entrance, and boasts a vaulted bedroom and a five-piece bath.
The other two bedrooms are also three-piece suites in their own hallways on the opposite side of the house, so the kids will enjoy their own privacy as well. House Plan 9281 also includes an office/playroom, a large walk-in pantry, and an expansive porch in back that adds even more livability!
Pin It!

The House Designers Plan 9281
🔥 Would you like to save this?
Step Inside This 1,814 Sq. Ft. 3 Bedroom Farmhouse with a Must See Floor Plan
Sq. Ft.: 1,814 | Bedrooms: 3 | Bathrooms: 2.5
Step Inside This 3,192 Sq. Ft. 3 Bedroom Barndominium Style House with Loft and Wraparound Porch (Floor Plan Included)
Sq. Ft.: 3,192 | Bedrooms: 3 | Bathrooms: 2.5
3-Bedroom Rustic Farmhouse with Open Living Space and Wraparound Porch (Floor Plan)
Sq. Ft.: 2,147 | Bedrooms: 3 | Bathrooms: 3.5
Country-Style 3-Bedroom Farmhouse with Dual Porches and Open Living Space (Floor Plan)
Sq. Ft.: 2,000 | Bedrooms: 3 | Bathrooms: 2

