
🔥 Would you like to save this?
Specifications
- Sq. Ft.: 2,083
- Bedrooms: 2
- Bathrooms: 2.5
Floor Plan

In order to come up with the very specific design ideas, we create most designs with the assistance of state-of-the-art AI interior design software. Also, assume links that take you off the site are affiliate links such as links to Amazon. this means we may earn a commission if you buy something.
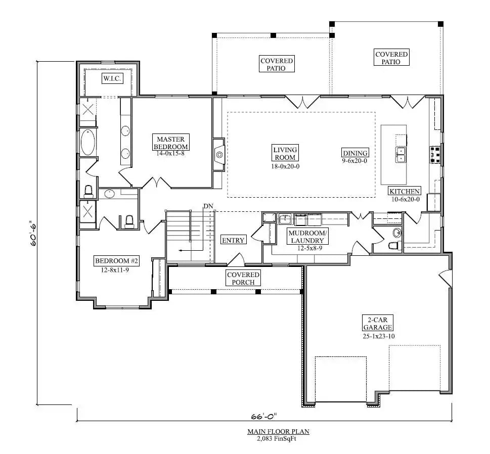
The main floor places the master bedroom and walk-in closet on the left wing, with a second bedroom nearby. A central living room opens to dining and kitchen spaces. Two covered patios sit at the rear, and a mudroom connects to the two-car garage.
Floor Plan

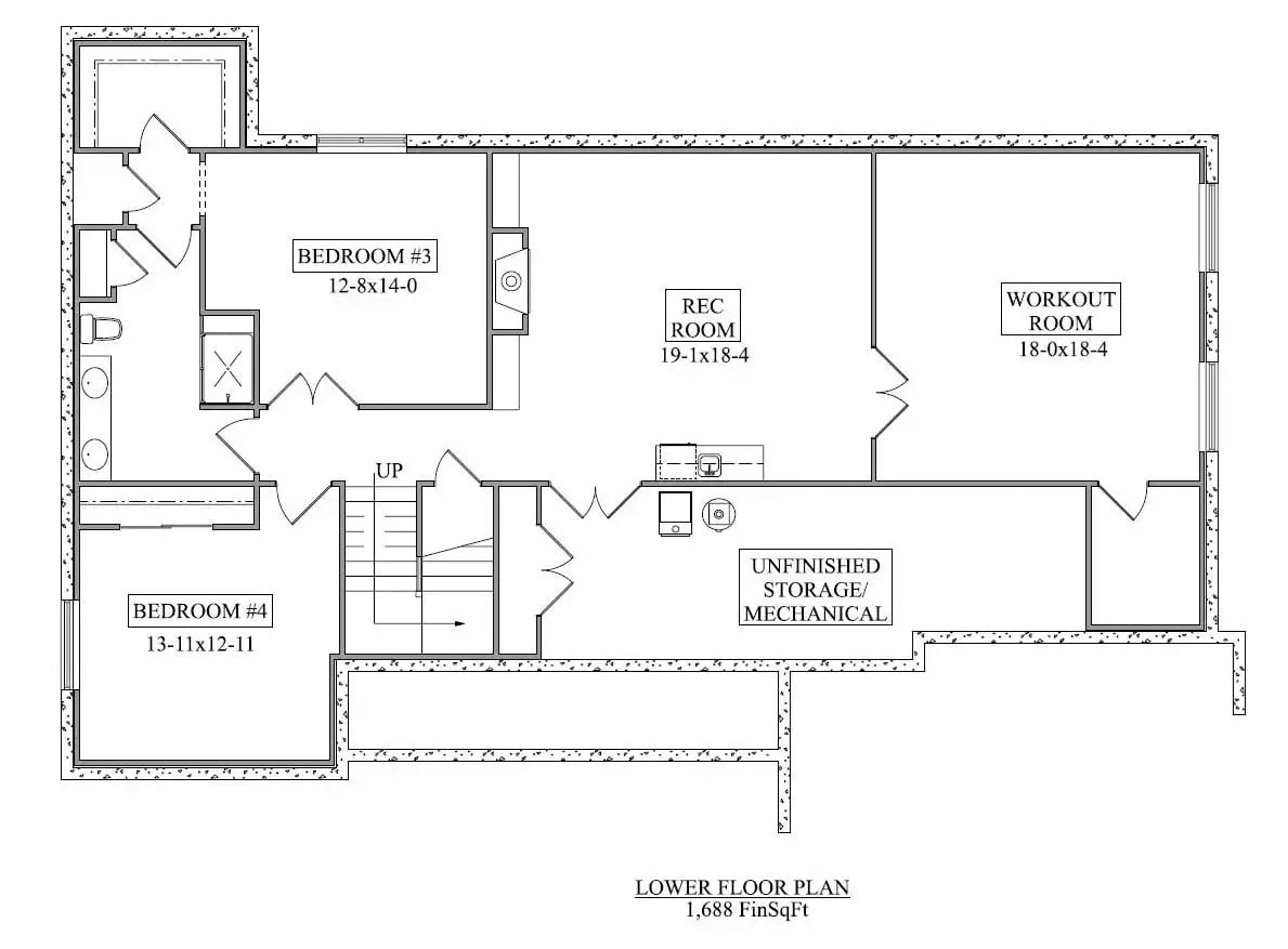
The lower level holds two bedrooms, a full bath, a rec room, a workout room, and unfinished storage. Stairs connect to the upper floors, with 1,688 finished square feet total.
By The Numbers: Four dedicated spaces make up the finished square footage, including a rec room at 19×18 feet and a workout room at 18×18 feet. Both bedrooms sit on the west side, keeping sleeping areas separate from activity spaces. Unfinished storage provides room to grow without adding to the finished count.
Covered Patio Living Glows Against a Fiery Sunset Sky
Gray board-and-batten siding pairs with blue shutters on this ranch-style home. Warm interior lighting spills through large windows and French doors onto a furnished patio surrounded by blue spruce, flowering perennials, and a rock water feature.
Designer’s Secret: Planting blue spruce near a covered patio serves a functional purpose beyond looks. Their dense branching blocks wind and filter afternoon glare, reducing how much heat builds up in an outdoor living space during summer months.
Stepping inside reveals how the interior carries that same contrast between light walls and dark accents.
Black Fireplace Surround Anchors a Living Room Built Around Natural Wood

Hardwood floors run beneath a wood coffee table stacked with books. Black paint covers the fireplace surround and mantel. Botanical shelving, floral upholstery, and a framed figurative painting pull warm color into an otherwise neutral, white-walled room.
Black Cabinet Frames and Candle Chandelier Define an Open Kitchen Worth Gathering In

Painted black cabinet frames contrast sharply against white subway tile and upper cabinetry. French doors flood the dining area with natural light. Ladder-back wood chairs surround a farmhouse table set with botanicals. Two glass pendant lights hang over the dark island. Green glass vases add a pop of color near the sink.
Ladder-back wood chairs surround a farmhouse table set with botanicals.
Flamingo Wall Art and Floral Bedding Bring Bold Color to a Sun-Filled Corner Bedroom

Vintage flamingo print hangs above green and blue patchwork bedding. Hardwood floors catch the afternoon light from two corner windows. A tufted chair adds contrast near sunflower stems.
Editor’s Note: Quilted bedspreads with botanical patterns work well in rooms that already get strong natural light since busy prints read as layered rather than chaotic when sunlight softens the contrast. Rooms with two or more windows on adjacent walls benefit from artwork placed between them to anchor the corner without blocking the light source.
Crystal Chandelier and Patterned Floor Tile Pull a Bathroom Into Sharp Focus

Black encaustic floor tiles with white floral motifs anchor the room. Dark vanity cabinetry contrasts with white quartz counters and chrome fixtures. A freestanding soaking tub sits beside a floor-mount faucet, while an ornate black mirror reflects light from the far end of the hall.
Quick Fix: Freestanding tub fillers require a rough-in water supply line positioned directly in the floor, so placement must be decided before tile is set. Moving one after installation means breaking into finished flooring. Plan the exact tub position early and mark the supply location before any tile work begins.
Patterned Floor Tile and Dual-Tone Cabinets Ground a Hardworking Laundry Hall

White lower cabinets meet dark upper storage flanking a hallway with geometric black-and-white cement tile, open shelving, and a stainless sink.
The Psychology Behind This: Pairing white and dark cabinets in the same room without a dominant color split works because the eye reads contrast as intentional structure rather than indecision. Rooms where one tone anchors vertical surfaces and the other holds horizontal ones feel organized even when filled with everyday clutter.
Sunburst Mirror and Dark Accent Wall Set the Tone for an Eclectic Living Space

Dark charcoal on one wall creates contrast against light wood-look flooring throughout. A gold sunburst mirror anchors the accent wall above an olive velvet sofa. Floral upholstery on the chaise adds pattern without matching. Recessed lighting keeps the ceiling clean. Decorative garden forks mounted on the far wall signal a farmhouse sensibility woven into the mix.
- Limiting a dark accent wall to one surface prevents a room from feeling enclosed
- Mixing velvet and printed fabric works when both share at least one common color
- Recessed ceiling fixtures suit low-profile rooms better than pendant lights, which draw the eye down
Pin It

Exterior photo shows a craftsman ranch home at dusk paired with a 2,083-square-foot main floor plan below.
🔥 Would you like to save this?
Craftsman Style 2-Bedroom Ranch with Front Porch and Angled 3-Car Garage (Floor Plan)
Sq. Ft.: 2,172 | Bedrooms: 2 | Bathrooms: 2.5
2-Bedroom Single-Story Mountain Ranch with Open Floor Plan (Floor Plan)
Sq. Ft.: 1,668 | Bedrooms: 2 | Bathrooms: 2
Introducing This Elegant 3,623 Sq. Ft. Craftsman Ranch with a Unique 3-Car Garage (Take a Look at This Floor Plan)
Sq. Ft.: 3,623 | Bedrooms: 2 | Bathrooms: 2.5
Introducing This 2,422 Sq. Ft. Rustic Ranch Home With 2 Bedrooms and a Wet Bar (See the Floor Plan)
Sq. Ft.: 2,422 | Bedrooms: 2 | Bathrooms: 2.5

