
Would you like to save this?
Specifications
- Sq. Ft.: 2,725
- Bedrooms: 3
- Bathrooms: 3.5
- Stories: 1-2
- Garage: 3
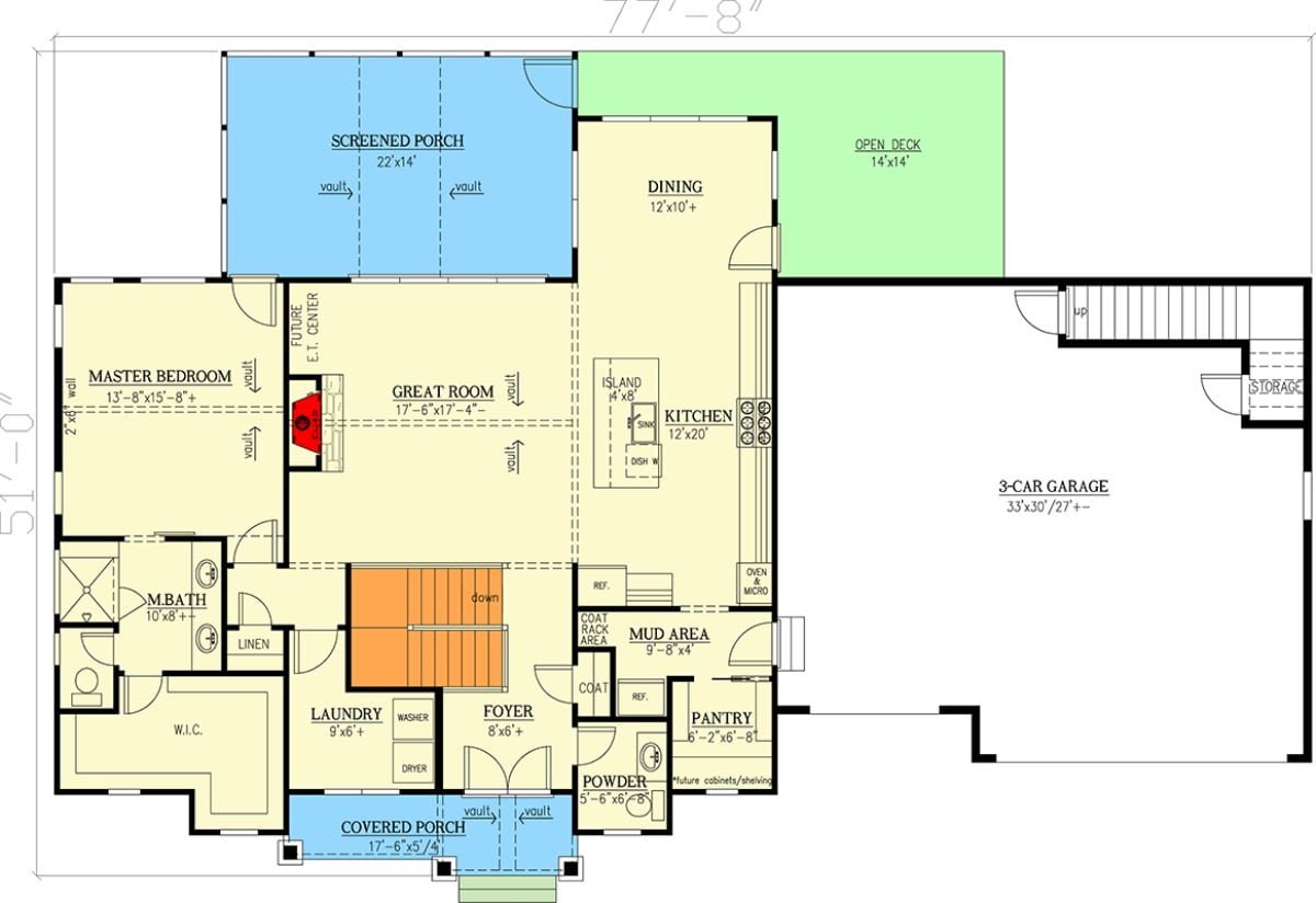
Main Level Floor Plan

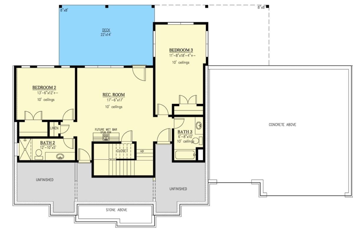
Lower Level Floor Plan

🔥 Create Your Own Magical Home and Room Makeover
Upload a photo and generate before & after designs instantly.
ZERO designs skills needed. 61,700 happy users!
👉 Try the AI design tool here
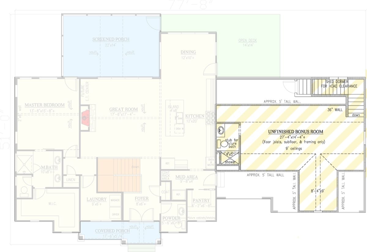
Bonus Room

Rear View

Foyer

Great Room

Would you like to save this?
Kitchen

Kitchen

Kitchen

Primary Bathroom

Bathroom

Laundry Room

Bathroom

Bathroom

🔥 Create Your Own Magical Home and Room Makeover
Upload a photo and generate before & after designs instantly.
ZERO designs skills needed. 61,700 happy users!
👉 Try the AI design tool here
Screened Porch

Details
The home’s exterior blends modern farmhouse and craftsman elements with crisp white siding, steep gables, dark trim accents, and a welcoming covered entry framed by timber detailing. A large three-car garage is integrated cleanly into the design, balancing the façade while maintaining a strong, residential presence.
The first floor is organized around a vaulted great room that serves as the main gathering space and connects directly to the kitchen and dining area. The kitchen features a central island, walk-in pantry, and easy access to a mud area and laundry room that link to the garage.
The primary bedroom is located on this level and includes a private bath and walk-in closet, offering separation from secondary spaces. A covered front porch, screened porch, and open deck extend the main living areas outward while keeping circulation clear and efficient.
The second floor consists of a large unfinished bonus room with a nearby bathroom rough-in, offering flexible space for future expansion, such as a guest suite, office, or recreation area.
The lower level is designed for additional living and guest use, with a spacious recreation room, optional wet bar area, and multiple bedrooms served by full bathrooms. Unfinished areas provide room for storage or future customization.
Pin It!

Architectural Designs Plan 24429TW
