
🔥 Would you like to save this?
Specifications
- Sq. Ft.: 2,649
- Bedrooms: 3
- Bathrooms: 3.5
Floor Plan

In order to come up with the very specific design ideas, we create most designs with the assistance of state-of-the-art AI interior design software. Also, assume links that take you off the site are affiliate links such as links to Amazon. this means we may earn a commission if you buy something.
Main level includes primary bedroom, two guest bedrooms, open kitchen and dining, living room, office, pantry, mudroom, and multiple covered porches.
Floor Plan

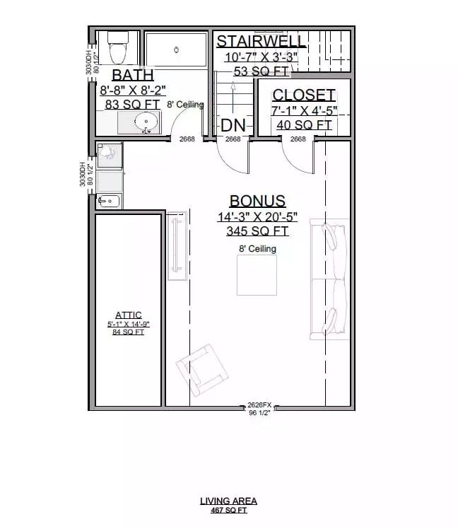
Upper-level layout centers on a bonus room spanning 345 sq ft with 8-foot ceilings. A full bath sits at the top left, paired with a closet near the stairwell. Attic access opens from the left side. Three doors connect the spaces with clear circulation. Total living area reaches 467 sq ft.
Floor Plan
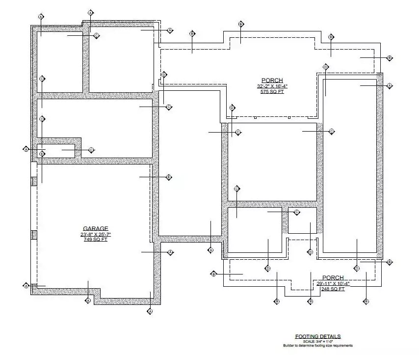
The foundation plan shows a 749 sq ft garage, a 575 sq ft front porch, and a 248 sq ft rear porch. Interior spaces connect through a central corridor with footing details noted throughout for builder reference.
Style Math: Garage square footage plus both porches combined total over 1,570 sq ft of non-living space alone. That ratio signals a home built for practicality first, with covered outdoor areas on two sides handling weather and storage without eating into living quarters.
Exposed Timber Gables and Dark Metal Roofing Define This Farmhouse Rear Elevation

White board-and-batten siding wraps the exterior, grounded by a brick veneer base. Natural wood timber framing forms a dramatic gable peak above the covered patio. Black window frames contrast sharply against the white walls. Columnar evergreens flank the patio posts, and a wide concrete pad extends across the rear yard.
Budget Tip: Metal roofing like the dark standing-seam panels shown here typically costs more upfront than asphalt shingles but lasts two to three times longer, often 40 to 70 years. Over the life of the home, that trade-off can reduce total roof replacement costs significantly. Getting multiple bids from metal roofing specialists rather than general contractors often yields better pricing on material and labor.
Soft Gray Cabinetry and a Shaker Island Anchor This Open Kitchen

Light wood floors pull every zone of this open-plan space into one cohesive conversation.
Gray lower cabinets contrast with white uppers and a cream range hood. Black fixtures on the island sink add depth. A round dining table with spindle chairs sits nearby, while a light blue armchair hints at the adjoining living area.
Vaulted Ceilings and a Black Fireplace Wall Set the Tone in This Living Room

Exposed wood beams, a linear fireplace, a sliding barn door, and gray sofas anchor this cathedral-ceiling gathering space.
Common Mistake: Mounting a TV directly above a fireplace looks clean but places the screen higher than ideal viewing height, causing neck strain over time. A recessed niche or a lower side wall keeps the screen at eye level without sacrificing the fireplace as a focal point.
Marble-Top Island and Sage Cabinetry Bring Quiet Contrast to an Open Kitchen

Sage green island cabinetry pairs with white upper cabinets and a cream range hood to layer tones without competing. The waterfall-edge marble countertop anchors the space. Behind the island, double-wall ovens stack beside a gas cooktop. Sliding barn doors in natural oak open to a dining nook with a round table and spindle chairs.
Sliding barn doors in natural oak open to a dining nook with round table and spindle chairs.
Vaulted Bedroom with Cathedral Window Frames a Green Backyard View

Dark walnut nightstands flank a low platform bed dressed in navy bedding and brown leather pillows. Exposed timber beams cross the vaulted ceiling above light hardwood floors and a cream area rug.
Material Matters: Platform beds sit closer to the floor than traditional frames, which works well with high vaulted ceilings by keeping the visual weight of furniture low and the room feeling balanced rather than top-heavy. The walnut tone used across both nightstands and the bed frame creates cohesion without requiring matching pieces.
Double Vanity with Matte Black Fixtures Keeps This Farmhouse Bath Crisp and Functional

Two undermount sinks sit in a long white shaker vanity with black hardware. Matte black faucets and ring towel holders contrast against subway tile and gray floor tiles.
Editor’s Note: Pairing black fixtures with an all-white vanity is one of the more cost-effective ways to add visual contrast without changing cabinetry. The matte finish resists fingerprints better than chrome, making it a practical pick for high-use bathrooms shared between multiple people.
Bonus Room with Built-In Kitchenette Pulls Double Duty as a Lounge and Guest Suite

Carpet flooring, sloped ceiling, and a mid-century credenza anchor the space. A beverage fridge and countertop oven tucked near the window add real function.
Pin It

Exterior rendering shows a farmhouse with metal roofing above; floor plan below details three bedrooms, open living spaces, and a large garage.
